← Blackpool Council

Status

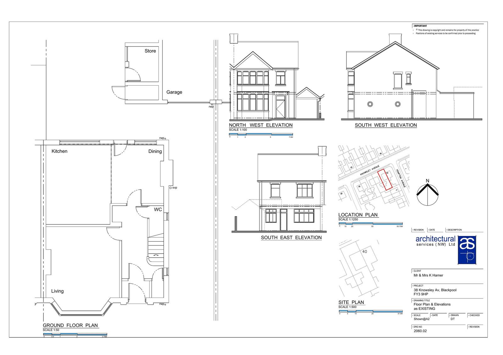
Registered House extension
Received
Last month
New homes
0

Full proposal

Erection of a single storey wrap around extension

Have your say

Your comment matters. Councils must consider every representation that raises material planning considerations.

Write a comment