← Blaenau Gwent County Borough Council

Status

Pending House extension
Received
Not recorded
New homes
0

Full proposal

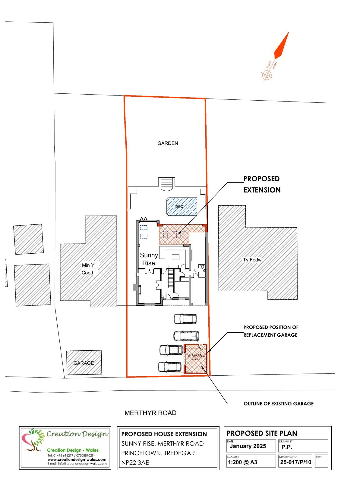
Proposed Single Storey Rear House Extension and increase in size of first floor balcony. Replacement garage to front of house

Documents

Application Form
Application Forms/Certificates Redacted
Not yet archived · Original link
Decision-Notice
Decision Notice
Not yet archived · Original link
Existing Elevations
Plans
Not yet archived · Original link
Existing Plans
Plans
Not yet archived · Original link
Plans
Archived · Original link
Green Infrastructure Statement
Green Infrastructure Statement
Not yet archived · Original link
planning/uploads/8913341121743530594:: ::Delegated report
Delegated Report - Householder
Not yet archived · Original link
Proposed Elevations
Plans
Not yet archived · Original link
Proposed Elevations 2
Plans
Not yet archived · Original link
Proposed Garage
Plans
Not yet archived · Original link
Plans
Archived · Original link
Proposed Roof Plan
Plans
Not yet archived · Original link
Plans
Archived · Original link
Plans
Archived · Original link

Have your say

Your comment matters. Councils must consider every representation that raises material planning considerations.

Write a comment