← Blaenau Gwent County Borough Council

Status

Pending House extension
Received
Not recorded
New homes
0

Full proposal

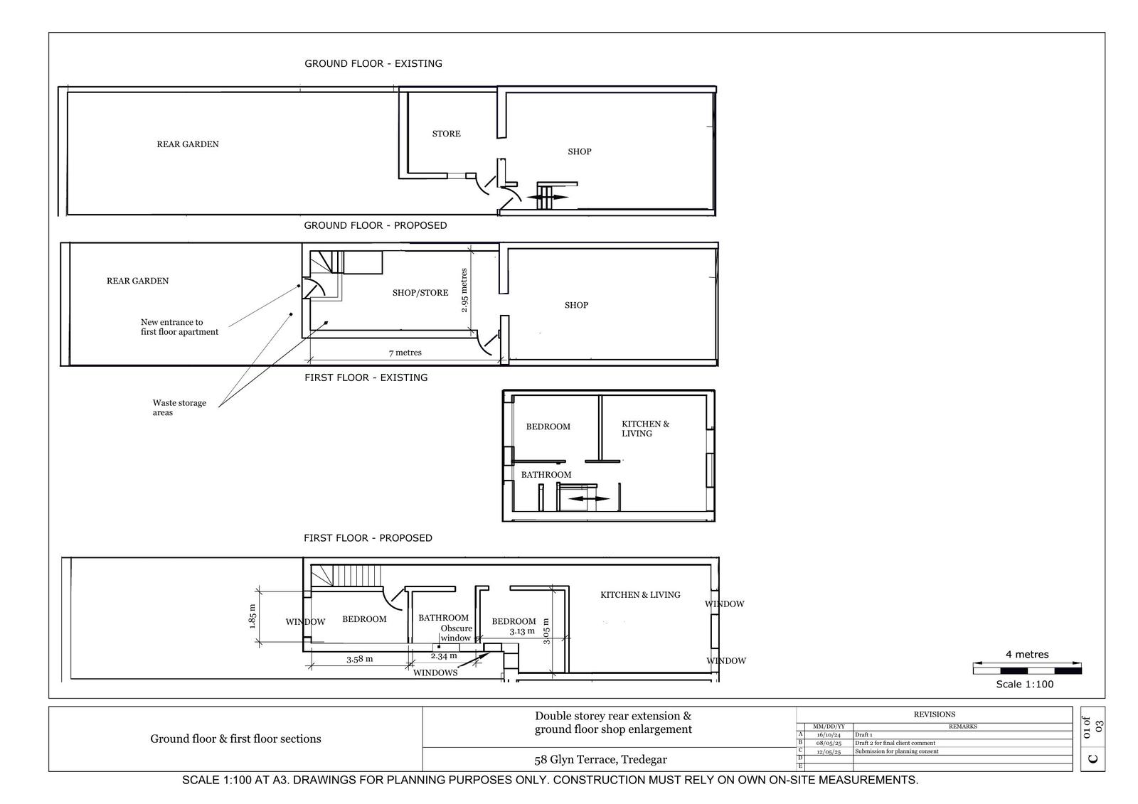
Ground floor and first floor rear extension, enlarging existing shop premises and residential premises above.

Documents

application-for-planning-permission-200525
Application Forms/Certificates
Not yet archived · Original link
Decision Notice
Archived · Original link
Green Infrastructure Statement
Archived · Original link
Site Location Plan
Archived · Original link
Officer Delegated Report
Archived · Original link

Have your say

Your comment matters. Councils must consider every representation that raises material planning considerations.

Write a comment