← Bolsover District Council

Status

In Progress House extension
Received
02 Feb 2026
New homes
0

Full proposal

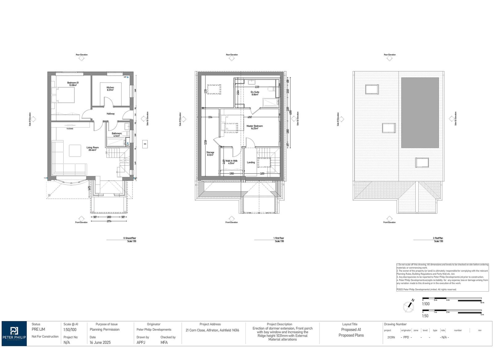
Demolition of garage, erection of dormer roof extension, front porch and bay window and external material alterations

Documents

Public Comment
Archived · Original link
Drawing
Archived · Original link
Drawing
Archived · Original link
Drawing
Archived · Original link
Drawing
Archived · Original link
Drawing
Archived · Original link
Drawing
Archived · Original link
Correspondence
Archived · Original link
Drawing
Archived · Original link

Have your say

Your comment matters. Councils must consider every representation that raises material planning considerations.

Write a comment