← Bolton Council

Status

Deposited House extension
Received
12 Jan 2026
New homes
0

Full proposal

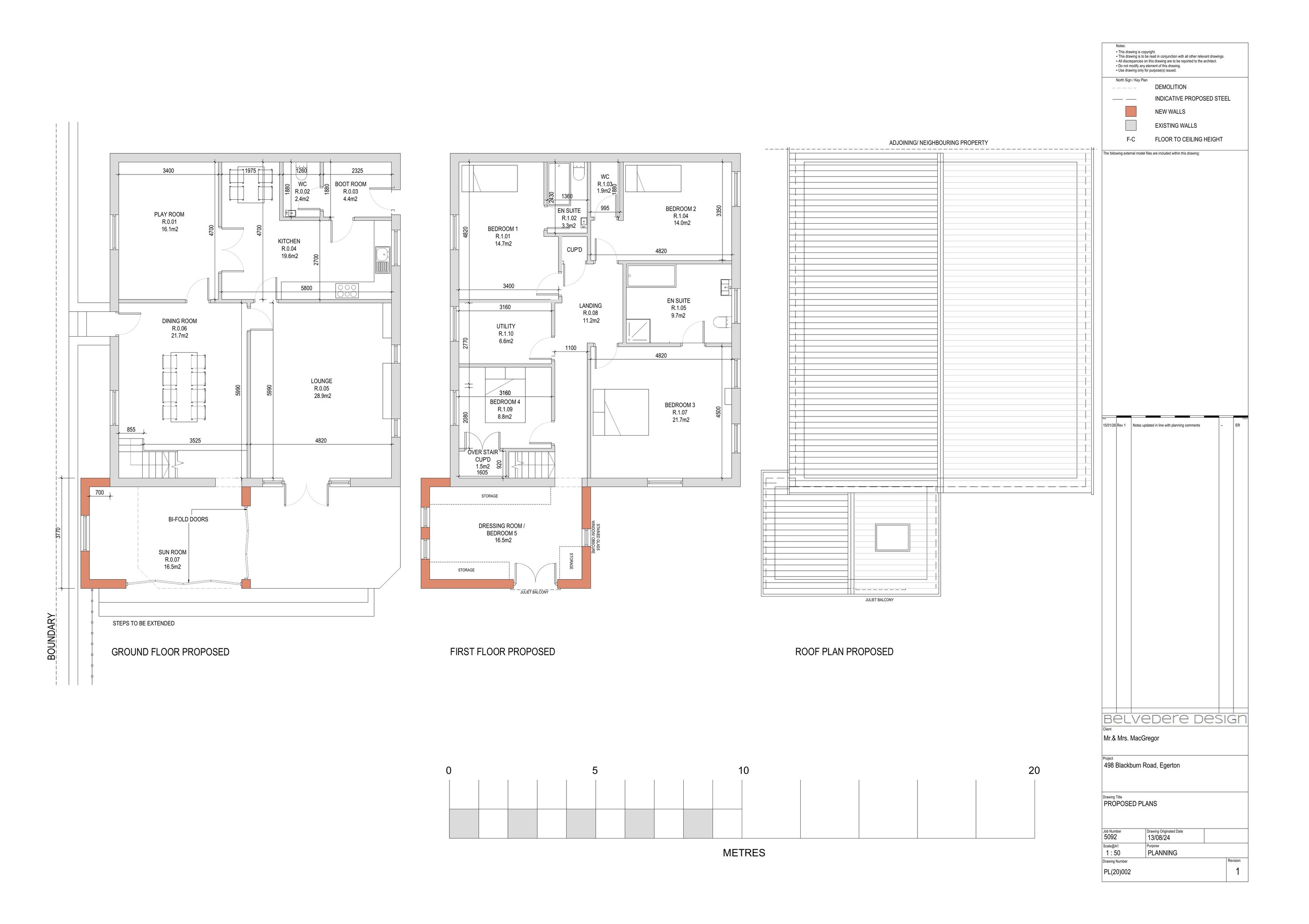
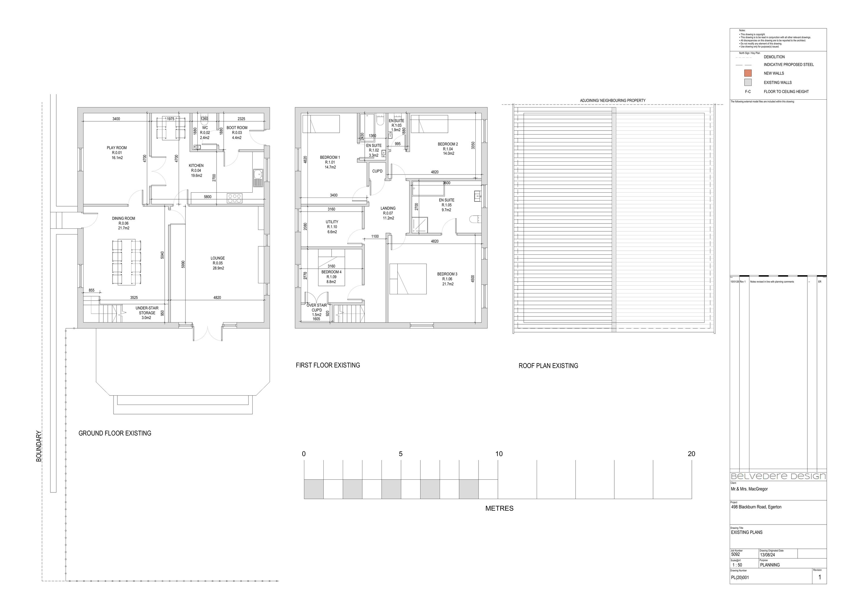
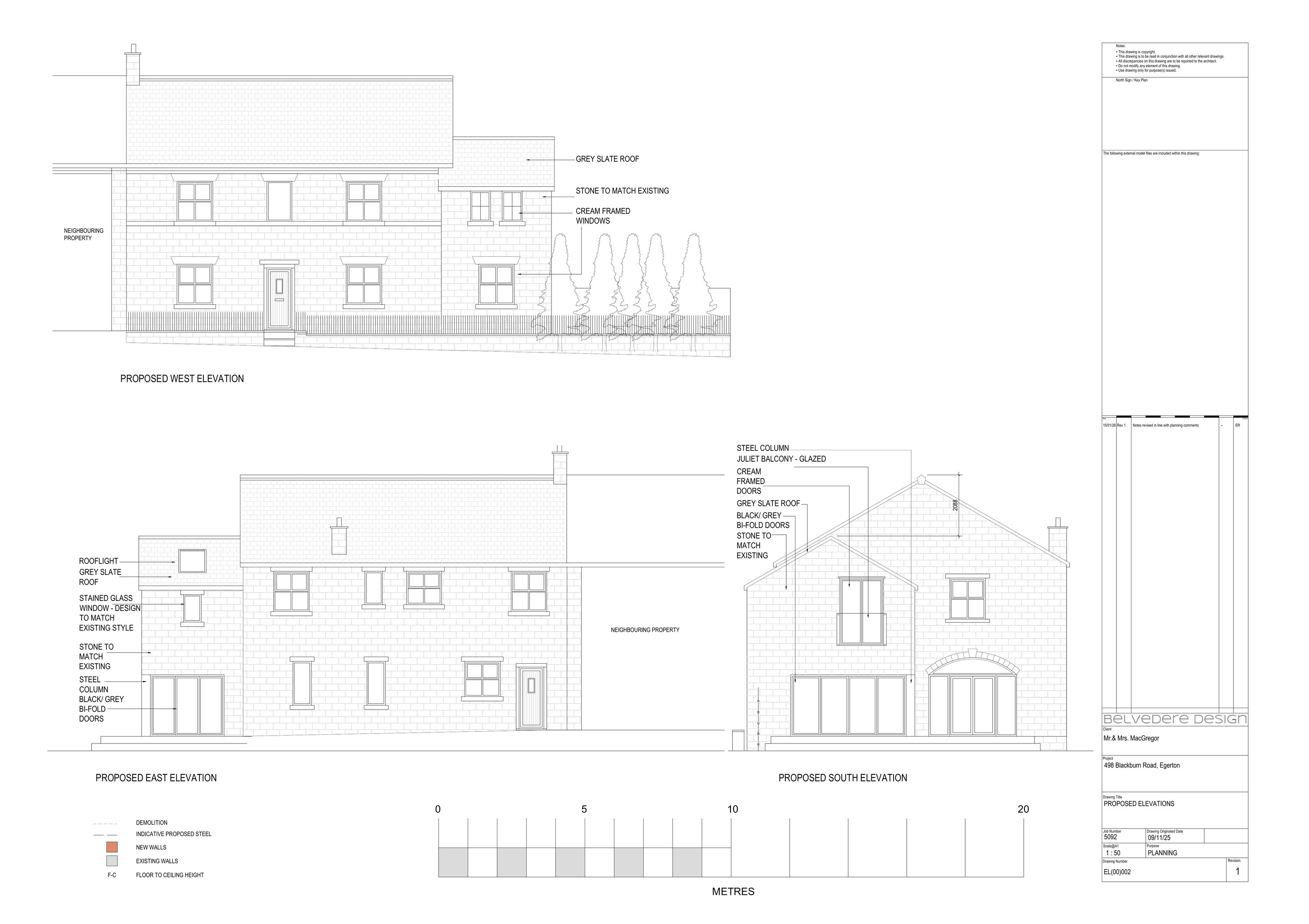
ERECTION OF A TWO STOREY EXTENSIONS AT FRONT AND SIDE.

Documents

Application Submission Details
Archived · Original link
Application Submission Details
Archived · Original link
Application Submission Details
Archived · Original link
Application Submission Details
Archived · Original link
Application Submission Details
Archived · Original link
Application Submission Details
Archived · Original link
Application Submission Details
Archived · Original link
Application Submission Details
Archived · Original link
Application Submission Details
Archived · Original link
Application Submission Details
Archived · Original link
Application Submission Details
Archived · Original link
Application Submission Details
Archived · Original link
Application Submission Details
Archived · Original link
Application Submission Details
Archived · Original link
Application Submission Details
Archived · Original link
Application Submission Details
Archived · Original link
Consultee Comment
Archived · Original link

Have your say

Your comment matters. Councils must consider every representation that raises material planning considerations.

Write a comment