00073/26
Bolton Council
Status
Awaiting decision
Commercial
Received
15 Jan 2026
New homes
0
Full proposal
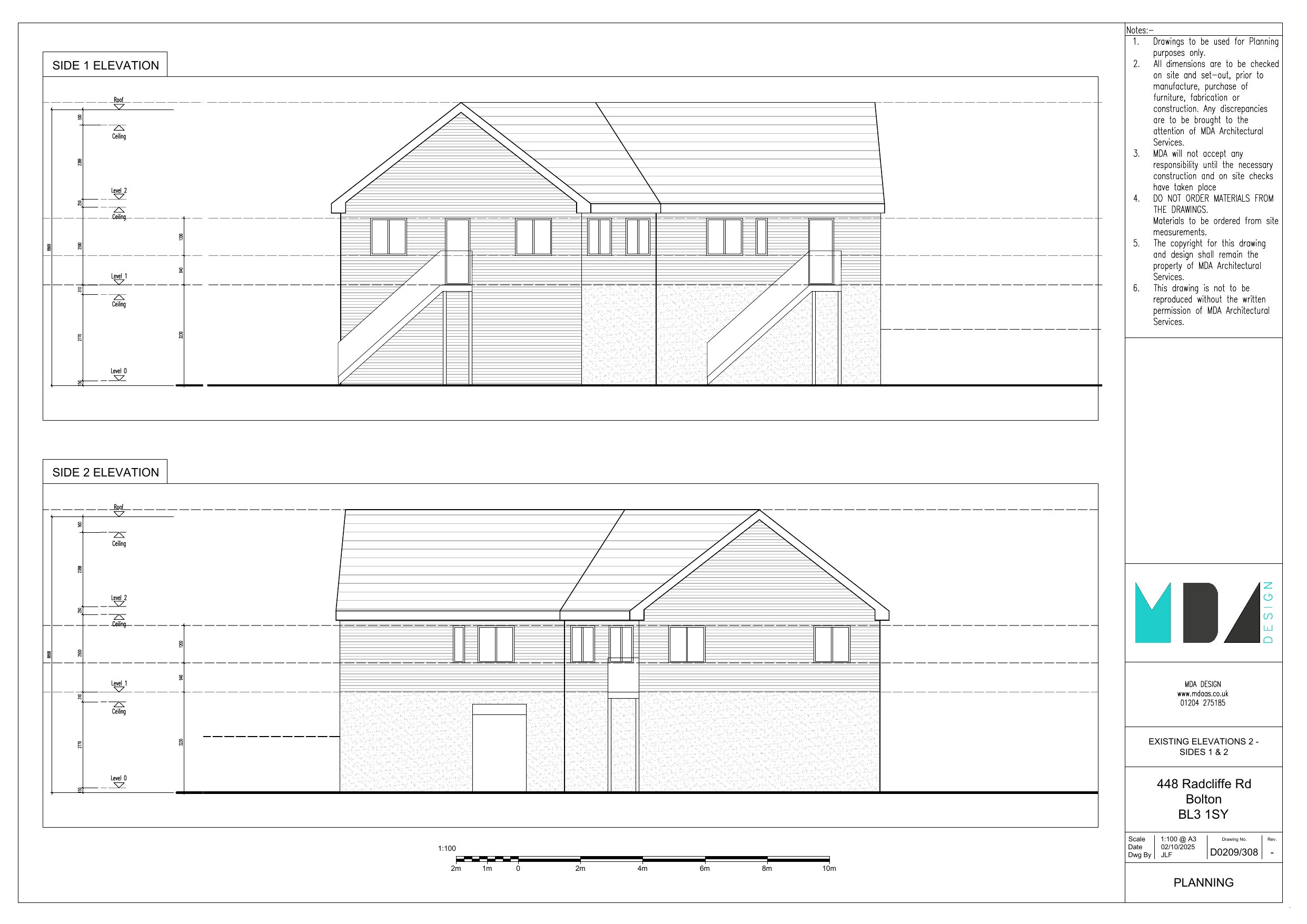
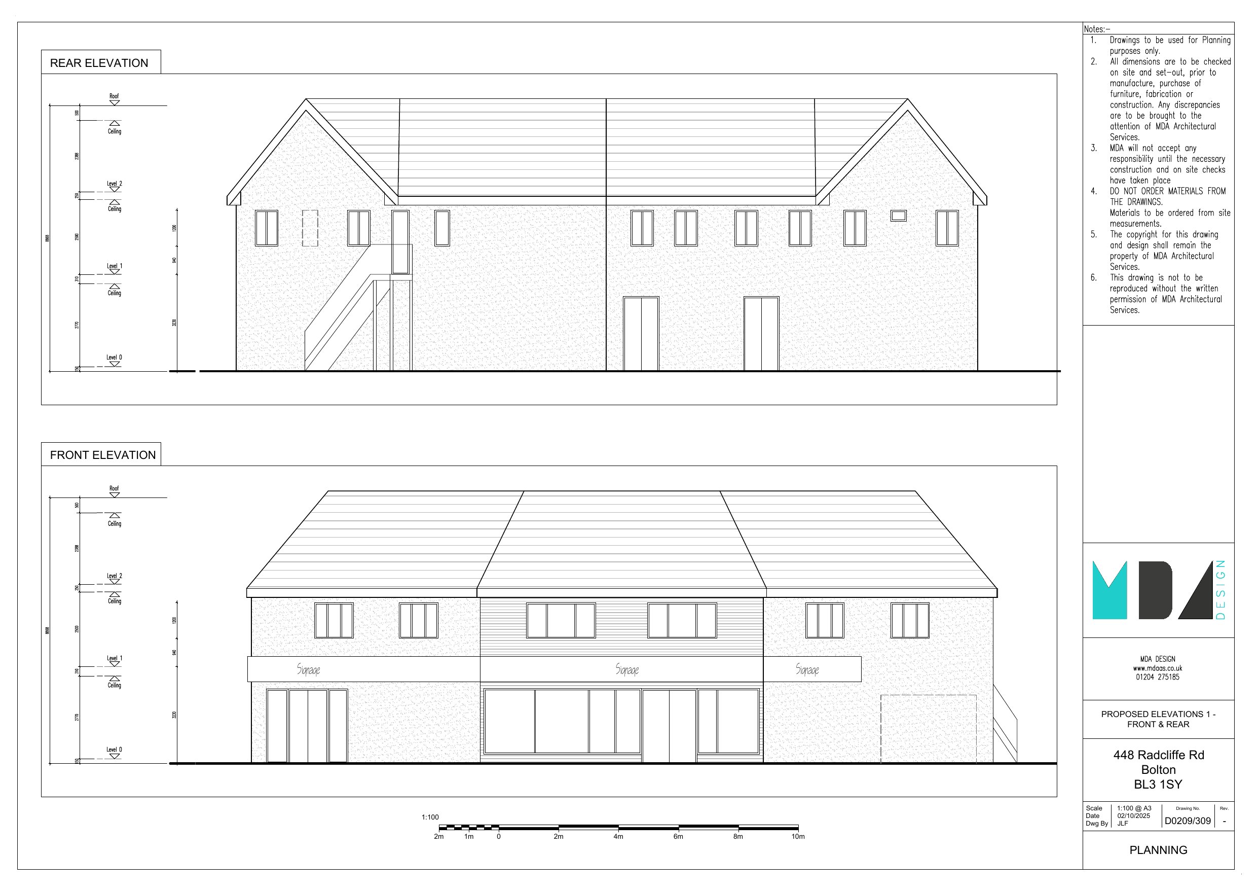
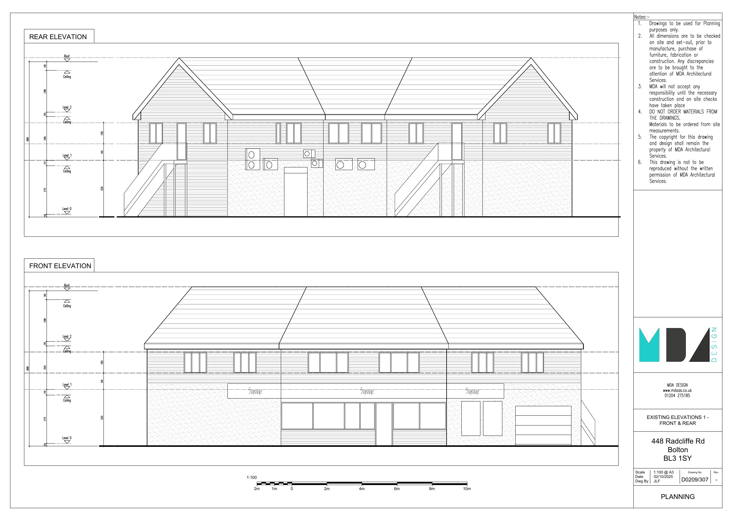
ERECTION OF TWO STOREY REAR EXTENSION TO CREATE 1NO. ADDITIONAL RETAIL UNIT AND SHOP FRONTAGE AT GROUND FLOOR, LOADING AREA AT GROUND FLOOR AND STORAGE/ANCILLARY AREA AT FIRST FLOOR FOR EXISTING UNIT AND REPLACEMENT EXTERNAL STAIRCASE TO SIDE
Documents
Application Submission Details
Archived
· Original link
Application Submission Details
Archived
· Original link
Application Submission Details
Archived
· Original link
Application Submission Details
Archived
· Original link
Application Submission Details
Archived
· Original link
Application Submission Details
Archived
· Original link
Application Submission Details
Archived
· Original link
Application Submission Details
Archived
· Original link
Application Submission Details
Archived
· Original link
Application Submission Details
Archived
· Original link
Application Submission Details
Archived
· Original link
Application Submission Details
Archived
· Original link
Have your say
Your comment matters. Councils must consider every representation that raises material planning considerations.