← Bolton Council

Status

Deposited Change of use
Received
15 Jan 2026
New homes
0

Full proposal

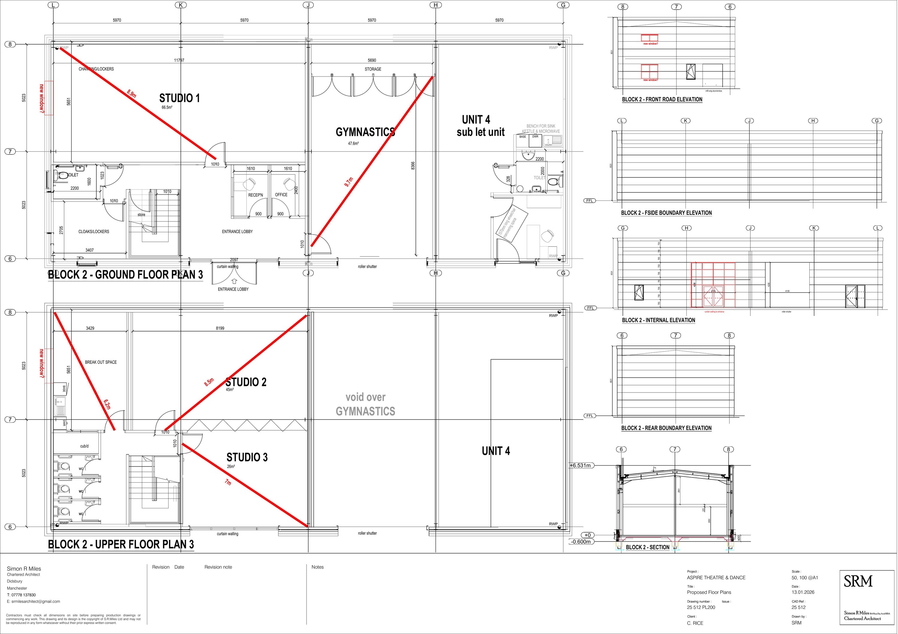
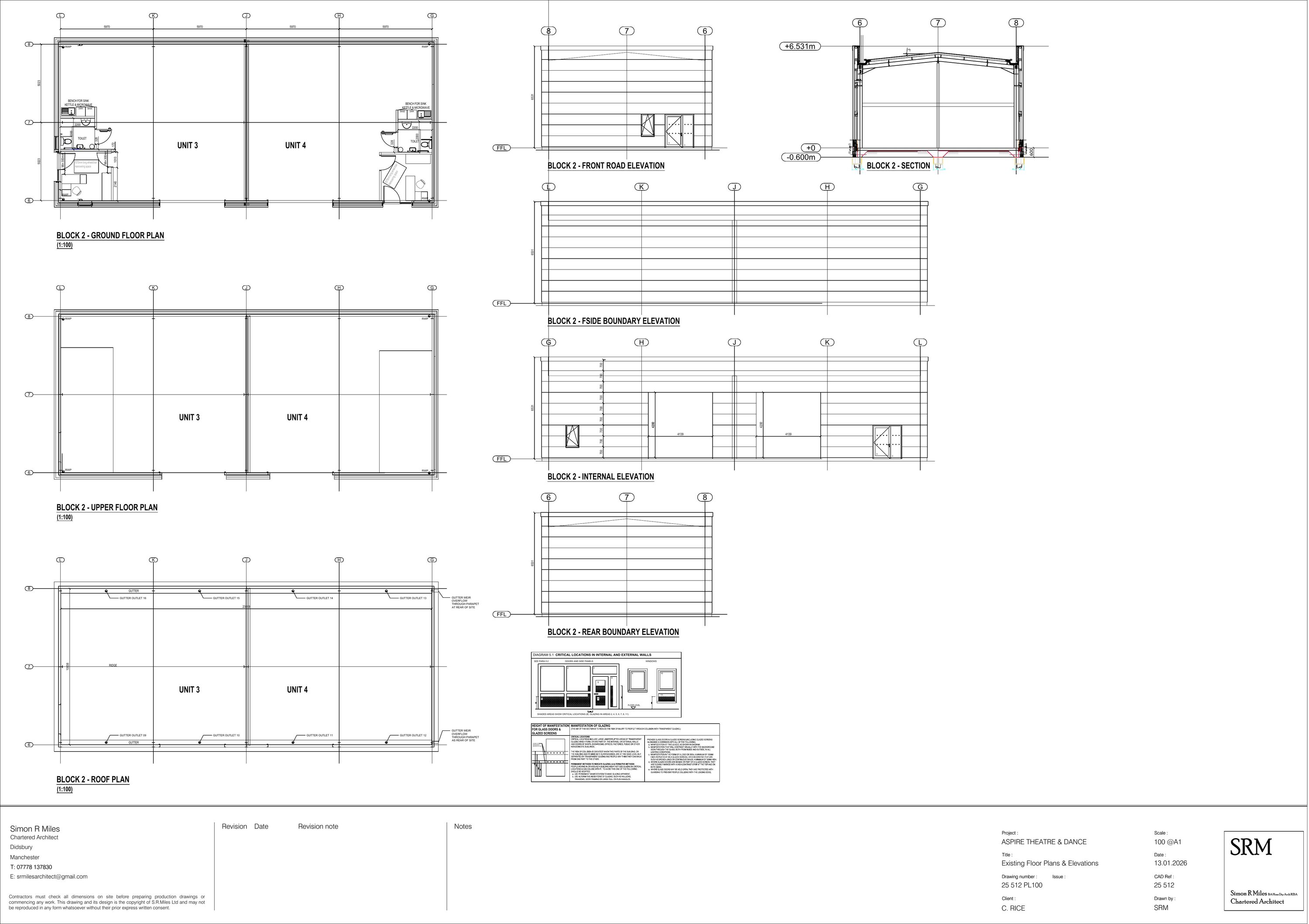
CHANGE OF USE OF VACANT UNIT TO A MIXED USE DEVELOPMENT INCORPORATING A DANCE STUDIO (USE CLASS E(d)) AND A UNIT FOR STORAGE OR LIGHT INDUSTRY (USE CLASS B8 OR E(g)(iii)) TOGETHER WITH INSTALLATION OF 2 NO. WINDOWS AND 1 NO. DOORWAY

Documents

Application Form
Archived · Original link
Application Submission Details
Archived · Original link
Consultee Comment
Archived · Original link
Application Submission Details
Archived · Original link
Consultee Comment
Archived · Original link
Amended Drawing
Archived · Original link
Application Submission Details
Archived · Original link
Application Submission Details
Archived · Original link
Application Submission Details
Archived · Original link
Application Submission Details
Archived · Original link
Amended Drawing
Archived · Original link
Consultee Comment
Archived · Original link
Other
Archived · Original link
Other
Archived · Original link
Consultee Comment
Archived · Original link

Have your say

Your comment matters. Councils must consider every representation that raises material planning considerations.

Write a comment