← Bolton Council

Status

Awaiting decision House extension
Received
16 Jan 2026
New homes
0

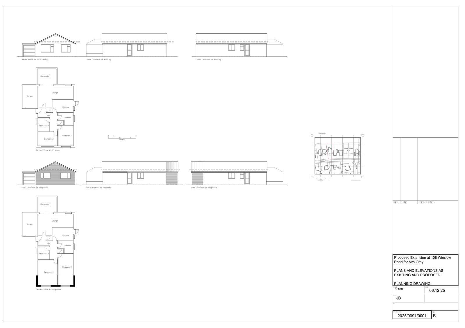
Full proposal

ERECTION OF SINGLE STOREY FRONT EXTENSION

Documents

Application Submission Details
Archived · Original link
Application Submission Details
Archived · Original link
Neighbour Notification List
Archived · Original link

Have your say

Your comment matters. Councils must consider every representation that raises material planning considerations.

Write a comment