← Bolton Council

Status

Deposited House extension
Received
23 Jan 2026
New homes
0

Full proposal

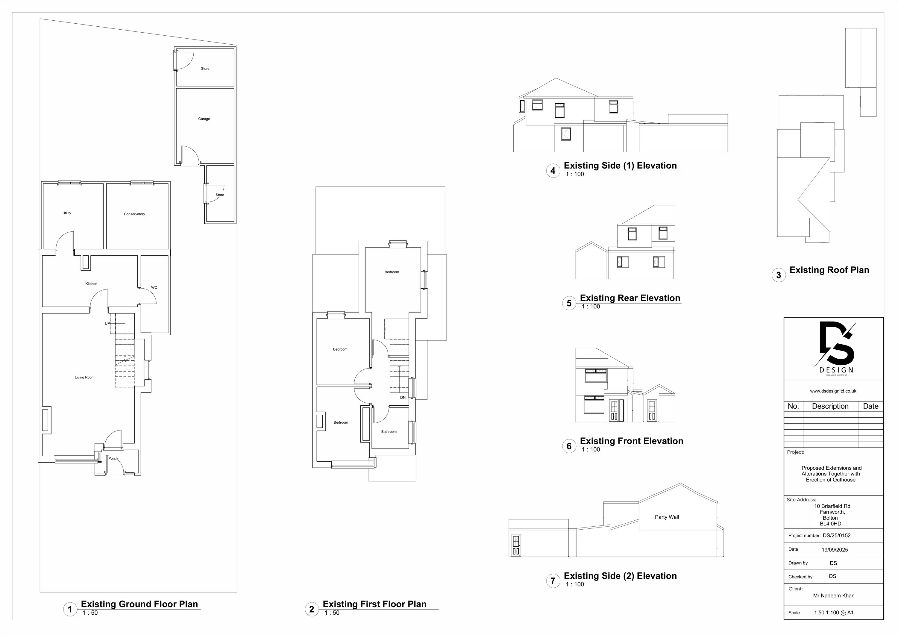
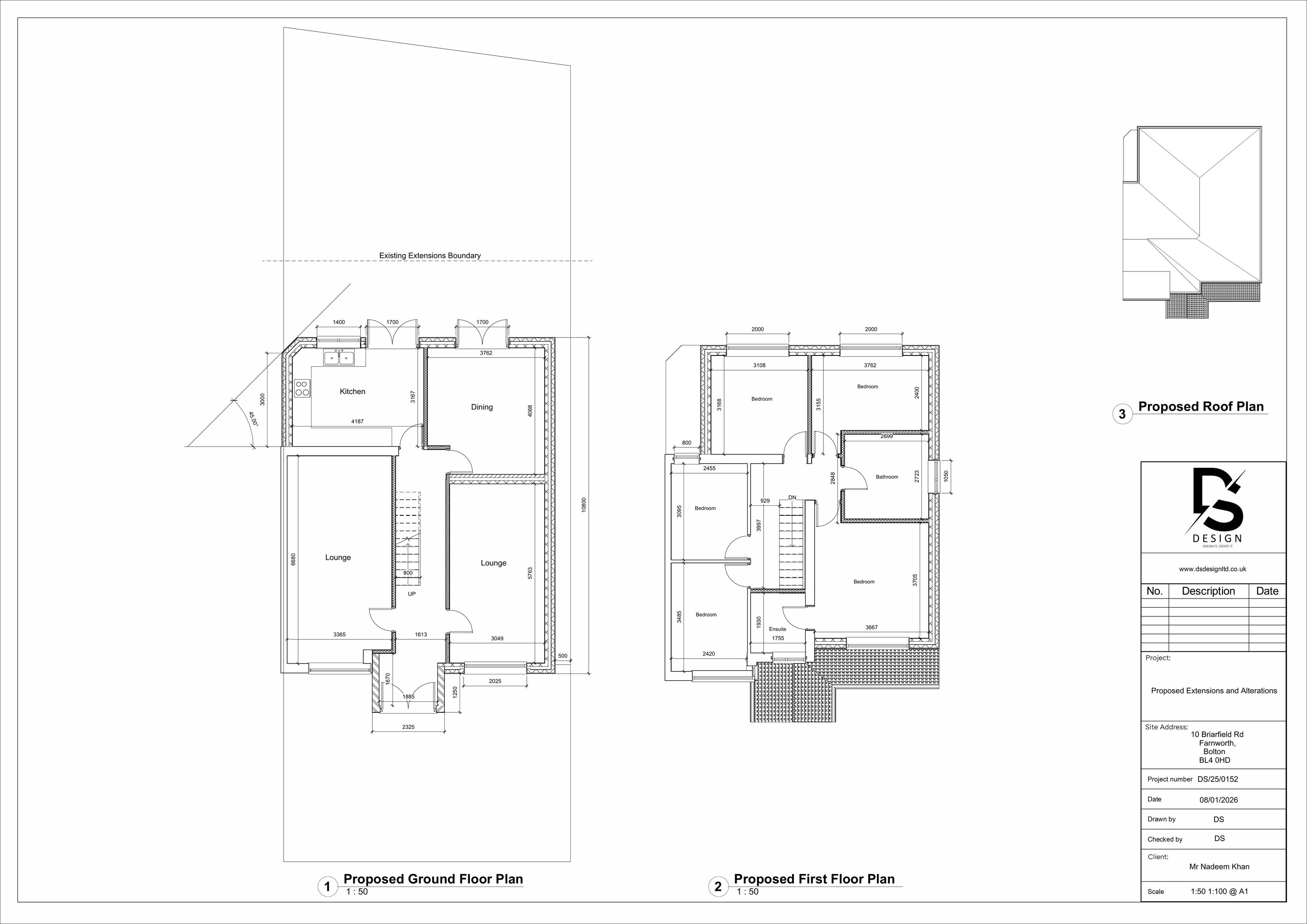
ERECTION OF SINGLE STOREY PORCH EXTENSION, TWO STOREY SIDE EXTENSION, AND PART SINGLE, PART TWO STOREY REAR EXTENSION

Documents

Application Form
Archived · Original link
Application Submission Details
Archived · Original link
Application Submission Details
Archived · Original link
Application Submission Details
Archived · Original link
Application Submission Details
Archived · Original link
Consultation Plan
Archived · Original link
Application Submission Details
Archived · Original link
Amended Drawing
Archived · Original link
Application Submission Details
Archived · Original link
Application Submission Details
Archived · Original link

Have your say

Your comment matters. Councils must consider every representation that raises material planning considerations.

Write a comment