← Bolton Council

Status

Deposited Change of use
Received
26 Jan 2026
New homes
1

Full proposal

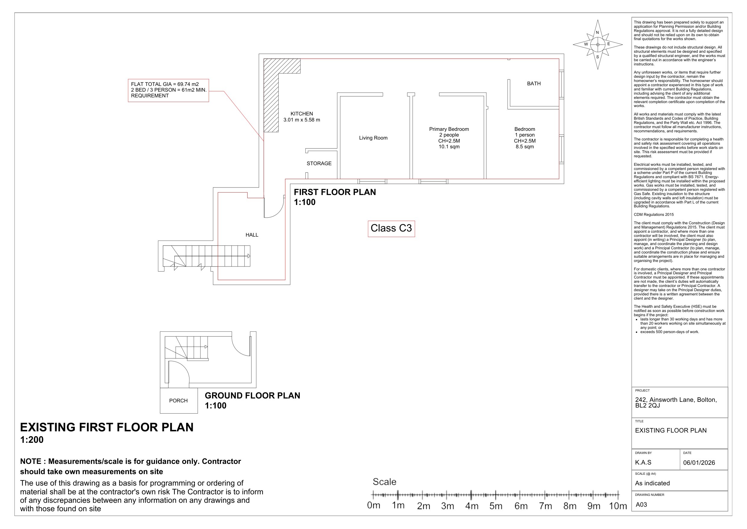
RETROSPECTIVE APPLICATION FOR CHANGE OF USE OF FIRST FLOOR FROM ANCILLARY DANCE STUDIO (CLASS E) TO 1 NO. SELF CONTAINED APARTMENT WITH THE ERECTION OF FIRST FLOOR SIDE EXTENSION TO FORM AN INTERNAL STAIRCASE.

Documents

Application Form
Archived · Original link
Application Submission Details
Archived · Original link
Application Submission Details
Archived · Original link
Application Submission Details
Archived · Original link
Application Submission Details
Archived · Original link
Consultee Comment
Archived · Original link
Application Submission Details
Archived · Original link
Consultee Comment
Archived · Original link
Application Submission Details
Archived · Original link
Application Submission Details
Archived · Original link
Application Submission Details
Archived · Original link
Application Submission Details
Archived · Original link
Application Submission Details
Archived · Original link

Have your say

Your comment matters. Councils must consider every representation that raises material planning considerations.

Write a comment