← Bolton Council

Status

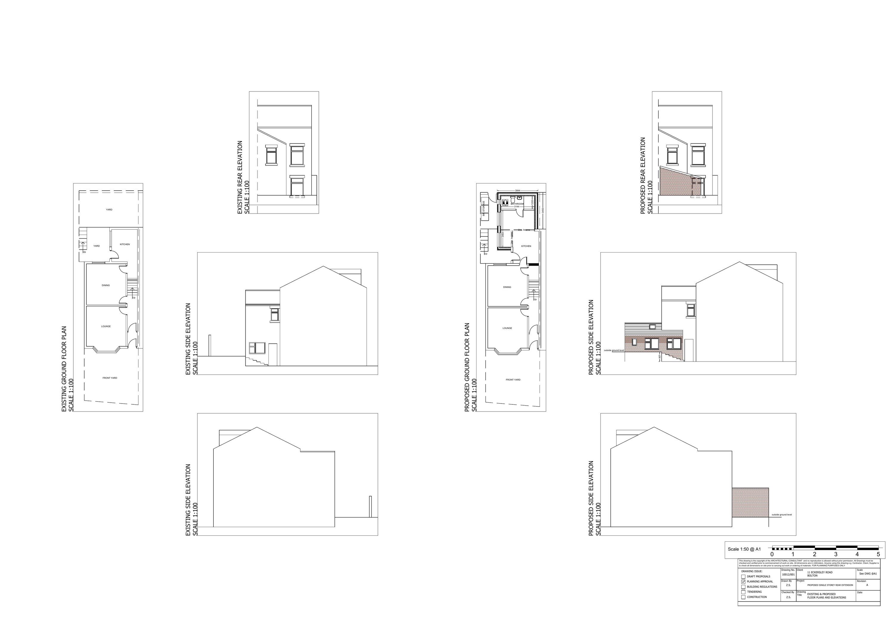
Deposited House extension
Received
Last month
New homes
0

Full proposal

ERECTION OF SINGLE STOREY REAR EXTENSION

Documents

Application Form
Archived · Original link
Application Form
Archived · Original link
Application Submission Details
Archived · Original link
Application Submission Details
Archived · Original link
Application Submission Details
Archived · Original link

Have your say

Your comment matters. Councils must consider every representation that raises material planning considerations.

Write a comment