← Bolton Council

Status

Deposited House extension
Received
Last month
New homes
0

Full proposal

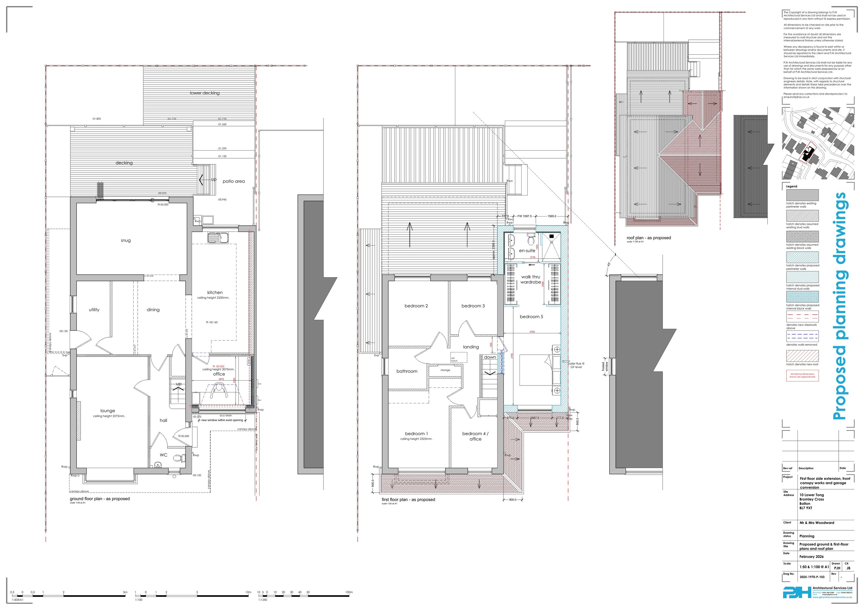
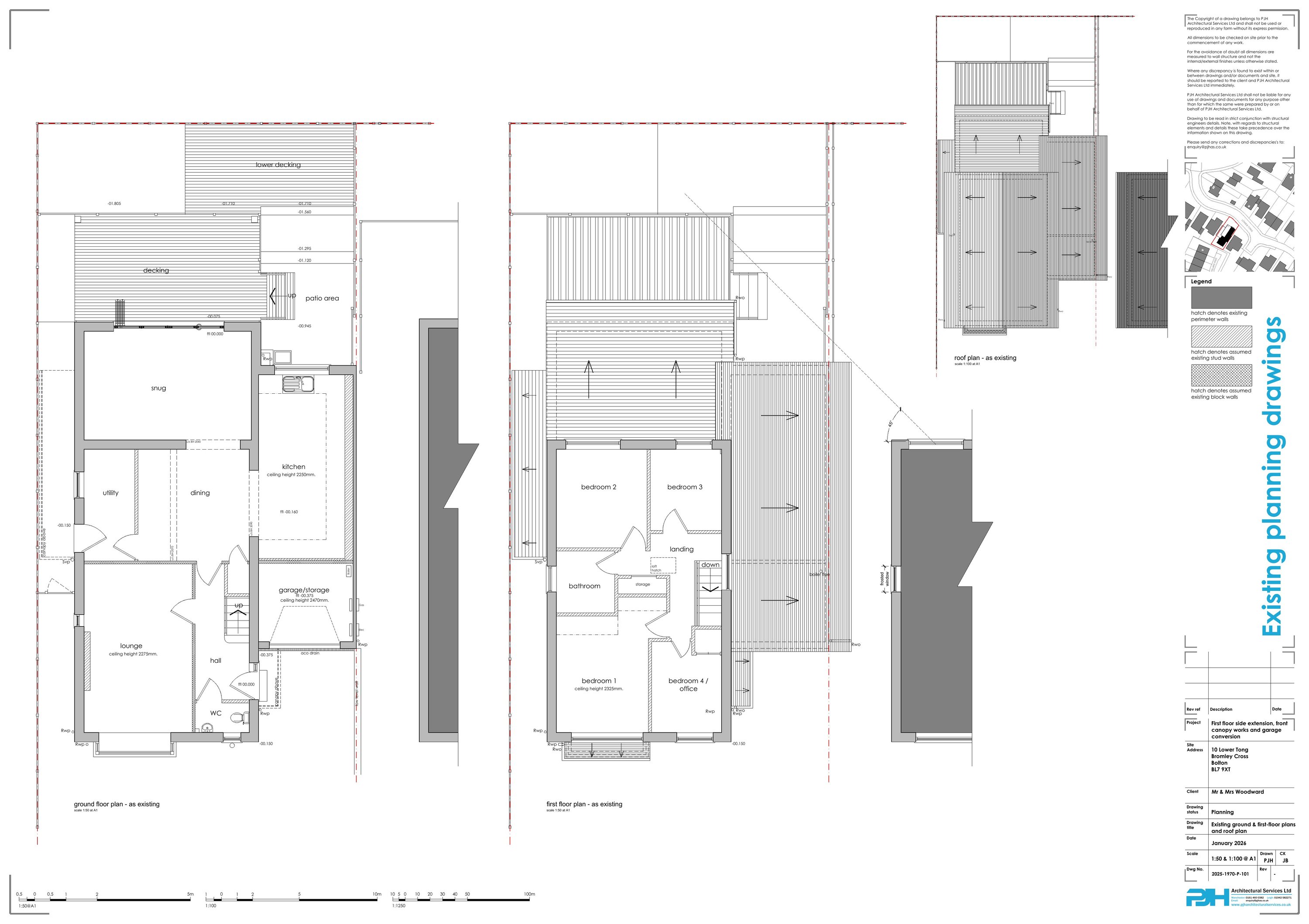
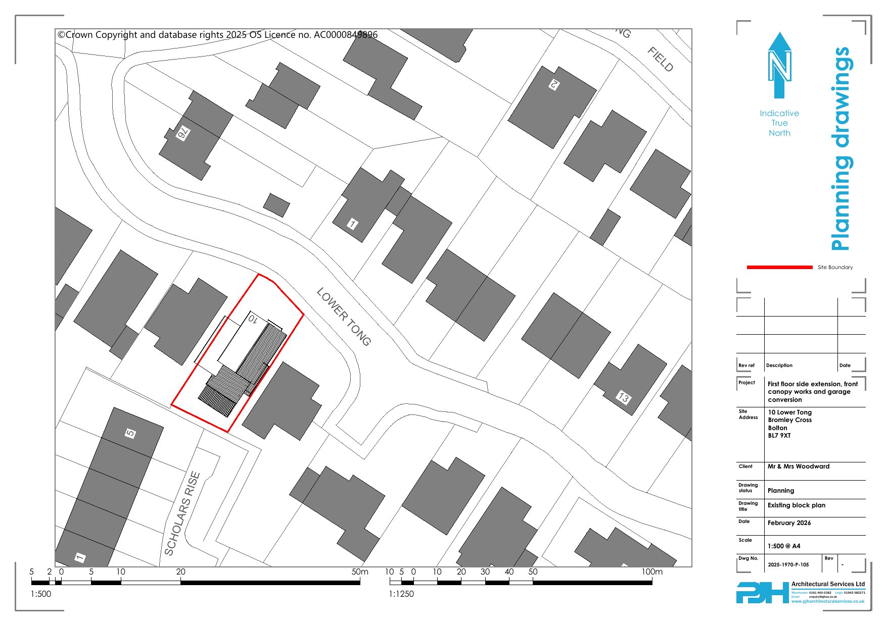
ERECTION OF A SINGLE STOREY FIRST FLOOR SIDE EXTENSION TOGETHER WITH ALTERATIONS TO FRONT CANOPY AND CONVERSION OF GARAGE TO HABITABLE ROOM

Documents

Application Form
Archived · Original link
Application Form
Archived · Original link
Application Form
Archived · Original link
Application Form
Archived · Original link
Application Form
Archived · Original link
Other
Archived · Original link
Application Form
Archived · Original link
Application Form
Archived · Original link

Have your say

Your comment matters. Councils must consider every representation that raises material planning considerations.

Write a comment