← Bolton Council

Status

Deposited House extension
Received
Last month
New homes
0

Full proposal

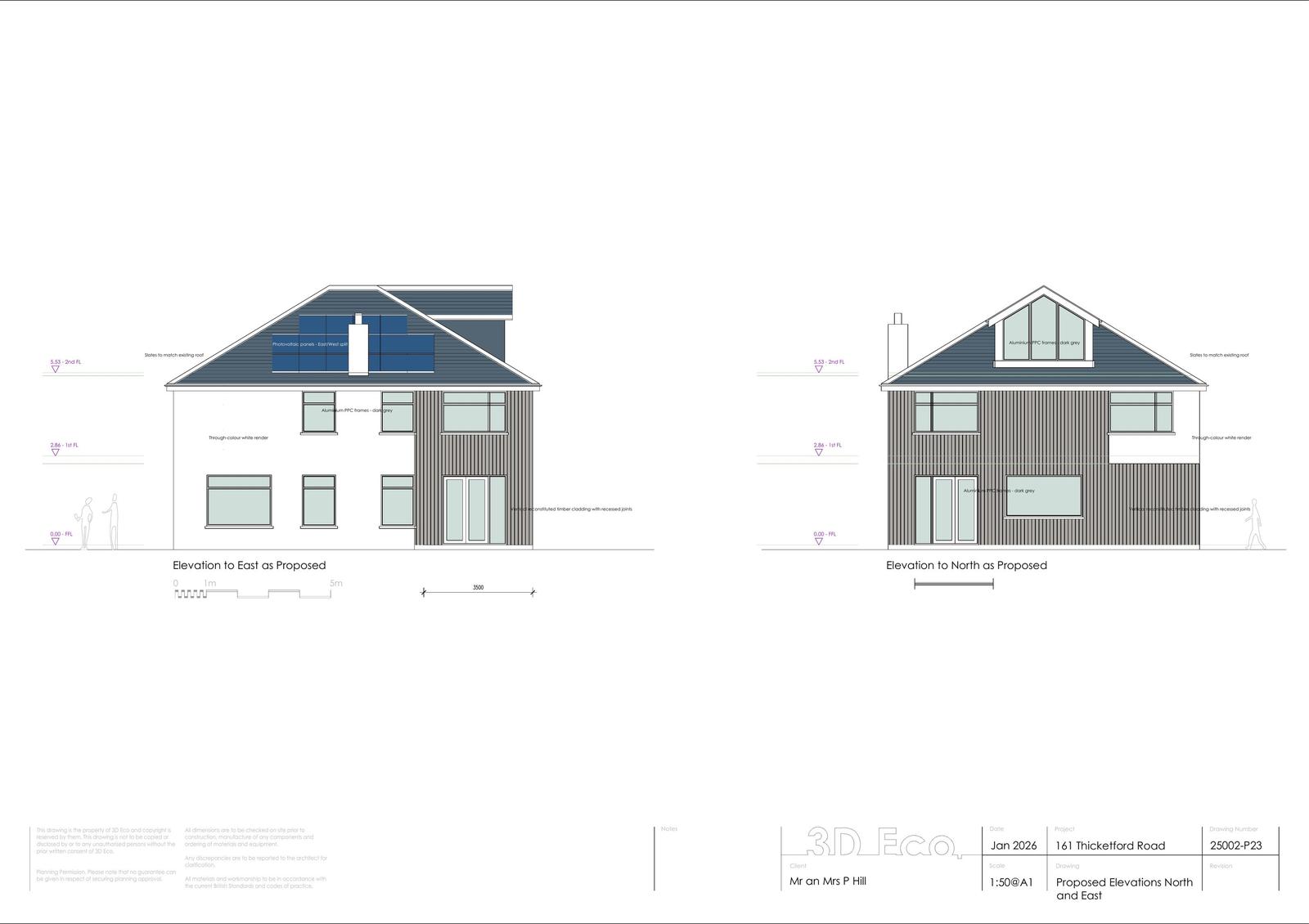
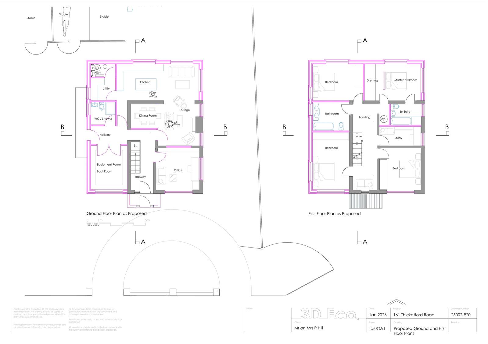
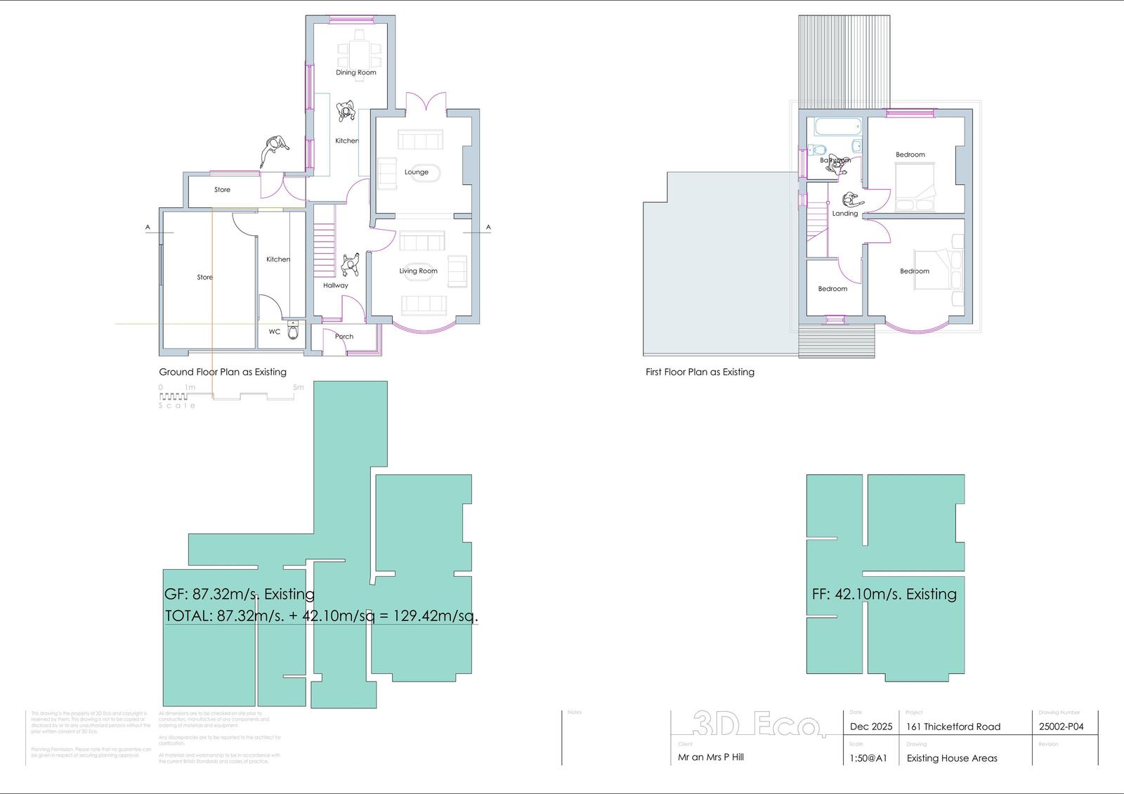
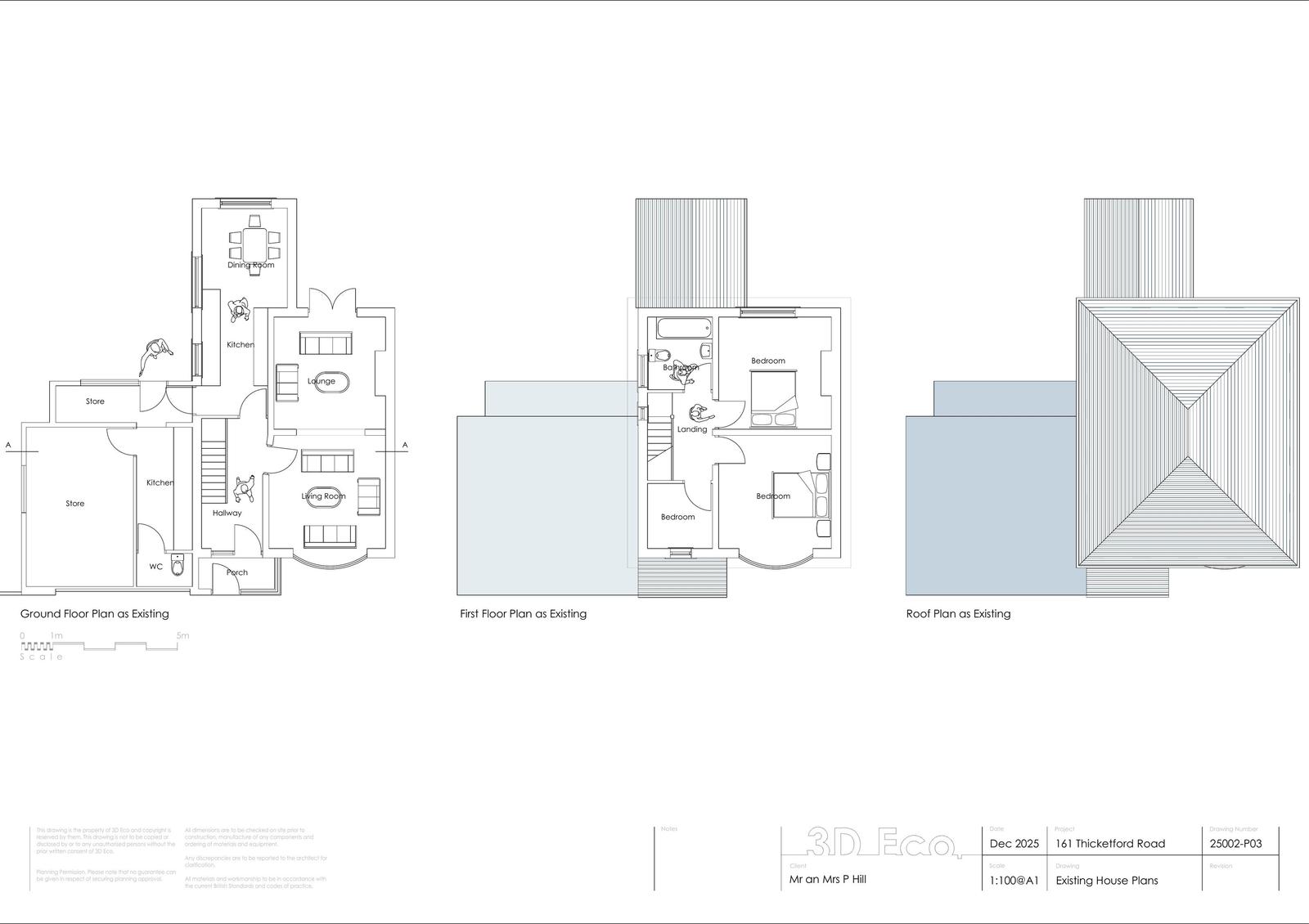
DEMOLTION OF EXISTING GARAGE AND ERECTION OF A TWO STOREY SIDE AND PART SINGLE PART TWO STOREY REAR EXTENSION TOGETHER WITH REAR DORMER.

Documents

Application Form
Archived · Original link
Application Submission Details
Archived · Original link
Amended Drawing
Archived · Original link
Amended Drawing
Archived · Original link
Amended Drawing
Archived · Original link
Amended Drawing
Archived · Original link
Amended Drawing
Archived · Original link
Amended Drawing
Archived · Original link
Amended Drawing
Archived · Original link
Amended Drawing
Archived · Original link
Amended Drawing
Archived · Original link
Amended Drawing
Archived · Original link
Application Submission Details
Archived · Original link
Amended Drawing
Archived · Original link
Amended Drawing
Archived · Original link
Amended Drawing
Archived · Original link
Amended Drawing
Archived · Original link
Amended Drawing
Archived · Original link
Amended Drawing
Archived · Original link
Amended Drawing
Archived · Original link
Amended Drawing
Archived · Original link
Amended Drawing
Archived · Original link
Amended Drawing
Archived · Original link

Have your say

Your comment matters. Councils must consider every representation that raises material planning considerations.

Write a comment