← Bolton Council

Status

Awaiting decision Change of use
Received
01 Aug 2025
New homes
0

Summary

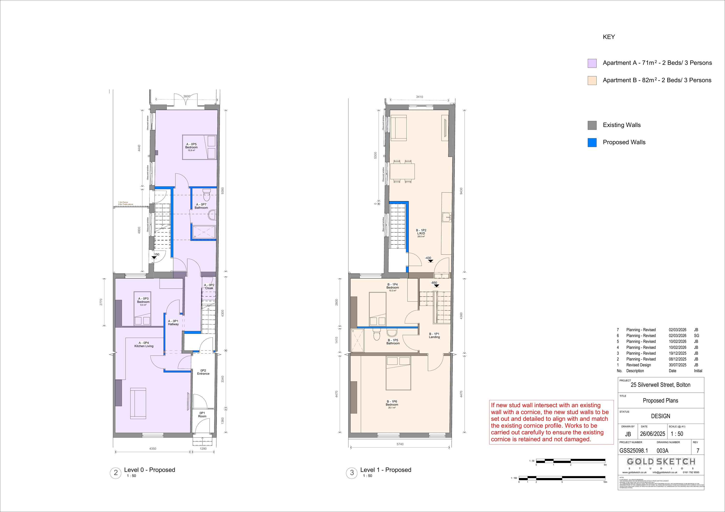
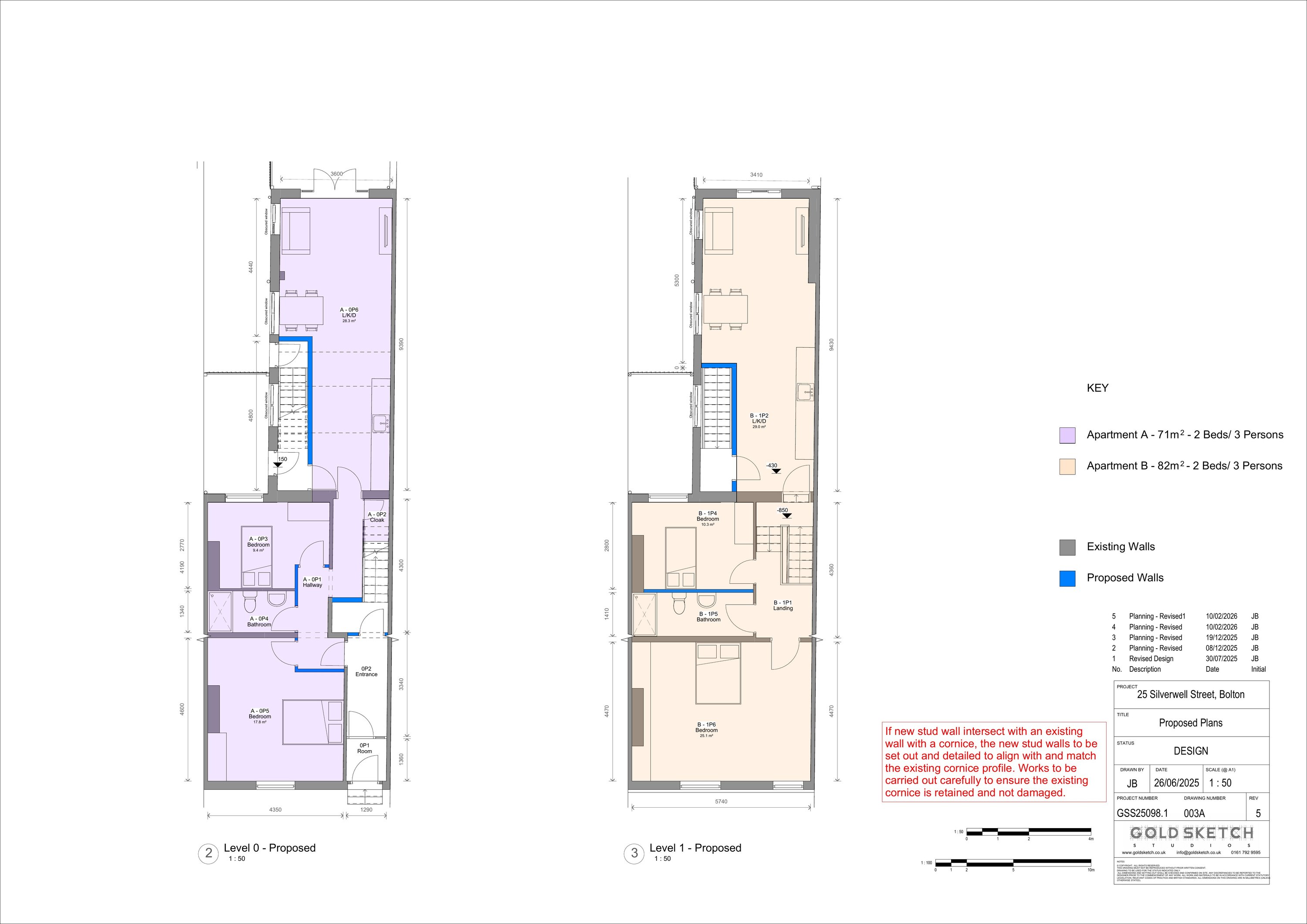
Change of use of offices to two self-contained apartments.

Full proposal

CHANGE OF USE FROM OFFICES TO 2NO. 2-BEDROOM APARTMENTS TOGETHER WITH ALTERATIONS TO FENESTRATION AND BOUNDARY TREATMENTS

Documents

APPLICATION FORM REDACTED
Application Submission Details
Not yet archived · Original link
ApplicationFormRedacted
Application Form
Not yet archived · Original link
BIKE STORAGE ELEVATIONS
Application Submission Details
Not yet archived · Original link
BIKE STORAGE SPEC
Application Submission Details
Not yet archived · Original link
BMBC Conservation
Other
Not yet archived · Original link
BMBC Conservation final
Other
Not yet archived · Original link
Decision
Amended Drawing
Not yet archived · Original link
DESIGN AND ACCESS STATEMENT
Application Submission Details
Not yet archived · Original link
Design for Security
Consultee Comment
Not yet archived · Original link
Environmental Health
Consultee Comment
Not yet archived · Original link
Amended Drawing
Archived · Original link
Amended Drawing
Archived · Original link
Amended Drawing
Archived · Original link
Application Submission Details
Archived · Original link
EXISTING ELEVATIONS
Application Submission Details
Not yet archived · Original link
EXISTING PLANS
Application Submission Details
Not yet archived · Original link
Heritage Statement
Other
Not yet archived · Original link
HERITAGE STATEMENT
Application Submission Details
Not yet archived · Original link
LOCATION PLAN
Application Submission Details
Not yet archived · Original link
Mr Paul Hodges
Consultee Comment
Not yet archived · Original link
Neighbour Consultation Plan
Other
Not yet archived · Original link
NOISE ASSESSMENT
Other
Not yet archived · Original link
Pollution control final
Consultee Comment
Not yet archived · Original link
PROPOSED ELEVATIONS
Amended Drawing
Not yet archived · Original link
PROPOSED ELEVATIONS
Amended Drawing
Not yet archived · Original link
Proposed Elevations
Amended Drawing
Not yet archived · Original link
PROPOSED ELEVATIONS
Application Submission Details
Not yet archived · Original link
Amended Drawing
Archived · Original link
Amended Drawing
Archived · Original link
Amended Drawing
Archived · Original link
Application Submission Details
Archived · Original link
RESIDENTIAL STANDARDS STATEMENT
Application Submission Details
Not yet archived · Original link

Have your say

Your comment matters. Councils must consider every representation that raises material planning considerations.

Write a comment