← Bolton Council

Status

Deposited House extension
Received
19 Sep 2025
New homes
0

Full proposal

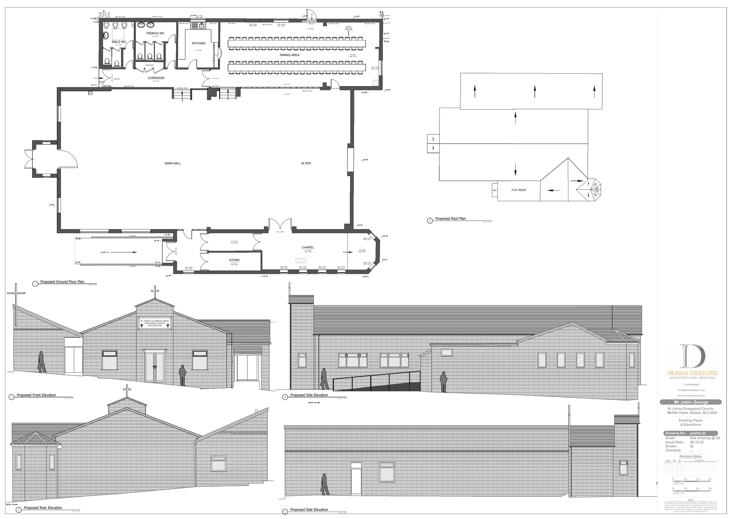
ERECTION OF A SINGLE STOREY SIDE EXTENSION

Documents

Application Form
Archived · Original link
Application Submission Details
Archived · Original link
Application Submission Details
Archived · Original link
Consultee Comment
Archived · Original link
Application Submission Details
Archived · Original link
Application Submission Details
Archived · Original link
Application Submission Details
Archived · Original link
Application Form
Archived · Original link

Have your say

Your comment matters. Councils must consider every representation that raises material planning considerations.

Write a comment