← Bolton Council

Status

Deposited House extension
Received
01 Dec 2025
New homes
0

Full proposal

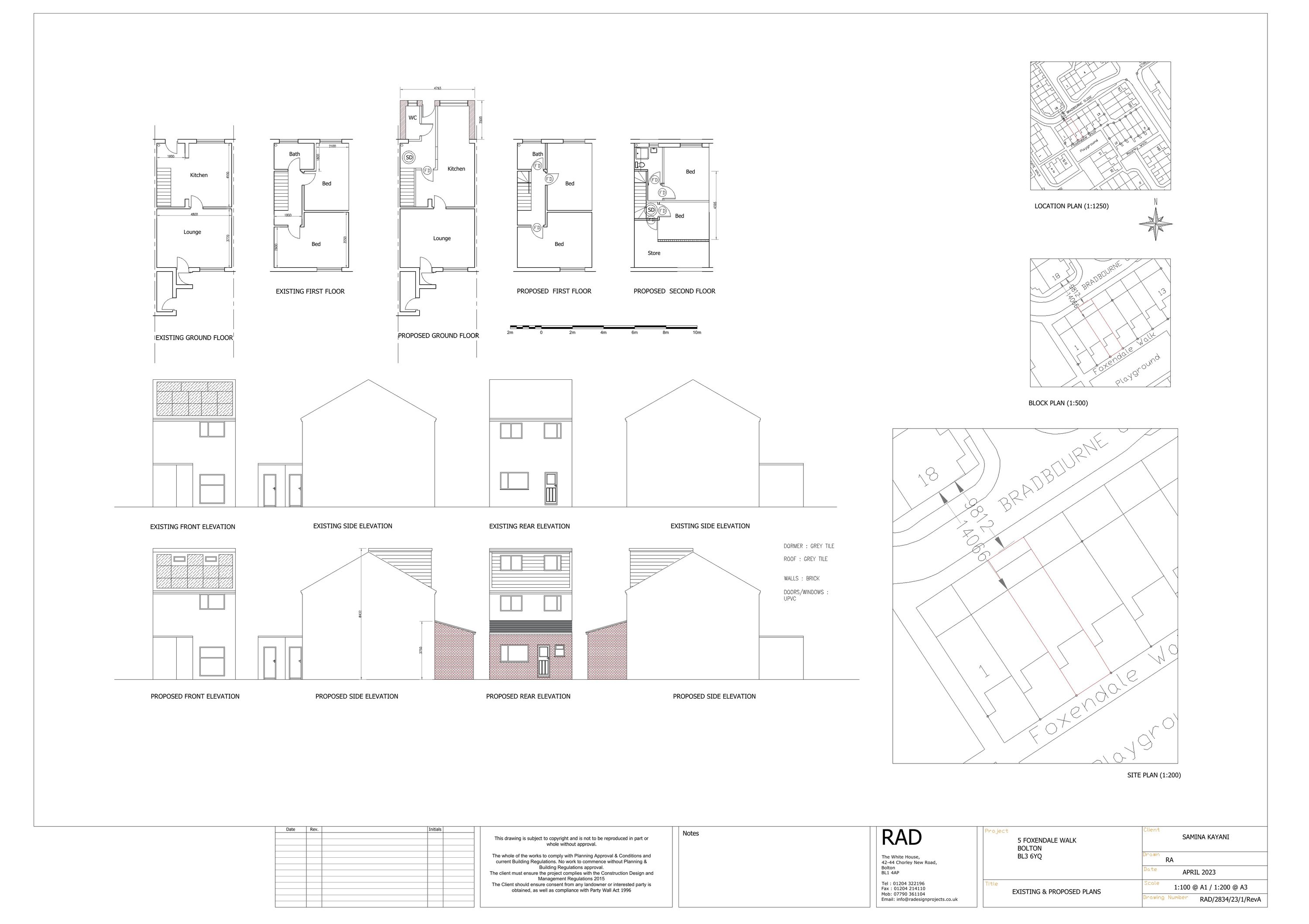
RETROSPECTIVE APPLICATION FOR ERECTION OF A SINGLE STOREY REAR EXTENSION TOGETHER WITH REAR DORMER.

Documents

Application Submission Details
Archived · Original link
Application Submission Details
Archived · Original link

Have your say

Your comment matters. Councils must consider every representation that raises material planning considerations.

Write a comment