← Bolton Council

Status

Awaiting decision House extension
Received
19 Dec 2025
New homes
0

Full proposal

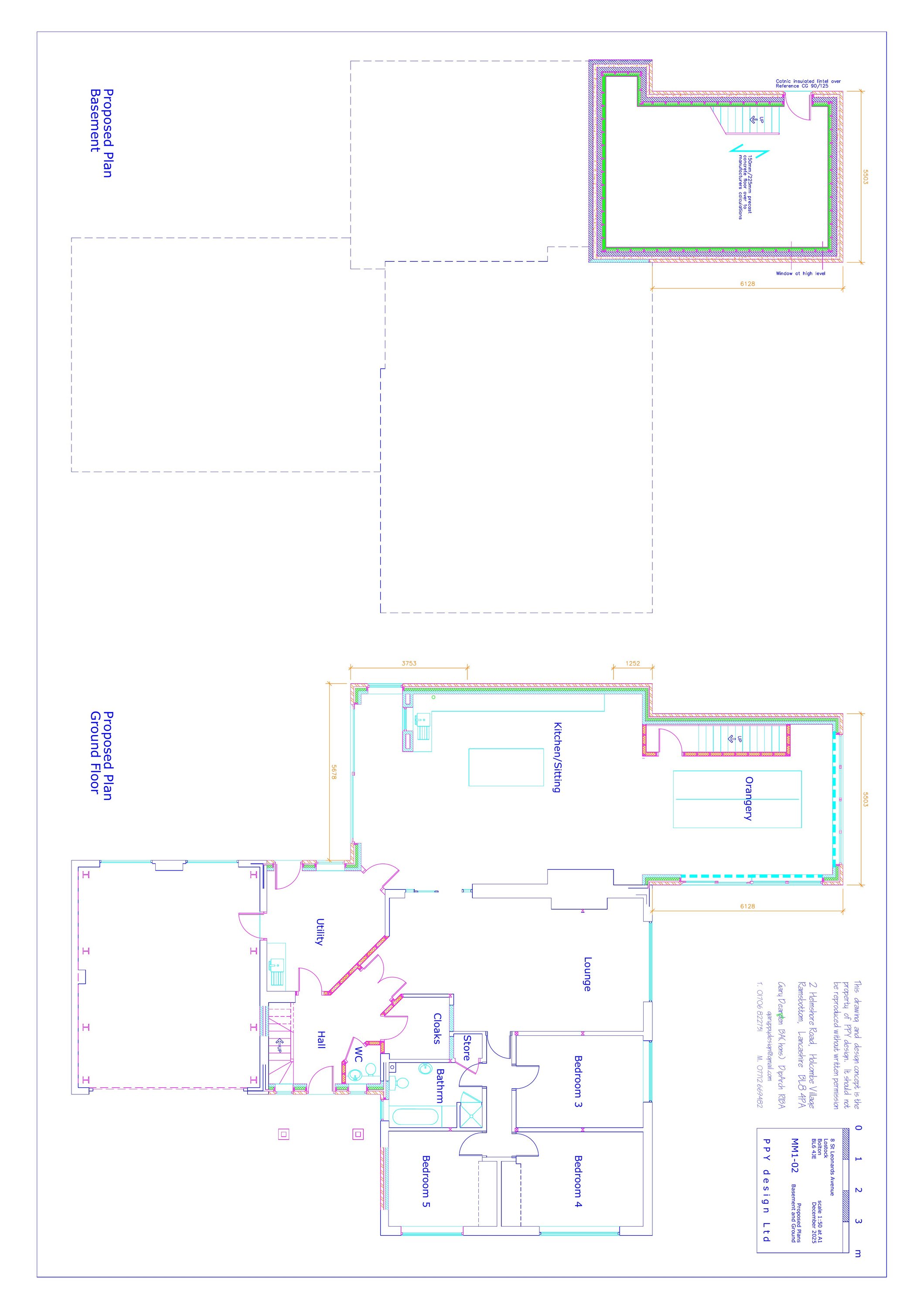
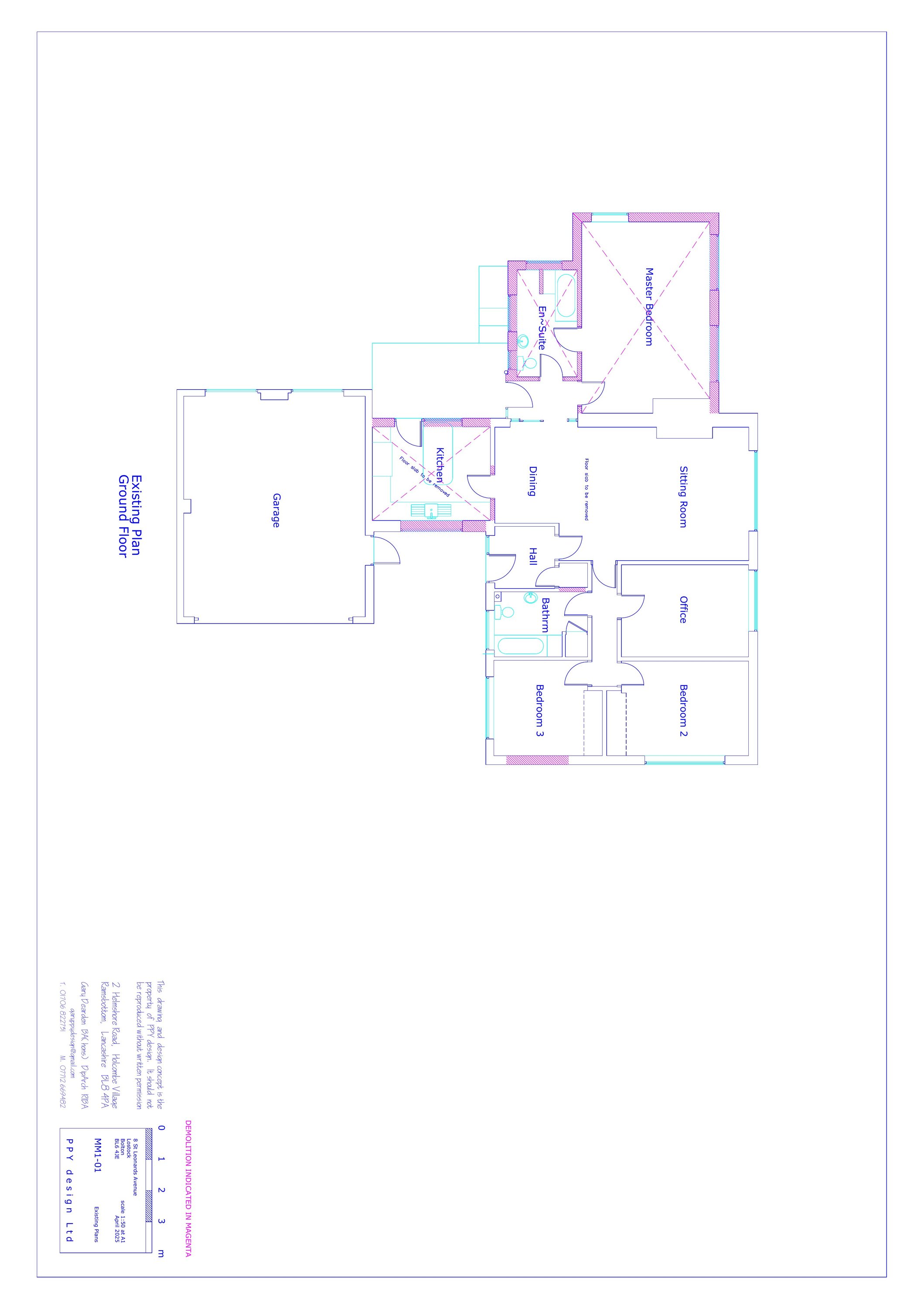
DEMOLITION OF EXISTING REAR EXTENSION AND ERECTION OF SINGLE STOREY REAR AND SIDE INCLUDING PART BASEMENT, SINGLE STOREY FRONT EXTENSION WITH ENTRANCE PORCH, RAISED PITCHED ROOF AT GROUND FLOOR LEVEL, FIRST FLOOR SIDE EXTENSION AND FRONT DORMER.

Documents

Application Submission Details
Archived · Original link
Application Submission Details
Archived · Original link
Application Submission Details
Archived · Original link
Application Submission Details
Archived · Original link
Application Submission Details
Archived · Original link
Application Submission Details
Archived · Original link
Application Submission Details
Archived · Original link
Application Submission Details
Archived · Original link
Application Submission Details
Archived · Original link
Application Submission Details
Archived · Original link
Application Submission Details
Archived · Original link
Application Submission Details
Archived · Original link
Application Submission Details
Archived · Original link
Application Submission Details
Archived · Original link

Have your say

Your comment matters. Councils must consider every representation that raises material planning considerations.

Write a comment