← Bolton Council

Status

Deposited House extension
Received
29 Dec 2025
New homes
0

Full proposal

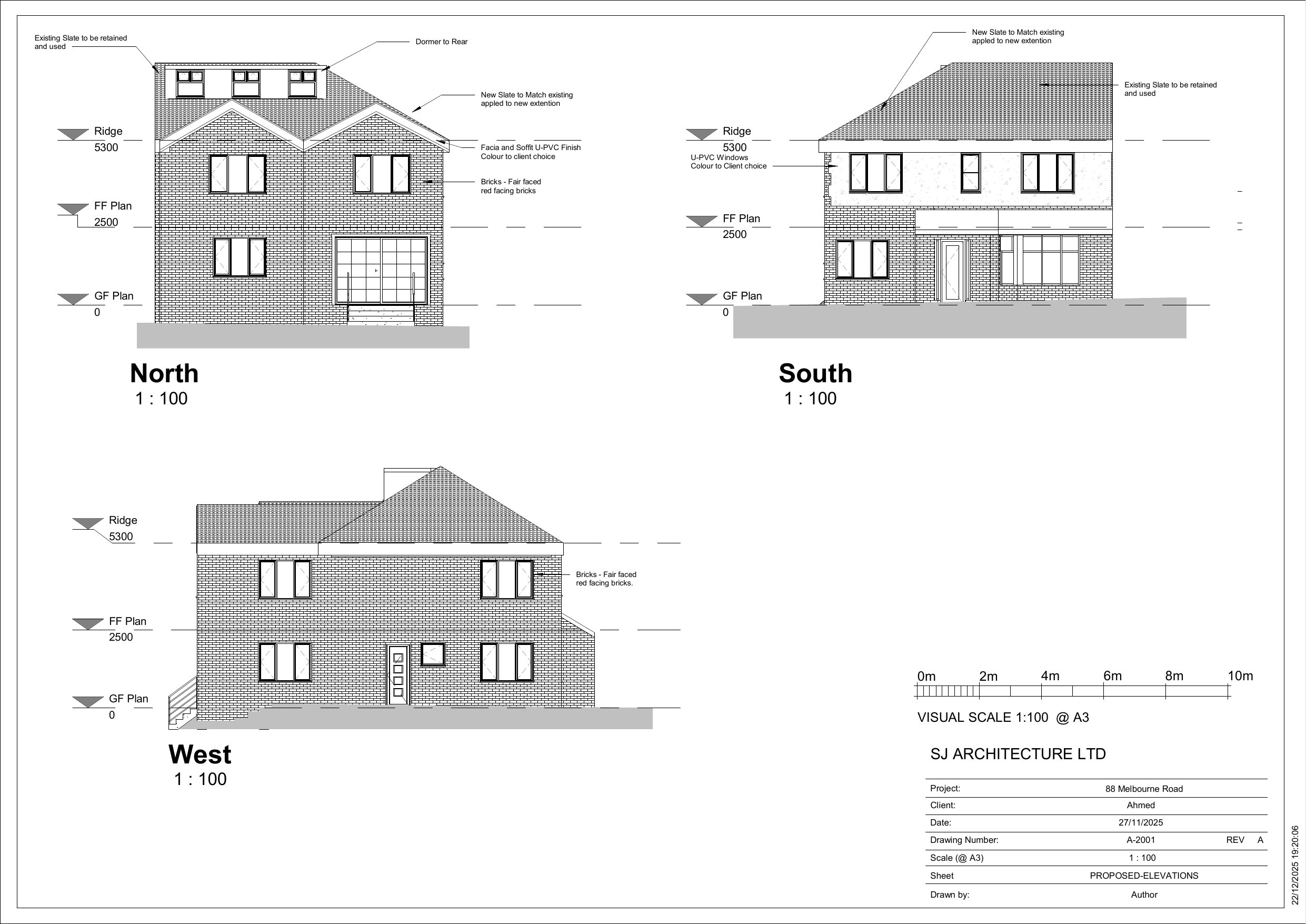
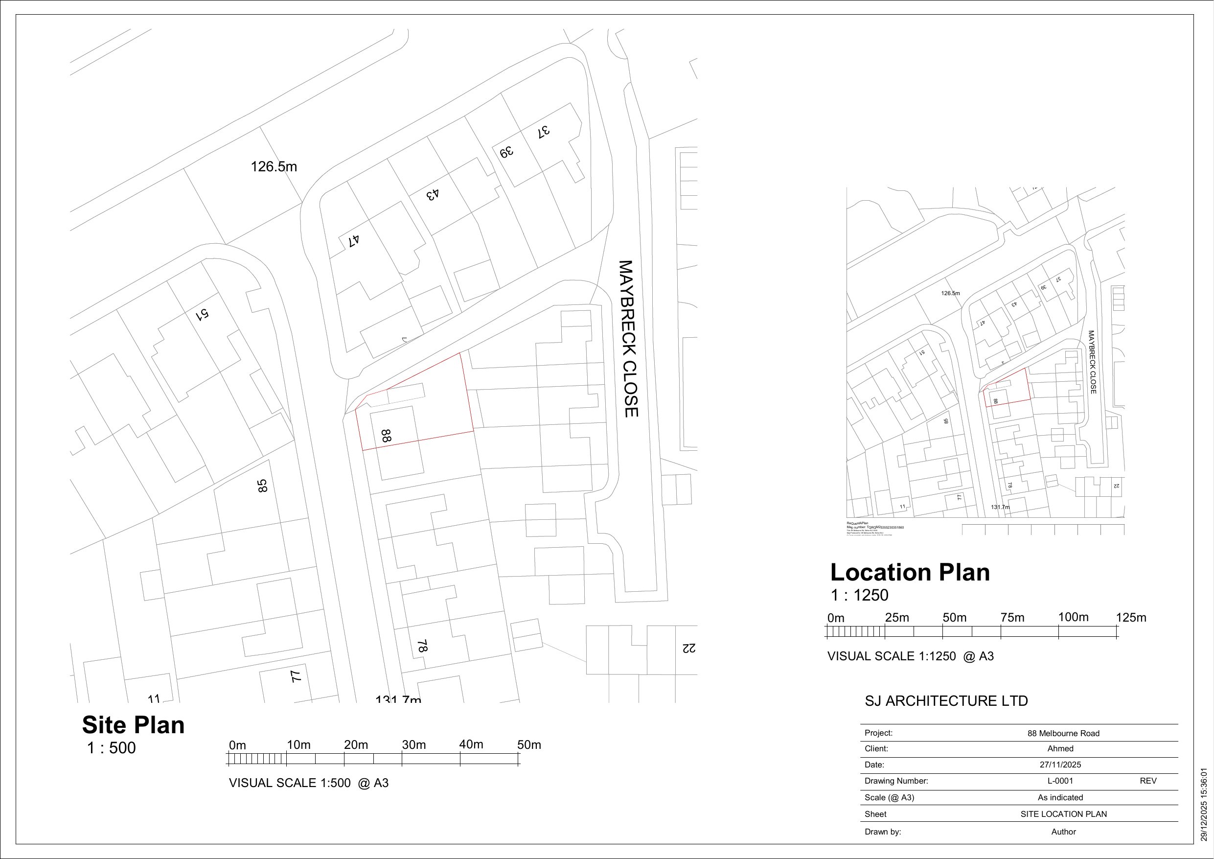
DEMOLITION OF EXISTING DETACHED GARAGE TOGETHER WITH THE ERECTION OF A TWO STOREY SIDE AND REAR EXTENSION, INSTALLATION OF AN EXTERNAL STAIRCASE WITH BALUSTRADE TO THE REAR, AND ERECTION OF A SINGLE STOREY FRONT EXTENSION

Documents

Application Submission Details
Archived · Original link
Application Submission Details
Archived · Original link
Application Submission Details
Archived · Original link
Application Submission Details
Archived · Original link
Application Submission Details
Archived · Original link
Application Submission Details
Archived · Original link

Have your say

Your comment matters. Councils must consider every representation that raises material planning considerations.

Write a comment