← Bournemouth, Christchurch and Poole Council

Status

StatusApplication Under Consideration New housing
Received
16 Jan 2026
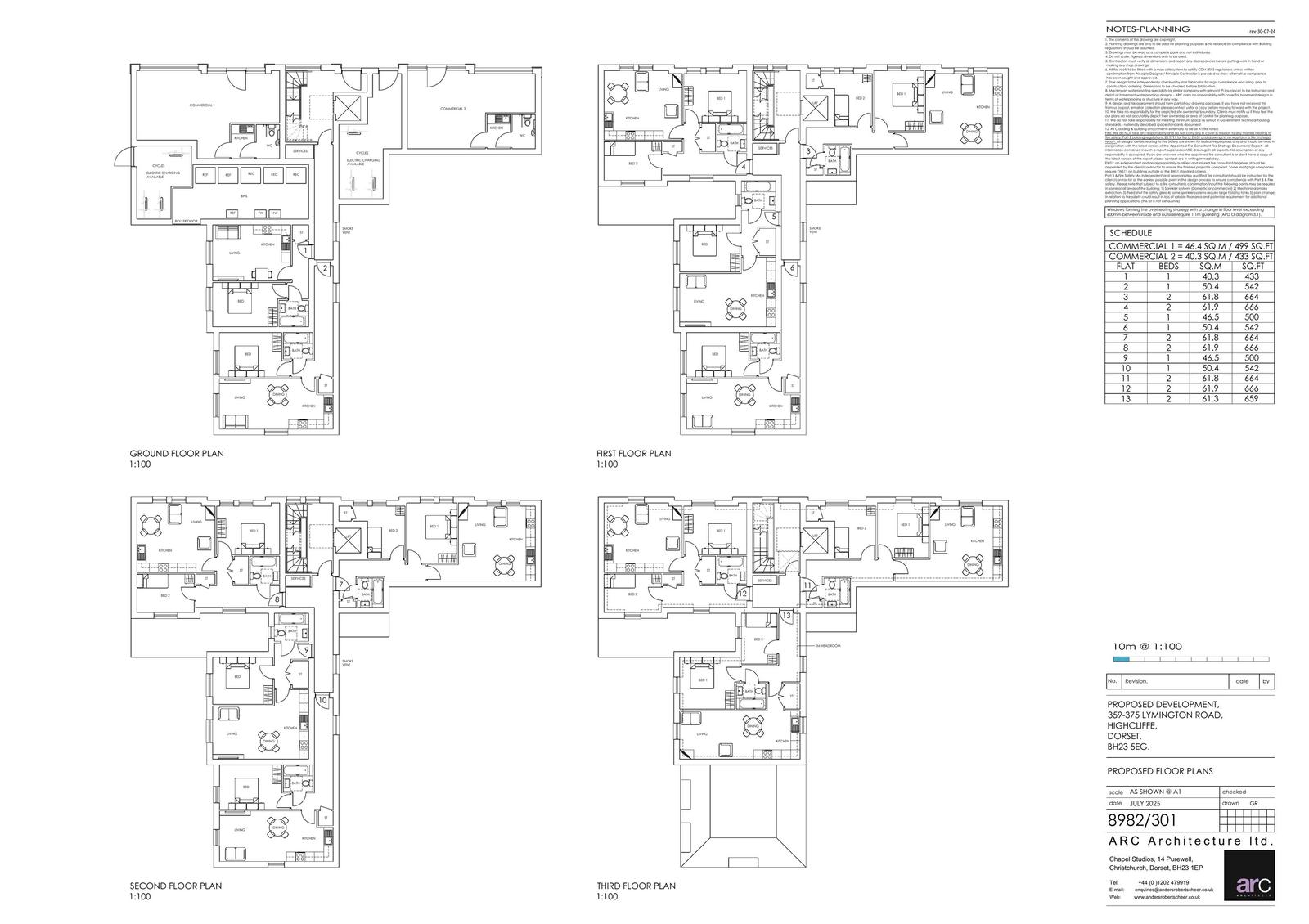
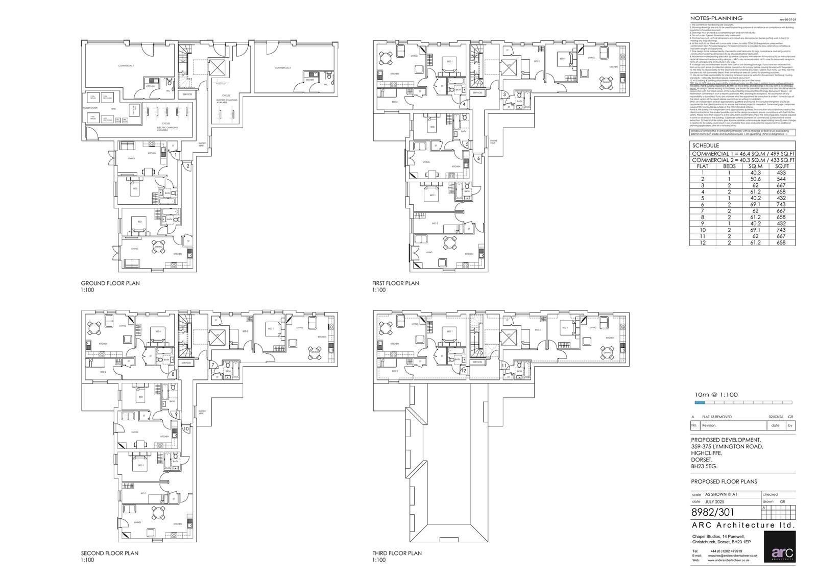
New homes
13

Full proposal

Proposal/DescriptionRedevelopment of the site following demolition of the existing building to provide two retail units and 13 flats

Documents

-
Document
Archived · Original link
-
Document
Archived · Original link
-
Document
Archived · Original link
-
Document
Archived · Original link
-
Document
Archived · Original link
Document
Archived · Original link
Document
Archived · Original link
Document
Archived · Original link
Document
Archived · Original link
Document
Archived · Original link
Document
Archived · Original link

Have your say

Your comment matters. Councils must consider every representation that raises material planning considerations.

Write a comment