← Bournemouth, Christchurch and Poole Council

Status

StatusApplication Under Consideration New housing
Received
Last month
New homes
1

Full proposal

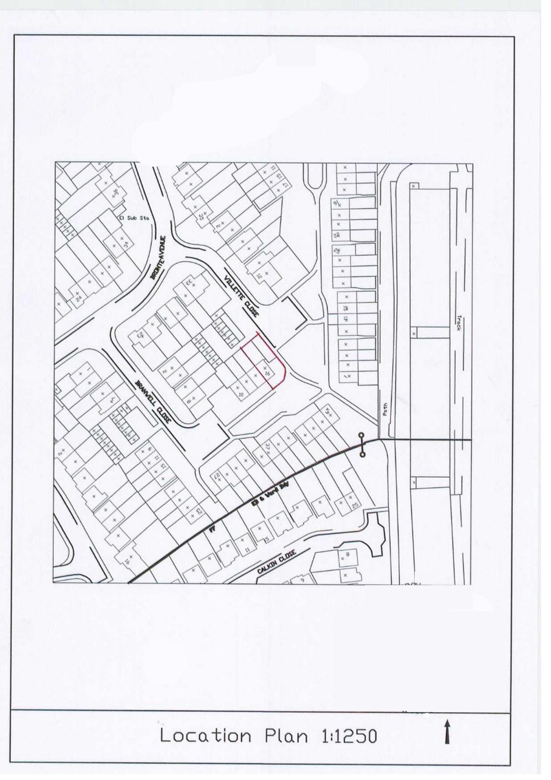
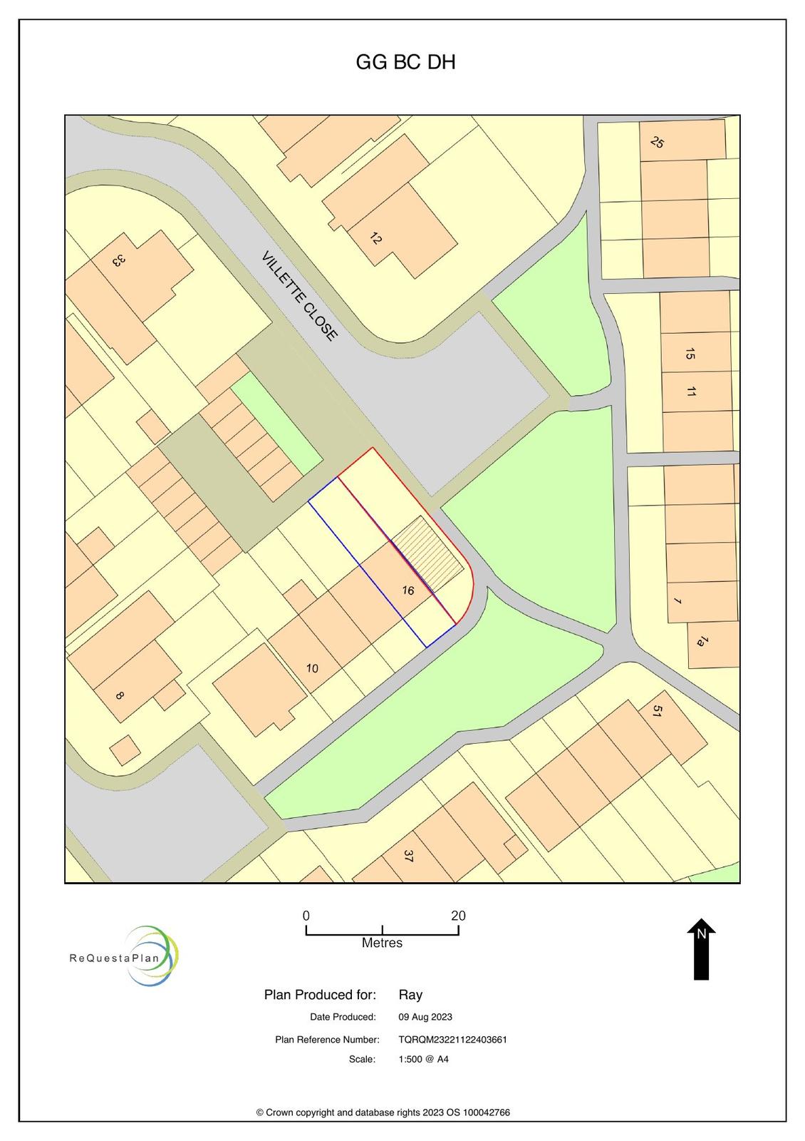
Proposal/DescriptionSubdivision of the plot, Erection of single, end-terrace dwellinghouse

Documents

-
Document
Archived · Original link
-
Document
Archived · Original link
-
Document
Archived · Original link
-
Document
Archived · Original link
-
Document
Archived · Original link

Have your say

Your comment matters. Councils must consider every representation that raises material planning considerations.

Write a comment