← Bournemouth, Christchurch and Poole Council

Status

StatusApplication Under Consideration Change of use
Received
Last month
New homes
0

Full proposal

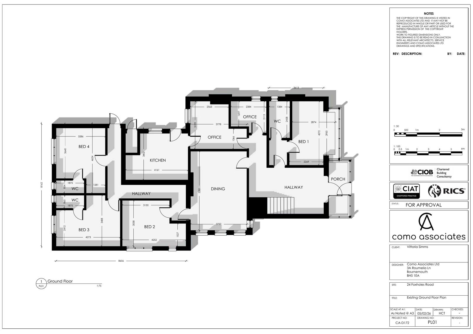
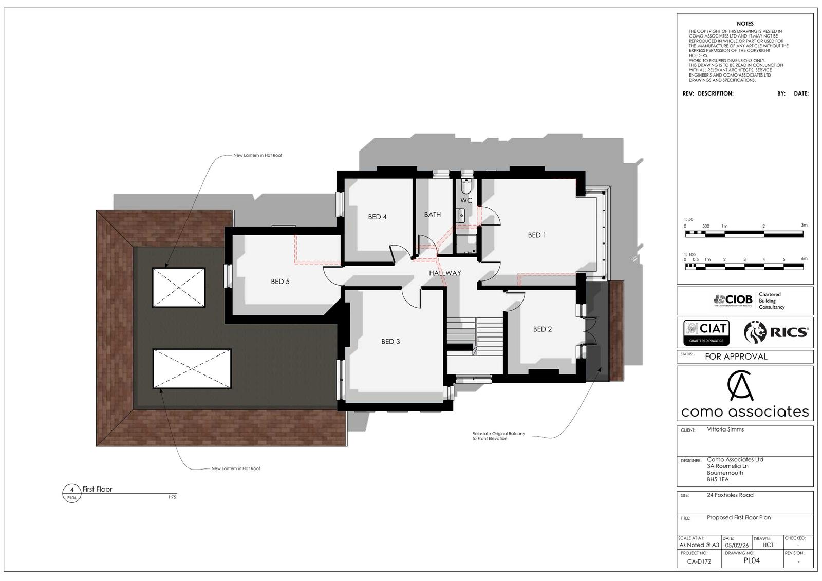
Proposal/DescriptionMinor internal alterations, repositioning of externals doors and windows including the reinstatement of original first floor balcony to principal elevation and change of use from residential institution (Class C2) to dwellinghouse (Class C3)

Documents

-
Document
Archived · Original link
-
Document
Archived · Original link
Document
Archived · Original link
Document
Archived · Original link
Document
Archived · Original link
Document
Archived · Original link
Document
Archived · Original link
Document
Archived · Original link
Document
Archived · Original link
Document
Archived · Original link
Document
Archived · Original link
Document
Archived · Original link
Document
Archived · Original link
Document
Archived · Original link
Document
Archived · Original link
Document
Archived · Original link
Document
Archived · Original link

Have your say

Your comment matters. Councils must consider every representation that raises material planning considerations.

Write a comment