← Bournemouth, Christchurch and Poole Council

Status

StatusApplication Under Consideration House extension
Received
Last month
New homes
0

Full proposal

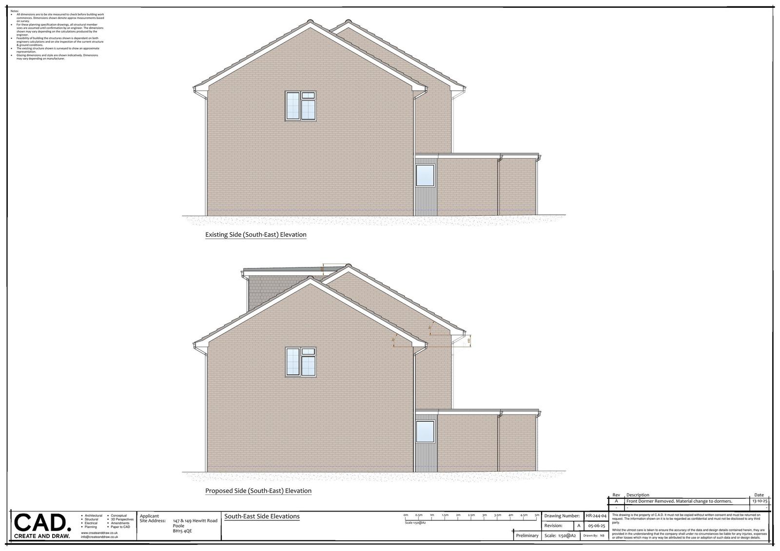
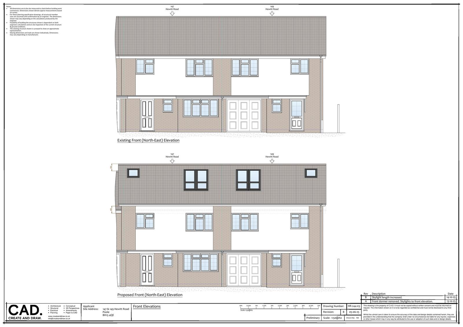
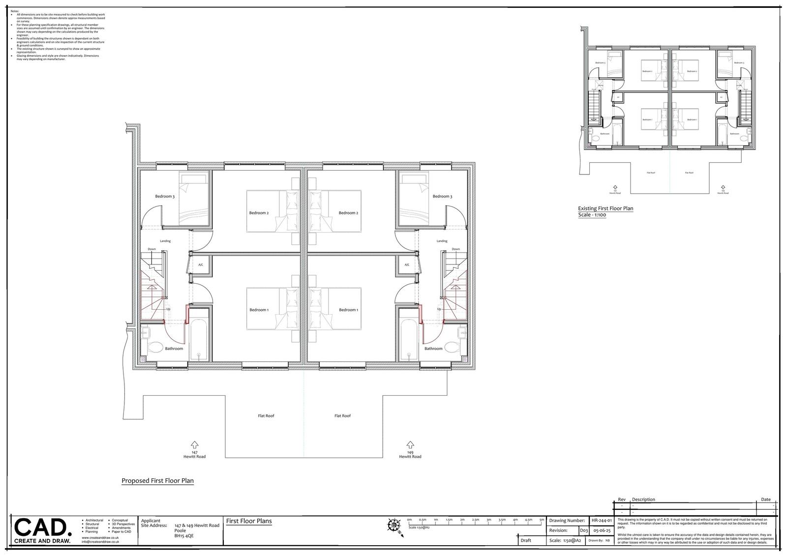
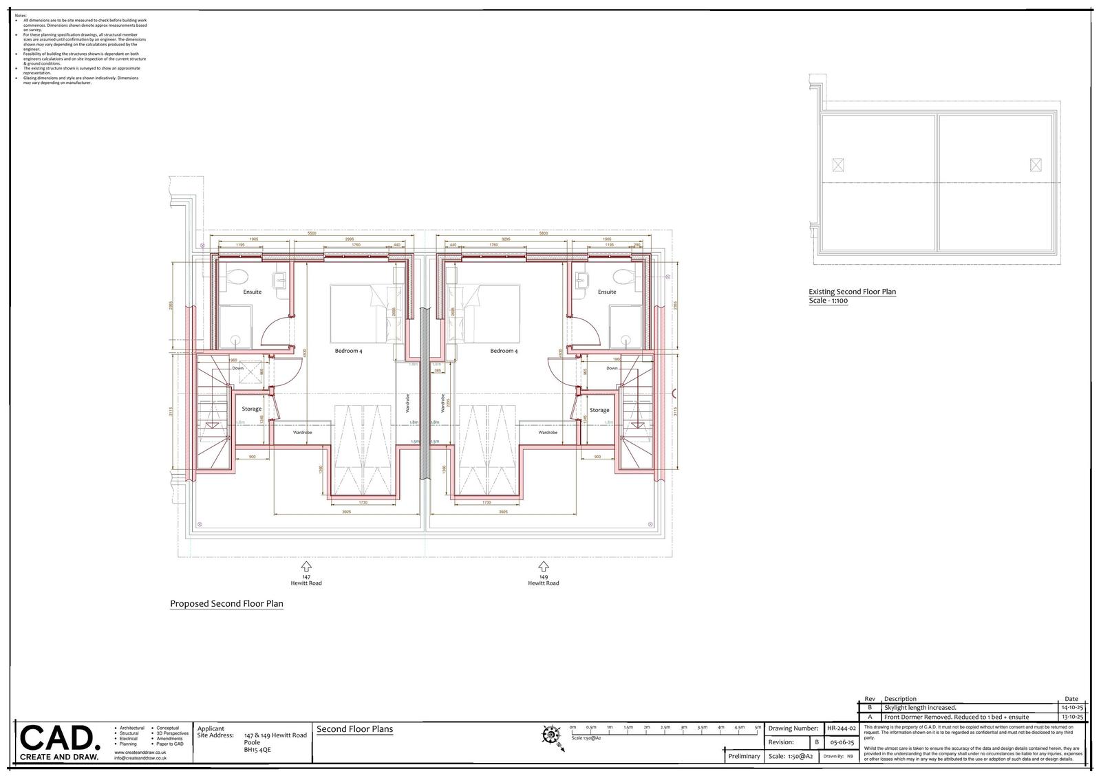
Proposal/DescriptionLoft conversion of a pair of semi-detached/terraced dwellings involving removing the roof, raising the wall plate height, building a new roof with a taller ridge height, and including dormers to the rear elevations.

Documents

-
Document
Archived · Original link
-
Document
Archived · Original link
-
Document
Archived · Original link
-
Document
Archived · Original link
Document
Archived · Original link
Document
Archived · Original link
Document
Archived · Original link
Document
Archived · Original link
Document
Archived · Original link
Document
Archived · Original link
Document
Archived · Original link
Document
Archived · Original link
Document
Archived · Original link

Have your say

Your comment matters. Councils must consider every representation that raises material planning considerations.

Write a comment