← Bournemouth, Christchurch and Poole Council

Status

StatusApplication Under Consideration House extension
Received
Last month
New homes
0

Full proposal

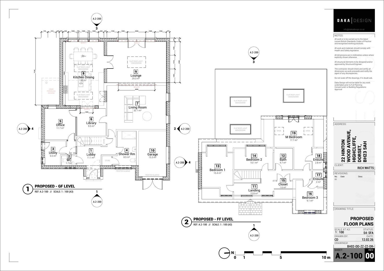
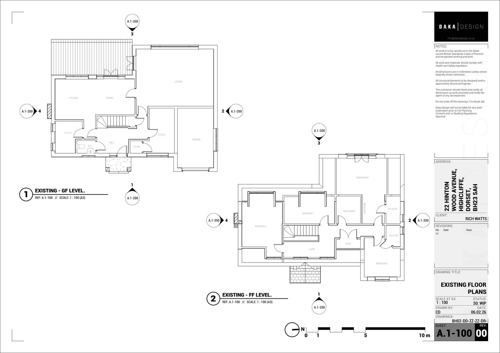
Proposal/DescriptionSingle storey rear extension which would extend beyond the rear wall of the original detached dwelling house by 7.3 metres, for which the maximum height would be 2.7 metres and for which the height at the eaves would be 2.7 metres.

Documents

-
Document
Archived · Original link
-
Document
Archived · Original link
Document
Archived · Original link
Document
Archived · Original link
Document
Archived · Original link
Document
Archived · Original link
Document
Archived · Original link
Document
Archived · Original link
Document
Archived · Original link
Document
Archived · Original link
Document
Archived · Original link
Document
Archived · Original link
Document
Archived · Original link

Have your say

Your comment matters. Councils must consider every representation that raises material planning considerations.

Write a comment