← Bournemouth, Christchurch and Poole Council
P/26/00630/HOU
Bournemouth, Christchurch and Poole Council
Status
StatusApplication Under Consideration
House extension
Received
Last month
New homes
0
Full proposal
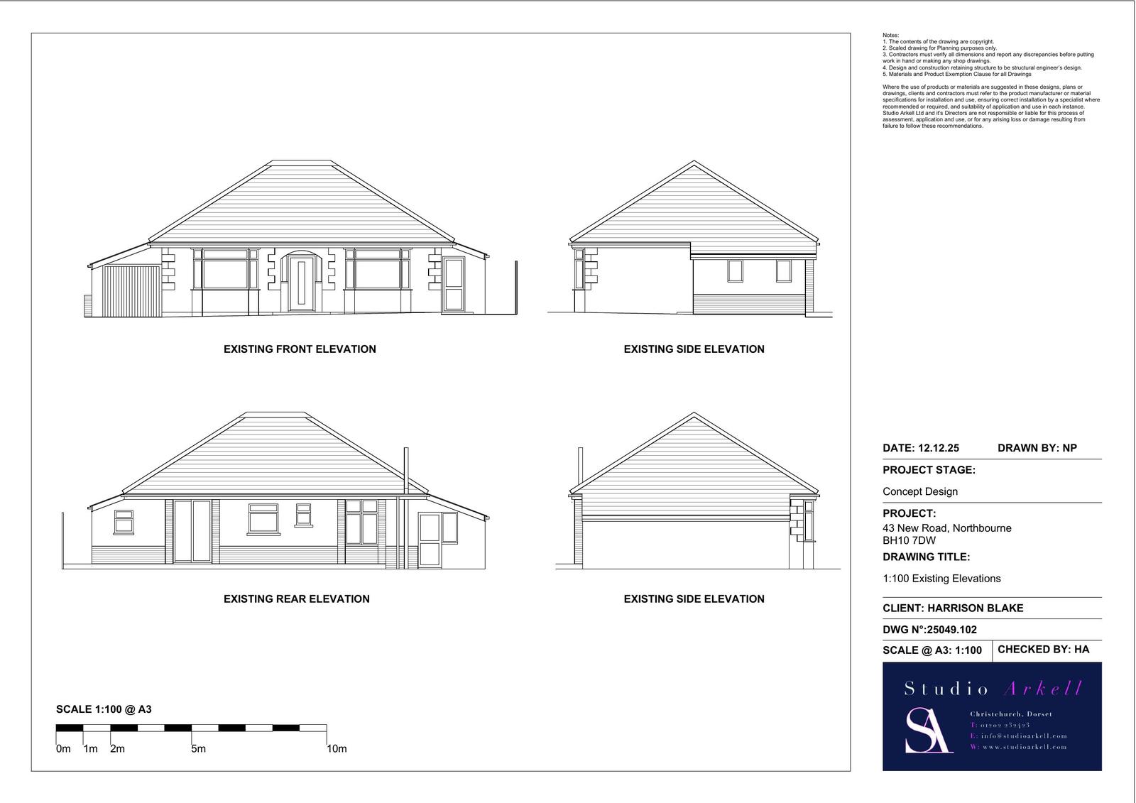
Proposal/DescriptionSingle storey side extension to form utility room and single storey front extension to form garage. New roof structure to bungalow to form accommodation at first floor with new dormers and rooflights. Updated fenestration and external materials.
Documents
Have your say
Your comment matters. Councils must consider every representation that raises material planning considerations.