← Bournemouth, Christchurch and Poole Council

Status

StatusApplication Under Consideration House extension
Received
Last month
New homes
0

Full proposal

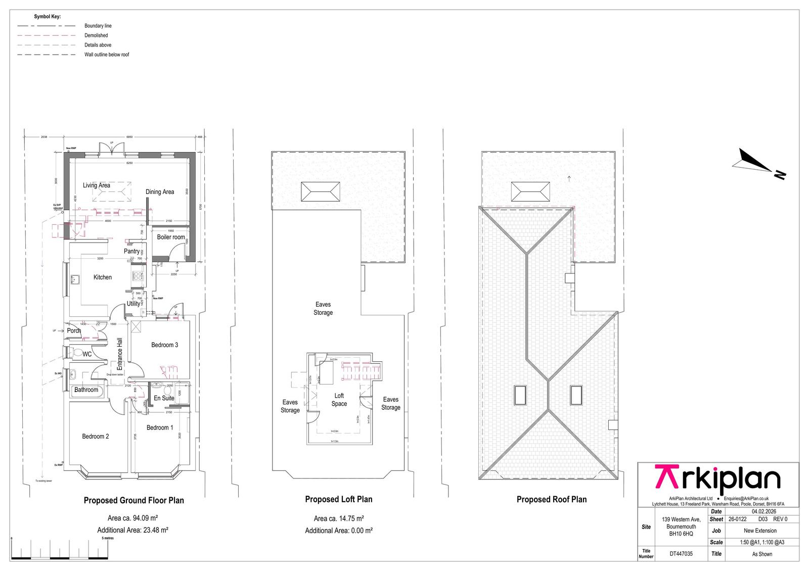
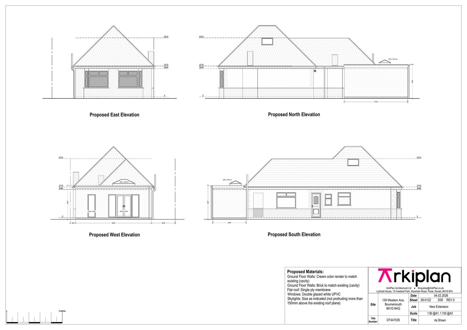
Proposal/DescriptionSingle storey rear extension wrapping around the side (partly) to replace existing kitchen, proposed flat roof and a roof lantern. Proposed internal alterations.

Documents

-
Document
Archived · Original link
Document
Archived · Original link
Document
Archived · Original link
Document
Archived · Original link
Document
Archived · Original link
Document
Archived · Original link

Have your say

Your comment matters. Councils must consider every representation that raises material planning considerations.

Write a comment