← Bournemouth, Christchurch and Poole Council
P/26/00649/FUL
Bournemouth, Christchurch and Poole Council
Status
StatusApplication Under Consideration
Change of use
Received
Last month
New homes
0
Full proposal
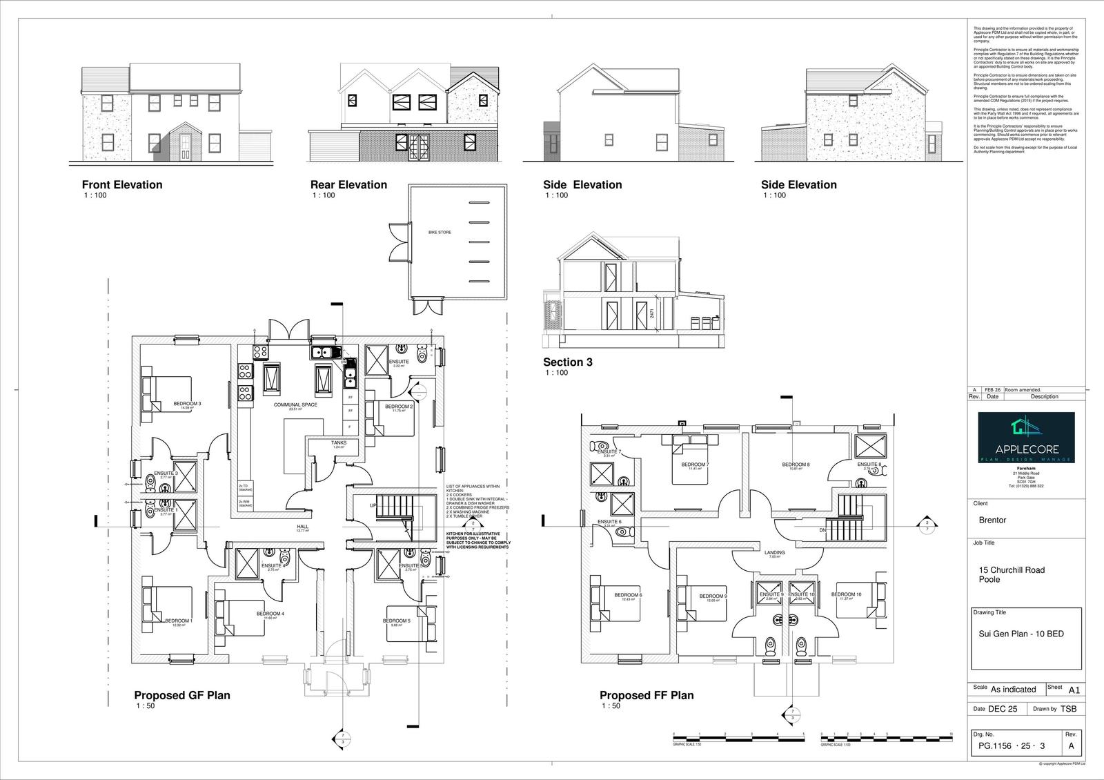
Proposal/DescriptionChange of use from dwellinghouse (Class C3), to ten bedroom/ten person HMO (Sui generis) incorporating a two storey side extension, single storey rear extension and changes to fenestration
Documents
Have your say
Your comment matters. Councils must consider every representation that raises material planning considerations.