← Bournemouth, Christchurch and Poole Council

Status

StatusApplication Under Consideration House extension
Received
Last month
New homes
0

Full proposal

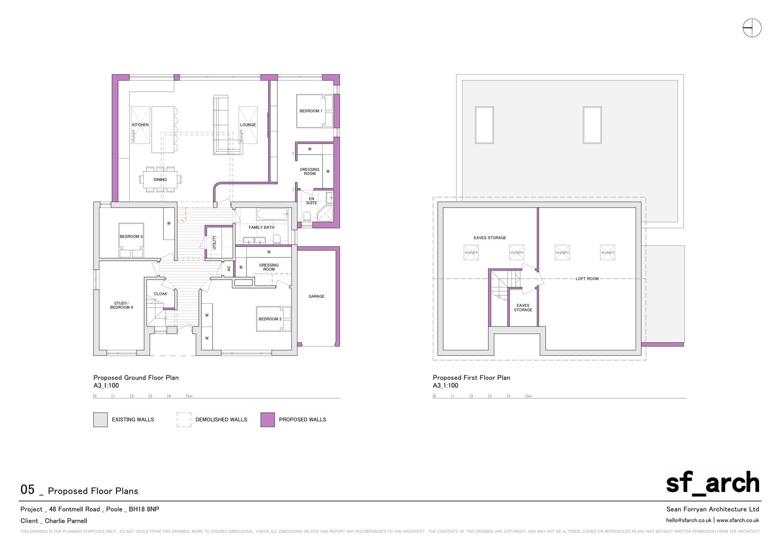
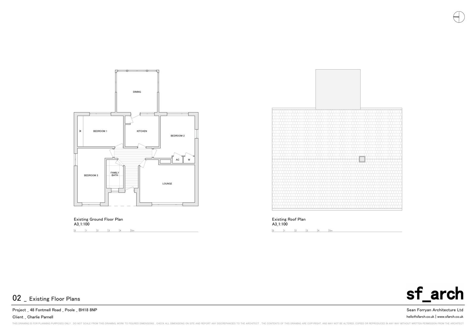
Proposal/DescriptionProposed single storey side and rear extension, proposed garage and loft conversion

Documents

-
Document
Archived · Original link
Document
Archived · Original link
Document
Archived · Original link
Document
Archived · Original link
Document
Archived · Original link
Document
Archived · Original link
Document
Archived · Original link
Document
Archived · Original link

Have your say

Your comment matters. Councils must consider every representation that raises material planning considerations.

Write a comment