← Bournemouth, Christchurch and Poole Council

Status

StatusApplication Under Consideration Change of use
Received
Last month
New homes
0

Full proposal

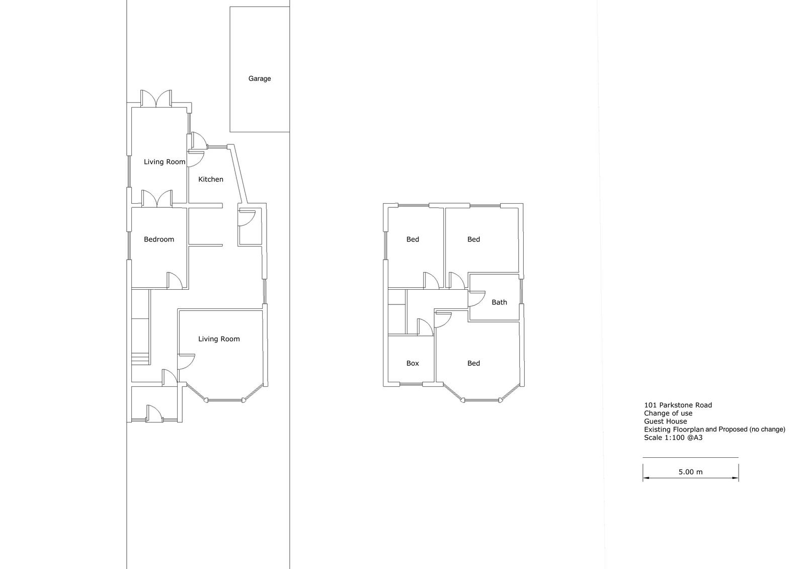
Proposal/DescriptionRetrospective Change of Use from Guest House (Use Class C1) to Dwellinghouse (Use Class C3)

Documents

-
Document
Archived · Original link
-
Document
Archived · Original link
-
Document
Archived · Original link
Document
Archived · Original link

Have your say

Your comment matters. Councils must consider every representation that raises material planning considerations.

Write a comment