← Bournemouth, Christchurch and Poole Council

Status

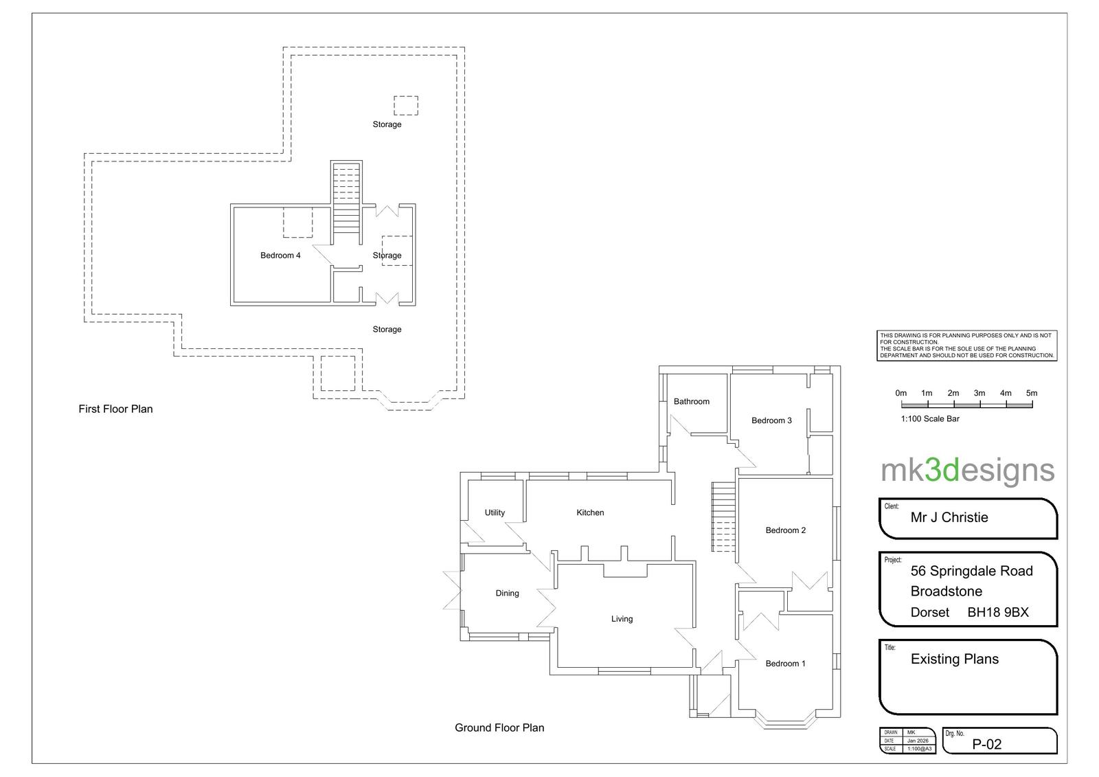
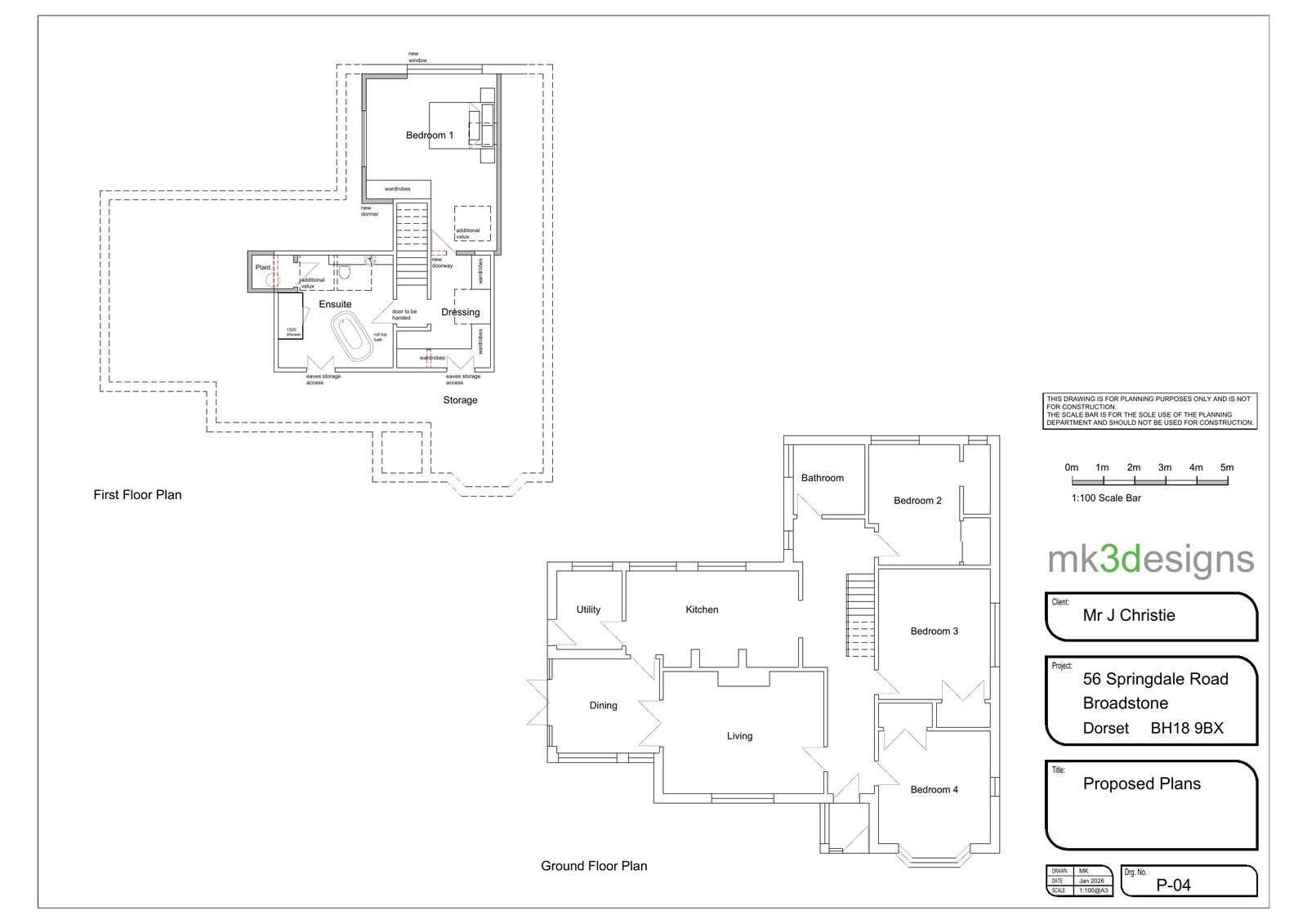
StatusApplication Under Consideration House extension
Received
Last month
New homes
0

Full proposal

Proposal/DescriptionProposed rear west facing dormer and installation of north facing window within an extended loft conversion.

Documents

-
Document
Archived · Original link
-
Document
Archived · Original link
-
Document
Archived · Original link
Document
Archived · Original link
Document
Archived · Original link
Document
Archived · Original link
Document
Archived · Original link
Document
Archived · Original link
Document
Archived · Original link

Have your say

Your comment matters. Councils must consider every representation that raises material planning considerations.

Write a comment