← Bournemouth, Christchurch and Poole Council

Status

StatusApplication Under Consideration Change of use
Received
Last month
New homes
0

Full proposal

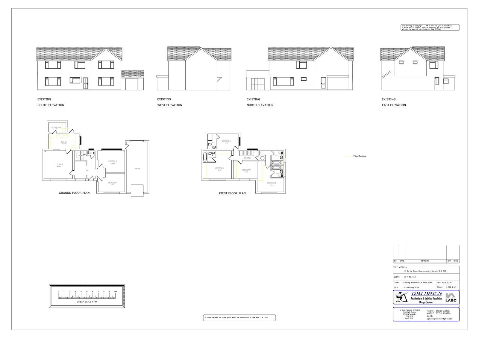
Proposal/DescriptionChange of Use of dwellinghouse (Use Class C3) to a Six-Bedroom House in Multiple Occupation (HMO) (Use Class C4) (Retrospective)

Documents

-
Document
Archived · Original link
-
Document
Archived · Original link
-
Document
Archived · Original link
-
Document
Archived · Original link
Document
Archived · Original link
Document
Archived · Original link

Have your say

Your comment matters. Councils must consider every representation that raises material planning considerations.

Write a comment