← Bournemouth, Christchurch and Poole Council

Status

StatusApplication Under Consideration Change of use
Received
Last month
New homes
0

Full proposal

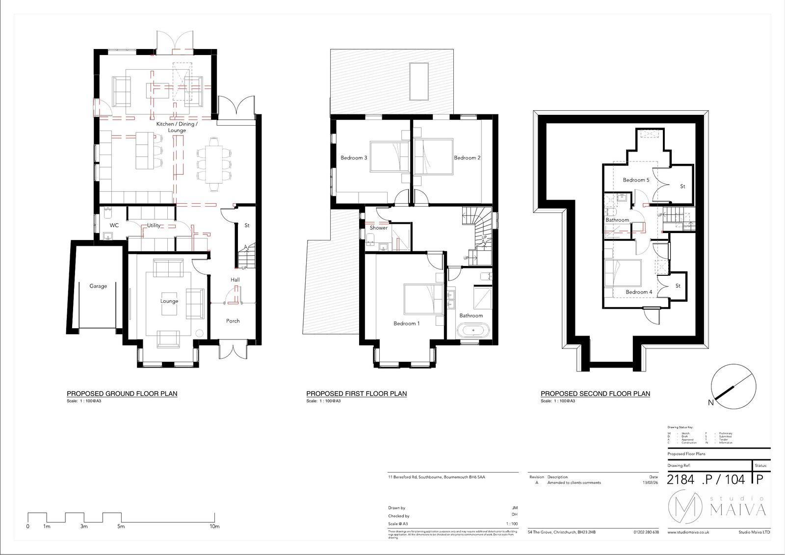
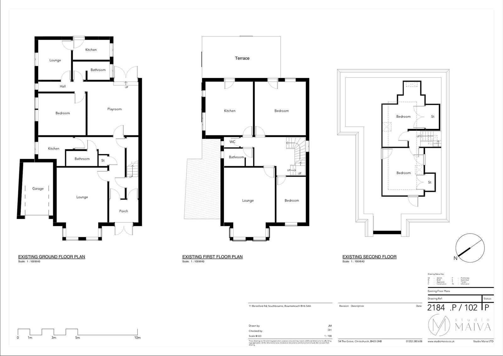
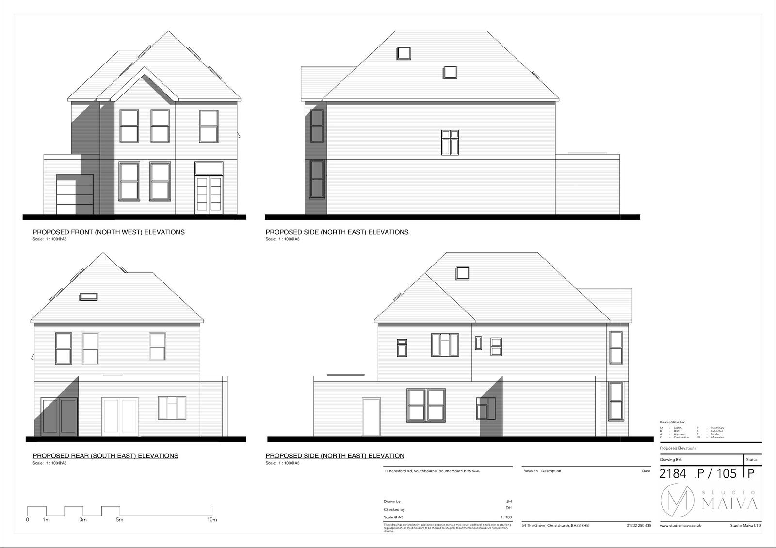
Proposal/DescriptionChange of use/conversion of existing 2 flats back into a single C3 residential dwelling house, with minor changes to windows & doors

Documents

-
Document
Archived · Original link
Document
Archived · Original link
Document
Archived · Original link
Document
Archived · Original link
Document
Archived · Original link
Document
Archived · Original link
Document
Archived · Original link

Have your say

Your comment matters. Councils must consider every representation that raises material planning considerations.

Write a comment