← Bournemouth, Christchurch and Poole Council
P/26/00844/HOU
Bournemouth, Christchurch and Poole Council
Status
StatusApplication Under Consideration
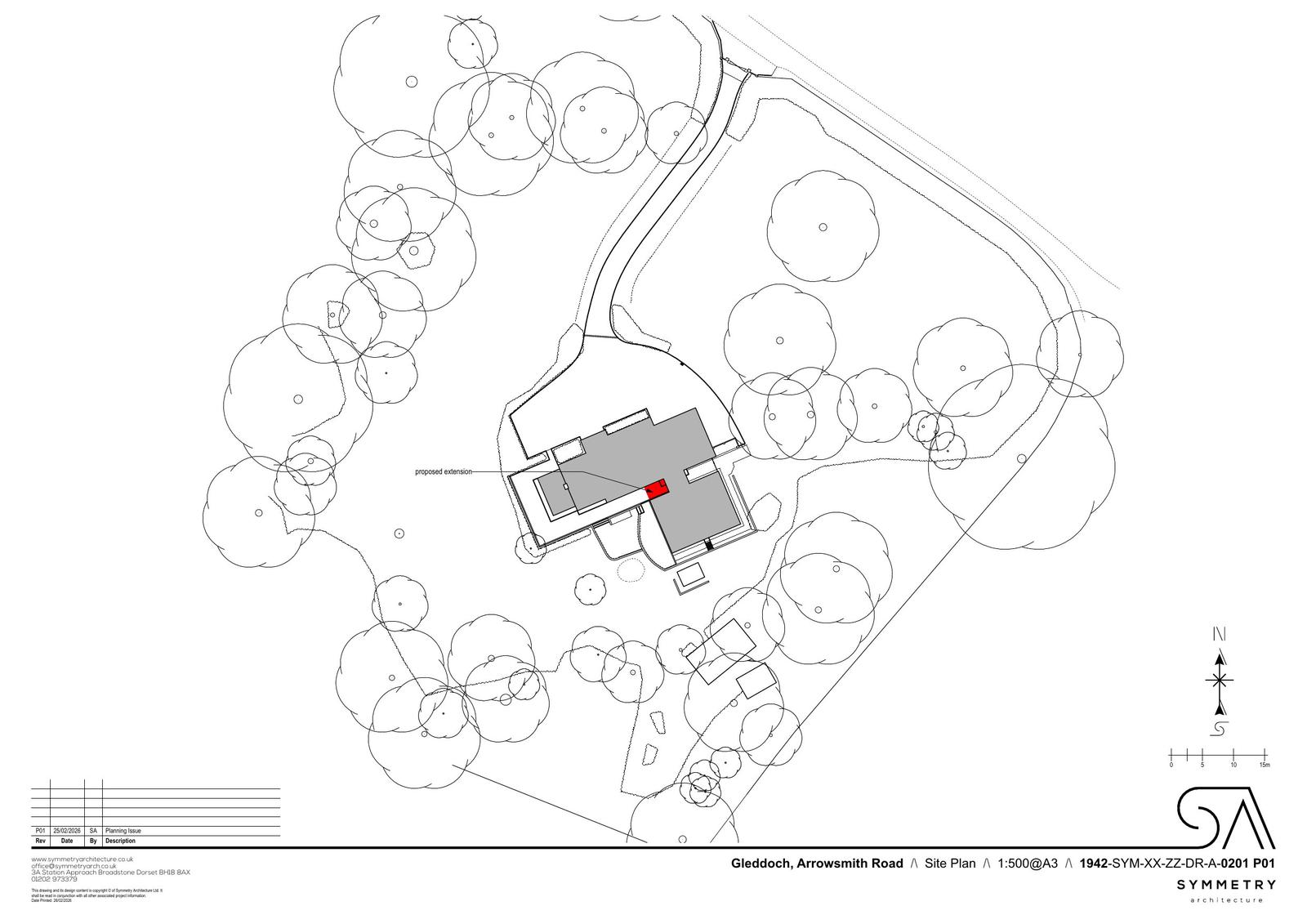
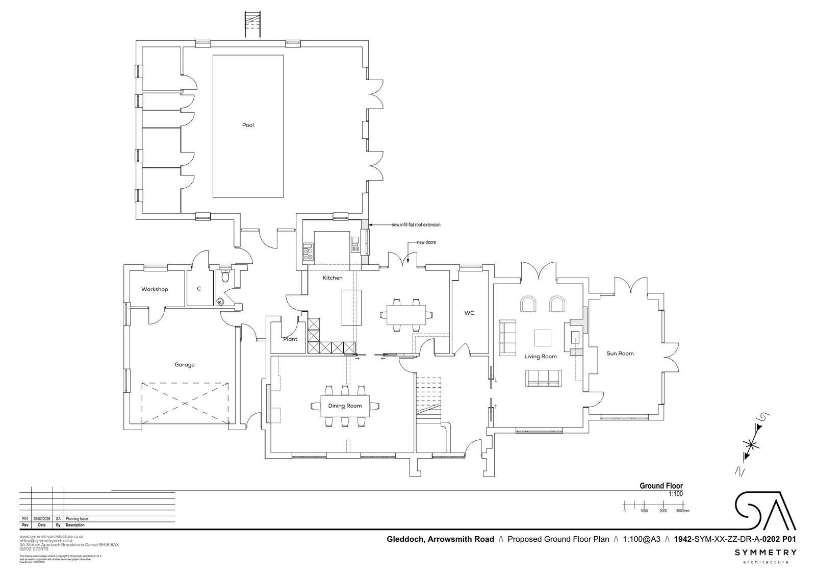
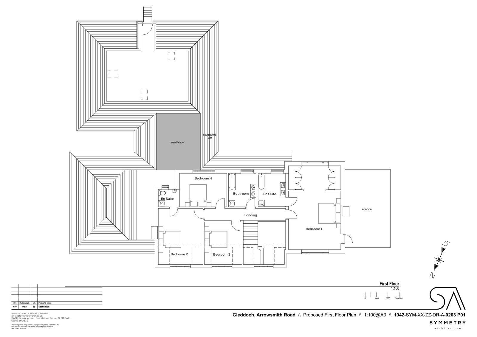
House extension
Received
Last month
New homes
0
Full proposal
Proposal/DescriptionSingle storey flat roof infill extension, new external doors and internal alterations.
Documents
Have your say
Your comment matters. Councils must consider every representation that raises material planning considerations.