← Bournemouth, Christchurch and Poole Council

Status

StatusApplication Under Consideration Change of use
Received
Last month
New homes
4

Full proposal

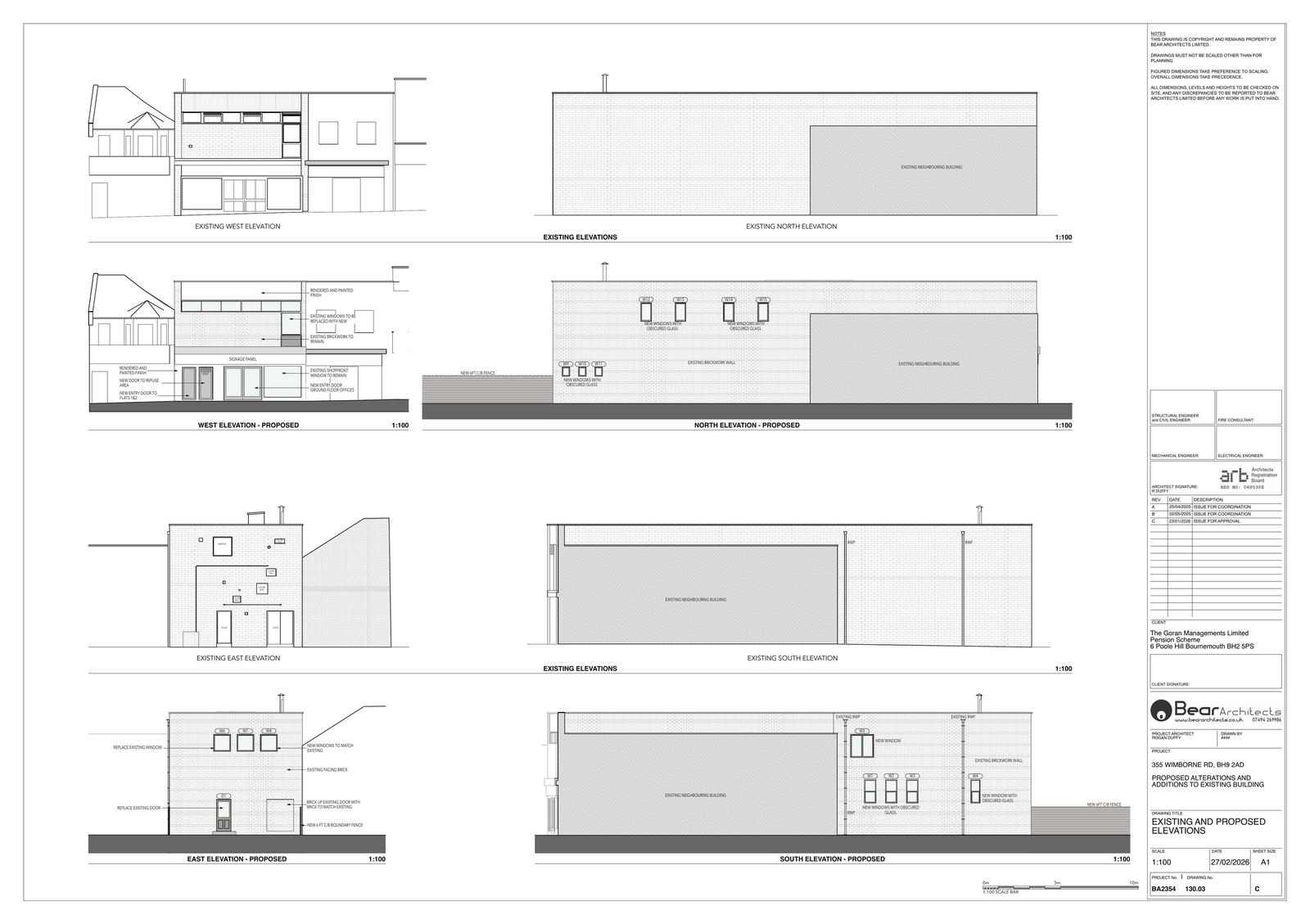
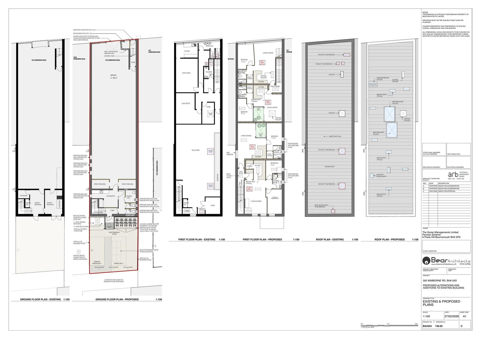
Proposal/DescriptionConversion of first floor accommodation from commercial use (Class E) to provide 4 flats with associated bin and cycle storage. Alterations to the retained ground floor commercial unit (Class E)

Documents

-
Document
Archived · Original link
Document
Archived · Original link
Document
Archived · Original link
Document
Archived · Original link

Have your say

Your comment matters. Councils must consider every representation that raises material planning considerations.

Write a comment