← Breckland District Council

Status

Pending New housing
Received
Not recorded
New homes
4

Summary

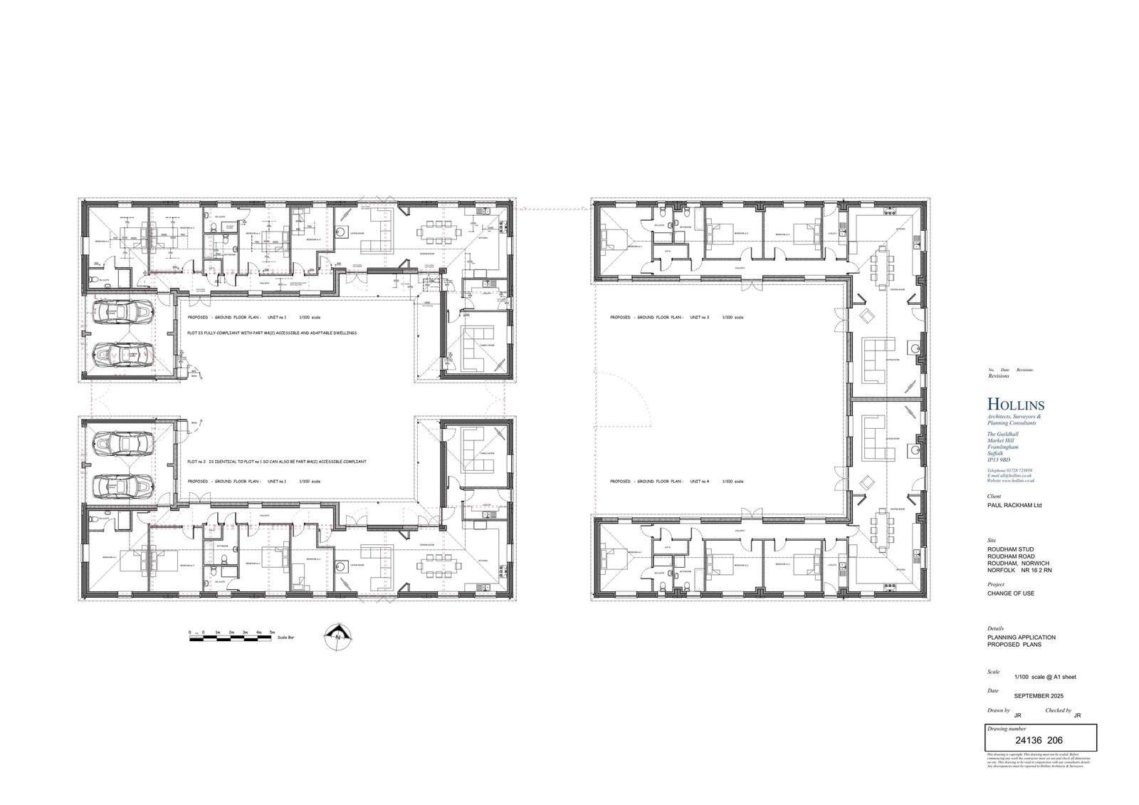
Convert Roudham Stud to four residential dwellings; remove manager occupancy restriction.

Full proposal

Conversion of premises known as Roudham Stud to provide four residential dwellings and removal of the existing managers dwelling occupancy restriction

Documents

24-136 Groundsure report - 01/10/2025
Refused Plans
Not yet archived · Original link
24136 201 - Existing site layout plan - September 2025
Other Plans
Not yet archived · Original link
24136 202 - Survey stable plans - September 2025
Other Plans
Not yet archived · Original link
24136 203 - Survey stable elevations sheet 1 of 2 - September 2025
Other Plans
Not yet archived · Original link
24136 204 - Survey stable elevations sheet 2 of 2 - September 2025
Other Plans
Not yet archived · Original link
30415 - Flood risk assessment & surface water drainage strategy - August 2025
Refused Plans
Not yet archived · Original link
Application Form Redacted
Application Forms/Certificates (public/redacted)
Not yet archived · Original link
Biodiversity Net Gain Statutory Metric Tool - dated 29th August 2025
Refused Plans
Not yet archived · Original link
Biodiversity Net Gains Assessment - 29 August 2025
Refused Plans
Not yet archived · Original link
Decision Notice
Decision Notice
Not yet archived · Original link
Design, Access and Planning statement - September 2025
Refused Plans
Not yet archived · Original link
Drg No. 24136 207 - Proposed elevations sheet 1 of 2 - September 2025
Refused Plans
Not yet archived · Original link
Drg No. 24136 208 - Proposed elevations sheet 2 of 2 dated September 2025
Refused Plans
Not yet archived · Original link
Drg No. 24136 209- Proposed garage plots 3 and 4 plans and elevations - dated September 2025
Refused Plans
Not yet archived · Original link
East Harling Internal Drainage Board comments
Norfolk Rivers Internal Drainage Board
Not yet archived · Original link
Ecology comments
Ecology Comments
Not yet archived · Original link
FRA - Addendum A - dated 17 November 2025
Refused Plans
Not yet archived · Original link
Heritage Impact Assessment - dated May 2025
Refused Plans
Not yet archived · Original link
Highway comments
Highway Comments
Not yet archived · Original link
Historic Environment Services comments
Historic Environment Service Comments
Not yet archived · Original link
LPA AA - Norfolk RAMS
Supporting/Supplementary Information/Documents
Not yet archived · Original link
Nocturnal Bat Survey Report - 26 August 2025
Refused Plans
Not yet archived · Original link
Officer Report
Delegated/Committee Report
Not yet archived · Original link
Preliminary Ecological Appraisal - 26 August 2025
Refused Plans
Not yet archived · Original link
Structural Survey Report - Ref: SZ63 - dated 11 November 2025
Refused Plans
Not yet archived · Original link
Supporting Planning Statement - 26/09/2025
Refused Plans
Not yet archived · Original link
Vulnerable Development Questionnaire - redacted
Refused Plans
Not yet archived · Original link

Have your say

Your comment matters. Councils must consider every representation that raises material planning considerations.

Write a comment