← Breckland District Council

Status

Pending House extension
Received
Not recorded
New homes
0

Full proposal

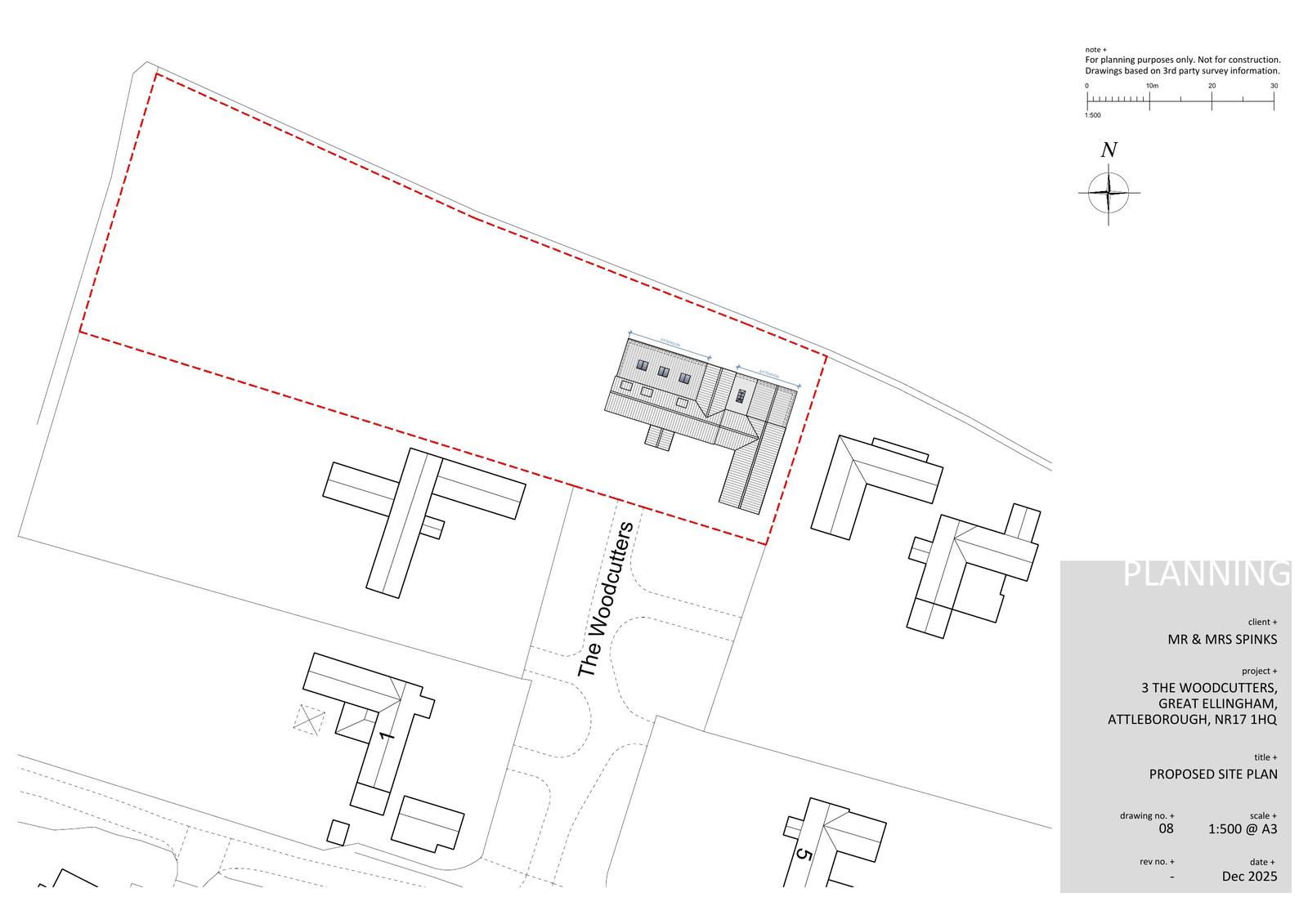
Construction of 1no lean-to pitched rear extension and 1no part flat roof / part dual pitched roof rear extension

Documents

01A - Location Plan - Dec 2025
Approved Plans
Not yet archived · Original link
03 - Existing Ground Floor Plans - Dec 2025
Other Plans
Not yet archived · Original link
04 - Existing First Floor Plan - Dec 2025
Other Plans
Not yet archived · Original link
05 - Existing Second Floor Plan
Other Plans
Not yet archived · Original link
06 - Existing South and East Elevations - Dec 2025
Other Plans
Not yet archived · Original link
07 - Existing North and West Elevations
Other Plans
Not yet archived · Original link
Approved Plans
Archived · Original link
09B - Proposed Ground Floor Plan - Dec 2025
Approved Plans
Not yet archived · Original link
10 - Proposed First Floor Plan - Dec 2025
Approved Plans
Not yet archived · Original link
11A - Proposed Second Floor Plans - Dec 2025
Approved Plans
Not yet archived · Original link
12A - Proposed South and East Elevations - Dec 2025
Approved Plans
Not yet archived · Original link
13B - Proposed North and West Elevations
Approved Plans
Not yet archived · Original link
14A - Proposed and Existing Sections - Dec 2025
Approved Plans
Not yet archived · Original link
Application Form Redacted
Application Forms/Certificates (public/redacted)
Not yet archived · Original link
Decision notice
Decision Notice
Not yet archived · Original link
Officer Report
Delegated/Committee Report
Not yet archived · Original link

Have your say

Your comment matters. Councils must consider every representation that raises material planning considerations.

Write a comment