← Breckland District Council

Status

Pending New housing
Received
Not recorded
New homes
1

Full proposal

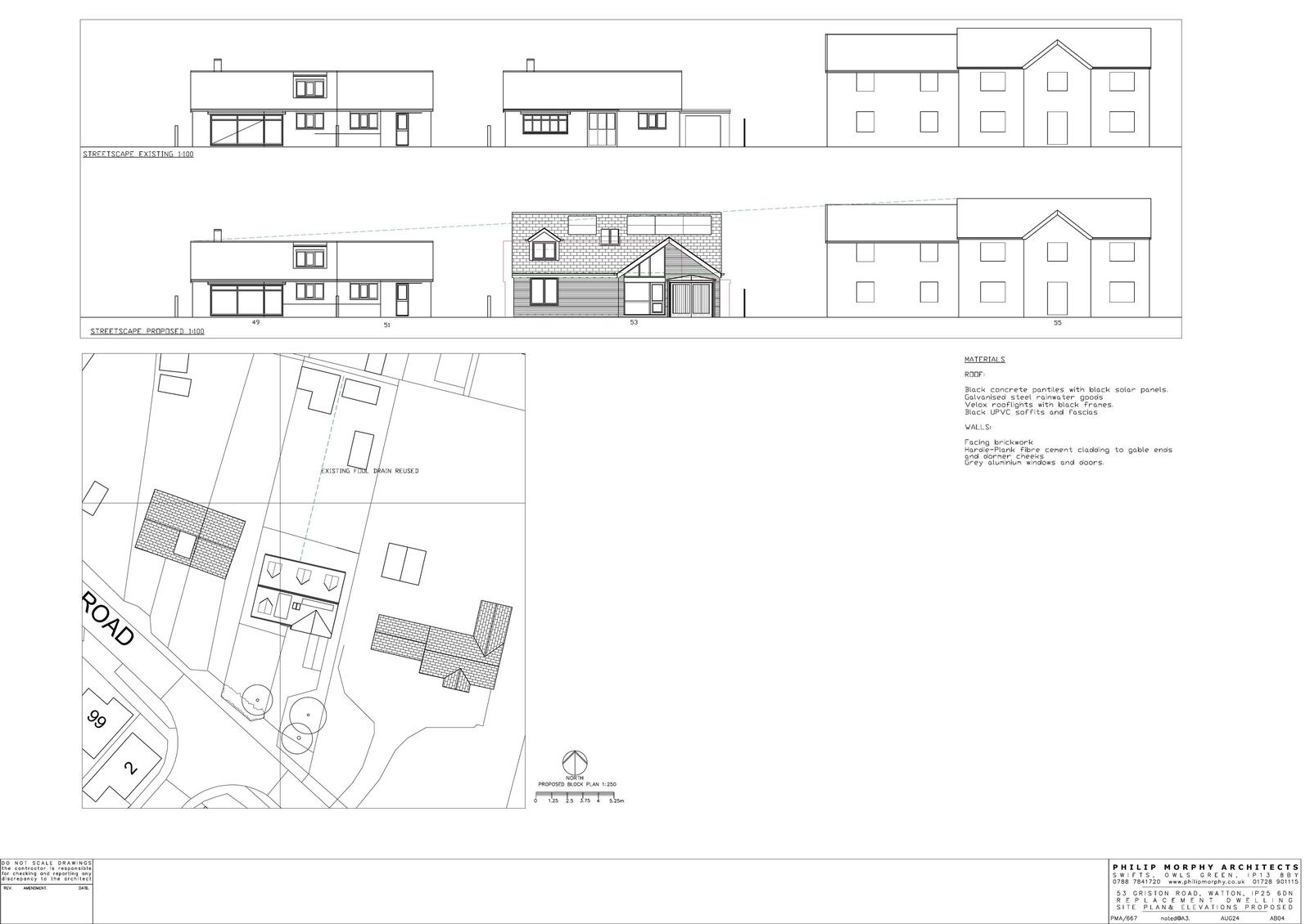
Proposed demolition of the existing dwelling and construction of a replacement dwelling in the form of a dormer-style bungalow

Documents

Application Form Redacted
Application Forms/Certificates (public/redacted)
Not yet archived · Original link
Buildings as Existing Jan 2026
Other Plans
Not yet archived · Original link
Design and access statement January 2026
Supporting/Supplementary Information/Documents
Not yet archived · Original link
Ecology Comments 22.01.26
Ecology Comments
Not yet archived · Original link
Elevation Plans Proposed Jan 2026
Elevation Plans
Not yet archived · Original link
Floor Plans as proposed Jan 2026
Floor Plans
Not yet archived · Original link
Highway comments
Highway Comments
Not yet archived · Original link
Location/Site/Block Plans
Archived · Original link
Vulnerable Development Questionnaire
Supporting/Supplementary Information/Documents
Not yet archived · Original link

Have your say

Your comment matters. Councils must consider every representation that raises material planning considerations.

Write a comment