← Breckland District Council

Status

Pending Change of use
Received
Not recorded
New homes
2

Full proposal

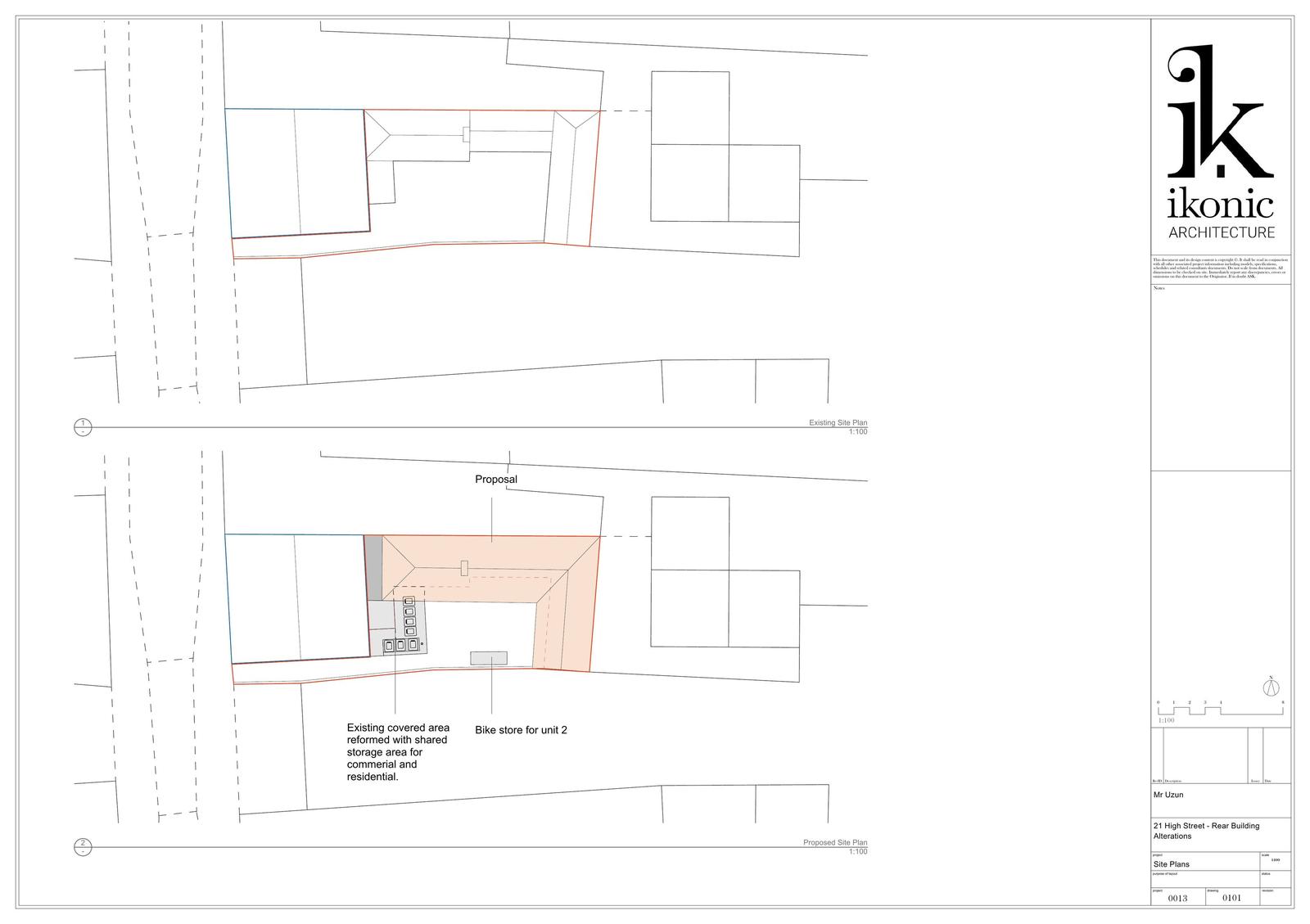
Conversion of currently redundant building to 2no. apartments with external alterations and replacement of existing wall on south elevation

Documents

Application Forms/Certificates (public/redacted)
Archived · Original link
Supporting/Supplementary Information/Documents
Archived · Original link
Design & Access Statement
Archived · Original link
Location/Site/Block Plans
Archived · Original link
Supporting/Supplementary Information/Documents
Archived · Original link
Supporting/Supplementary Information/Documents
Archived · Original link
Supporting/Supplementary Information/Documents
Archived · Original link
Supporting/Supplementary Information/Documents
Archived · Original link
Supporting/Supplementary Information/Documents
Archived · Original link

Have your say

Your comment matters. Councils must consider every representation that raises material planning considerations.

Write a comment