← Breckland District Council

Status

Pending New housing
Received
Not recorded
New homes
1

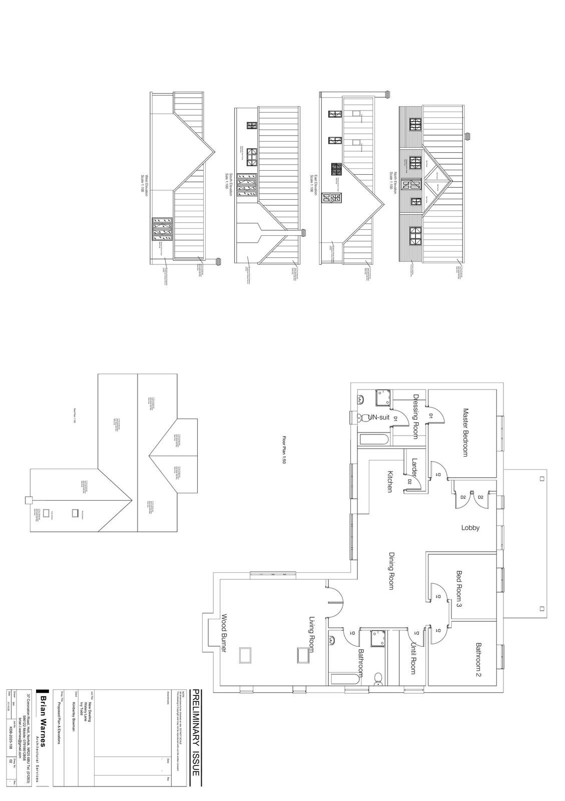
Full proposal

Erection of a one-storey detached dwelling with associated parking and landscaping and new vehicle access will be created from Watery Lane

Documents

Application Forms/Certificates (public/redacted)
Archived · Original link
Design & Access Statement
Archived · Original link
Supporting/Supplementary Information/Documents
Archived · Original link
Contaminated Land Documents
Archived · Original link

Have your say

Your comment matters. Councils must consider every representation that raises material planning considerations.

Write a comment