← Bannau Brycheiniog / Brecon Beacons National Park Authority

Status

Awaiting decision Change of use
Received
Not recorded
New homes
1

Full proposal

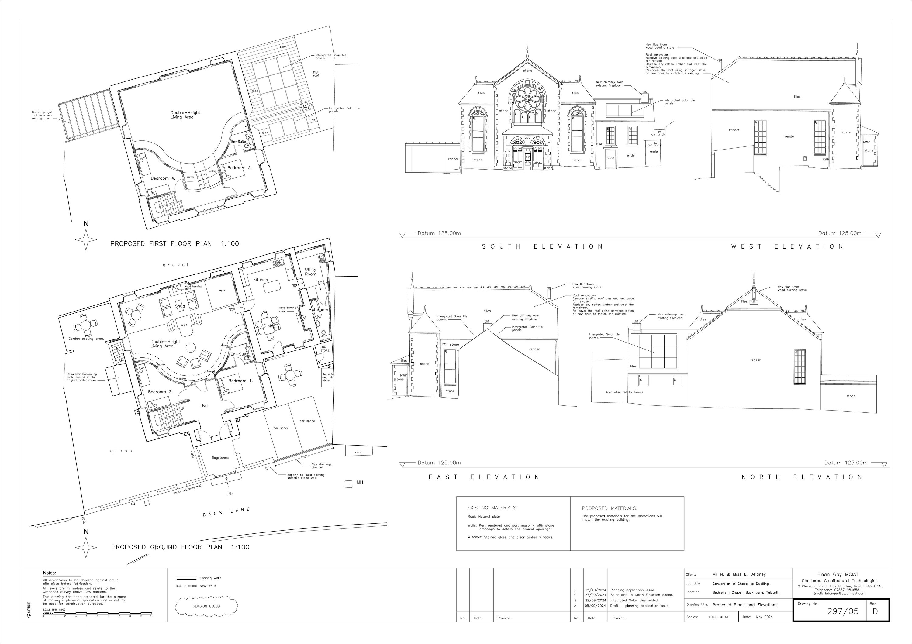
Change of use and conversion of former chapel to provide a four bedroom dwelling together with off street parking for two cars. Demolition of small tool shed at rear of site.

Documents

Admin email
Correspondence
Not yet archived · Original link
Admin email
Correspondence
Not yet archived · Original link
Admin email
Correspondence
Not yet archived · Original link
Agent email
Correspondence
Not yet archived · Original link
Agent email
Correspondence
Not yet archived · Original link
Agent email
Correspondence
Not yet archived · Original link
Agent email
Correspondence
Not yet archived · Original link
Agent email
Correspondence
Not yet archived · Original link
Applicant agent acknowledgement feb23
Correspondence
Not yet archived · Original link
Applicationformredacted
Application Form
Not yet archived · Original link
Arch wales email
Correspondence
Not yet archived · Original link
Bat survey
SupportingDocs
Not yet archived · Original link
Consultee initial
Correspondence
Not yet archived · Original link
Consultee initial
Correspondence
Not yet archived · Original link
Consultee initial
Correspondence
Not yet archived · Original link
Consultee initial
Correspondence
Not yet archived · Original link
Consultee initial
Correspondence
Not yet archived · Original link
Consultee initial
Correspondence
Not yet archived · Original link
Dcww
ConsulteeResponse
Not yet archived · Original link
Design & access statement
SupportingDocs
Not yet archived · Original link
Eia screening
EIAScreening
Not yet archived · Original link
Existing & proposed block plans
Plans
Not yet archived · Original link
Existing elevations
Plans
Not yet archived · Original link
Existing plans
Plans
Not yet archived · Original link
Existing sections
Plans
Not yet archived · Original link
Ext arch email
Correspondence
Not yet archived · Original link
External 1
Photos
Not yet archived · Original link
External 2
Photos
Not yet archived · Original link
External 3
Photos
Not yet archived · Original link
External 4
Photos
Not yet archived · Original link
Internal 1
Photos
Not yet archived · Original link
Internal 2
Photos
Not yet archived · Original link
Internal 3
Photos
Not yet archived · Original link
Internal 4
Photos
Not yet archived · Original link
Level 2 building recording
SupportingDocs
Not yet archived · Original link
Nparch
ConsulteeResponse
Not yet archived · Original link
Nparch
ConsulteeResponse
Not yet archived · Original link
Nparch email
Correspondence
Not yet archived · Original link
Nparch email
Correspondence
Not yet archived · Original link
Npbcon
ConsulteeResponse
Not yet archived · Original link
Npbcon
ConsulteeResponse
Not yet archived · Original link
Npeco
ConsulteeResponse
Not yet archived · Original link
Nphsp
ConsulteeResponse
Not yet archived · Original link
Nrw
ConsulteeResponse
Not yet archived · Original link
Officer email
Correspondence
Not yet archived · Original link
Officer email
Correspondence
Not yet archived · Original link
Officer email
Correspondence
Not yet archived · Original link
Officer email
Correspondence
Not yet archived · Original link
Officer email
Correspondence
Not yet archived · Original link
Pcchig
ConsulteeResponse
Not yet archived · Original link
Plan Superseded
Archived · Original link
Plans
Archived · Original link
Tgrtht
ConsulteeResponse
Not yet archived · Original link
Validation email
Correspondence
Not yet archived · Original link
Validation email
Correspondence
Not yet archived · Original link
Wsi level 2 building survey
SupportingDocs
Not yet archived · Original link

Have your say

Your comment matters. Councils must consider every representation that raises material planning considerations.

Write a comment