← Bannau Brycheiniog / Brecon Beacons National Park Authority

Status

Awaiting decision Listed building
Received
Not recorded
New homes
0

Full proposal

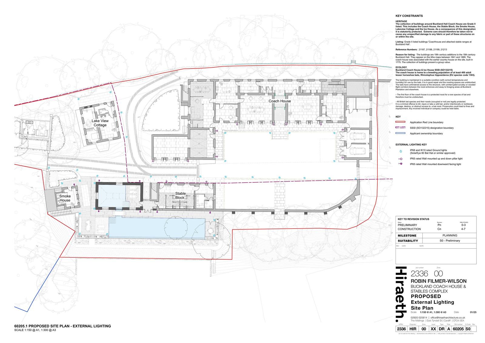
Restoration and adaption of the Coach House, Stables and Smoke House and Lake View Cottage at Buckland Hall. Proposals include an extension to the Stables to accommodate an indoor pool with connection to an outdoor swimming pool, together with associated hard and soft landscaping; new opening in the courtyard wall and reconstruction of the former arched south courtyard entrance.

Documents

Admin email
Correspondence
Not yet archived · Original link
Agent email
Correspondence
Not yet archived · Original link
Agent email
Correspondence
Not yet archived · Original link
Agent email
Correspondence
Not yet archived · Original link
Agent email
Correspondence
Not yet archived · Original link
Agent email
Correspondence
Not yet archived · Original link
Agent email
Correspondence
Not yet archived · Original link
Agent email
Correspondence
Not yet archived · Original link
Agent email
SupportingDocs
Not yet archived · Original link
Agent email
Correspondence
Not yet archived · Original link
Agent email
Correspondence
Not yet archived · Original link
Agent email
Correspondence
Not yet archived · Original link
Agent email
Correspondence
Not yet archived · Original link
Agent email
Correspondence
Not yet archived · Original link
Agent email
Correspondence
Not yet archived · Original link
Agent email
Correspondence
Not yet archived · Original link
Agent letter
Correspondence
Not yet archived · Original link
Applicant agent acknowledgement feb23
Correspondence
Not yet archived · Original link
Applicant email
Correspondence
Not yet archived · Original link
Application form redacted
Application Form
Not yet archived · Original link
Arboricultural impact assessment
SupportingDocs
Not yet archived · Original link
Bat surveys & ecology assessment 2020-2025
SupportingDocs
Not yet archived · Original link
Certificate of commissioning
SupportingDocs
Not yet archived · Original link
Condition report
SupportingDocs
Not yet archived · Original link
Consultee initial
Correspondence
Not yet archived · Original link
Consultee initial
Correspondence
Not yet archived · Original link
Consultee initial
Correspondence
Not yet archived · Original link
Consultee initial
Correspondence
Not yet archived · Original link
Consultee recon 21 days
Correspondence
Not yet archived · Original link
Consultee recon 21 days
Correspondence
Not yet archived · Original link
Consultee recon 21 days
Correspondence
Not yet archived · Original link
Consultee recon 21 days
Correspondence
Not yet archived · Original link
Consultee recon 21 days
Correspondence
Not yet archived · Original link
Consultee recon 21 days
Correspondence
Not yet archived · Original link
Demolition coach house: elevations (1 of 2)
Plans
Not yet archived · Original link
Demolition coach house: elevations (2 of 2)
Plans
Not yet archived · Original link
Demolition coach house: full demolition notes
Plans
Not yet archived · Original link
Demolition coach house: ground floor & roof plan
Plans
Not yet archived · Original link
Demolition cottage: east & north elevation
Plans
Not yet archived · Original link
Demolition cottage: first floor & roof plan
Plans
Not yet archived · Original link
Demolition cottage: ground floor plan
Plans
Not yet archived · Original link
Demolition cottage: sections aa & bb
Plans
Not yet archived · Original link
Demolition cottage: sections aa & bb
Plans
Not yet archived · Original link
Demolition cottage: west & south elevation
Plans
Not yet archived · Original link
Demolition stables: elevations
Plans
Not yet archived · Original link
Demolition stables: full demolition notes
Plans
Not yet archived · Original link
Demolition stables: plans
Plans
Not yet archived · Original link
Design and access statement
SupportingDocs
Not yet archived · Original link
Existing coach house: door - ex d-01
Plans
Not yet archived · Original link
Existing coach house: door - ex d-02
Plans
Not yet archived · Original link
Existing coach house: door - ex d-03
Plans
Not yet archived · Original link
Existing coach house: door - ex d-04
Plans
Not yet archived · Original link
Existing coach house: door - ex d-05
Plans
Not yet archived · Original link
Existing coach house: door - ex d-06
Plans
Not yet archived · Original link
Existing coach house: door - ex d-07
Plans
Not yet archived · Original link
Existing coach house: door - ex d-08
Plans
Not yet archived · Original link
Existing coach house: door - ex d-09
Plans
Not yet archived · Original link
Existing coach house: door - ex d-10
Plans
Not yet archived · Original link
Existing coach house: door - ex d-11
Plans
Not yet archived · Original link
Existing coach house: door - ex d-12
Plans
Not yet archived · Original link
Existing coach house: door - ex d-13
Plans
Not yet archived · Original link
Existing coach house: door - ex d-14
Plans
Not yet archived · Original link
Existing coach house: door - ex d-15
Plans
Not yet archived · Original link
Existing coach house: door - ex d-16
Plans
Not yet archived · Original link
Existing coach house: door - in d-01
Plans
Not yet archived · Original link
Existing coach house: door - in d-02
Plans
Not yet archived · Original link
Existing coach house: door - in d-03
Plans
Not yet archived · Original link
Existing coach house: door - in d-04/05
Plans
Not yet archived · Original link
Existing coach house: door - in d-06
Plans
Not yet archived · Original link
Existing coach house: door - in d-07
Plans
Not yet archived · Original link
Existing coach house: door - in d-08
Plans
Not yet archived · Original link
Existing coach house: door - in d-09
Plans
Not yet archived · Original link
Existing coach house: door - in d-10
Plans
Not yet archived · Original link
Existing coach house: door - in d-11
Plans
Not yet archived · Original link
Existing coach house: east elevation (1 of 2)
Plans
Not yet archived · Original link
Existing coach house: east elevation (2 of 2)
Plans
Not yet archived · Original link
Existing coach house: first floor plan
Plans
Not yet archived · Original link
Existing coach house: g01 panelling
Plans
Not yet archived · Original link
Existing coach house: g02 panelling
Plans
Not yet archived · Original link
Existing coach house: g06 panelling
Plans
Not yet archived · Original link
Existing coach house: g07 panelling
Plans
Not yet archived · Original link
Existing coach house: g13 panelling
Plans
Not yet archived · Original link
Existing coach house: g14 panelling
Plans
Not yet archived · Original link
Existing coach house: ground floor plan
Plans
Not yet archived · Original link
Existing coach house: north elevation
Plans
Not yet archived · Original link
Existing coach house: roof plan
Plans
Not yet archived · Original link
Existing coach house: section aa
Plans
Not yet archived · Original link
Existing coach house: section bb
Plans
Not yet archived · Original link
Existing coach house: section bb
Plans
Not yet archived · Original link
Existing coach house: south elevation
Plans
Not yet archived · Original link
Existing coach house: stair
Plans
Not yet archived · Original link
Existing coach house: stall partition
Plans
Not yet archived · Original link
Existing coach house: west elevation (1 of 2)
Plans
Not yet archived · Original link
Existing coach house: west elevation (2 of 2)
Plans
Not yet archived · Original link
Existing coach house: window - ex w-01
Plans
Not yet archived · Original link
Existing coach house: window - ex w-02
Plans
Not yet archived · Original link
Existing coach house: window - ex w-03
Plans
Not yet archived · Original link
Existing coach house: window - ex w-04
Plans
Not yet archived · Original link
Existing coach house: window - ex w-05
Plans
Not yet archived · Original link
Existing coach house: window - ex w-06
Plans
Not yet archived · Original link
Existing coach house: window - ex w-07
Plans
Not yet archived · Original link
Existing coach house: window - ex w-08
Plans
Not yet archived · Original link
Existing coach house: window - ex w-09
Plans
Not yet archived · Original link
Existing coach house: window - ex w-10
Plans
Not yet archived · Original link
Existing coach house: window - ex w-11
Plans
Not yet archived · Original link
Existing coach house: window - ex w-12
Plans
Not yet archived · Original link
Existing coach house: window - ex w-13
Plans
Not yet archived · Original link
Existing coach house: window - ex w-14
Plans
Not yet archived · Original link
Existing coach house: window - ex w-15
Plans
Not yet archived · Original link
Existing coach house: window - ex w-16
Plans
Not yet archived · Original link
Existing coach house: window - ex w-17
Plans
Not yet archived · Original link
Existing coach house: window - ex w-18
Plans
Not yet archived · Original link
Existing coach house: window - ex w-19
Plans
Not yet archived · Original link
Existing coach house: window - ex w-20
Plans
Not yet archived · Original link
Existing coach house: window - ex w-21
Plans
Not yet archived · Original link
Existing coach house: window - ex w-22
Plans
Not yet archived · Original link
Existing coach house: window - ex w-23
Plans
Not yet archived · Original link
Existing coach house: window - ex w-24
Plans
Not yet archived · Original link
Existing coach house: window - ex w-25
Plans
Not yet archived · Original link
Existing coach house: window - ex w-26
Plans
Not yet archived · Original link
Existing coach house: window - ex w-27
Plans
Not yet archived · Original link
Existing coach house: window - ex w-28
Plans
Not yet archived · Original link
Existing coach house: window - ex w-29
Plans
Not yet archived · Original link
Existing coach house: window - ex w-30
Plans
Not yet archived · Original link
Existing coach house: window - ex w-31
Plans
Not yet archived · Original link
Existing coach house: window - in w-01
Plans
Not yet archived · Original link
Existing coach house: window - in w-02
Plans
Not yet archived · Original link
Existing coach house: window - in w-03
Plans
Not yet archived · Original link
Existing coach house: window - in w-04
Plans
Not yet archived · Original link
Existing coach house: window - in w-05
Plans
Not yet archived · Original link
Existing cottage: door - ex d-01
Plans
Not yet archived · Original link
Existing cottage: door - ex d-02
Plans
Not yet archived · Original link
Existing cottage: east elevation
Plans
Not yet archived · Original link
Existing cottage: first floor plan
Plans
Not yet archived · Original link
Existing cottage: ground floor plan
Plans
Not yet archived · Original link
Existing cottage: north elevation
Plans
Not yet archived · Original link
Existing cottage: roof plan
Plans
Not yet archived · Original link
Existing cottage: section aa
Plans
Not yet archived · Original link
Existing cottage: section bb
Plans
Not yet archived · Original link
Existing cottage: south elevation
Plans
Not yet archived · Original link
Existing cottage: west elevation
Plans
Not yet archived · Original link
Existing cottage: window - ex w-01
Plans
Not yet archived · Original link
Existing cottage: window - ex w-02
Plans
Not yet archived · Original link
Existing cottage: window - ex w-03
Plans
Not yet archived · Original link
Existing cottage: window - ex w-03
Plans
Not yet archived · Original link
Existing cottage: window - ex w-04
Plans
Not yet archived · Original link
Existing cottage: window - ex w-05
Plans
Not yet archived · Original link
Existing cottage: window - ex w-06
Plans
Not yet archived · Original link
Existing cottage: window - ex w-06
Plans
Not yet archived · Original link
Existing cottage: window - ex w-07
Plans
Not yet archived · Original link
Existing cottage: window - ex w-07
Plans
Not yet archived · Original link
Existing cottage: window - ex w-08
Plans
Not yet archived · Original link
Existing cottage: window - ex w-08
Plans
Not yet archived · Original link
Existing cottage: window - ex w-09
Plans
Not yet archived · Original link
Existing cottage: window - ex w-09
Plans
Not yet archived · Original link
Existing cottage: window - ex w-10
Plans
Not yet archived · Original link
Existing cottage: window - ex w-10
Plans
Not yet archived · Original link
Existing cottage: window - ex w-11
Plans
Not yet archived · Original link
Existing cottage: window - ex w-11
Plans
Not yet archived · Original link
Existing smoke house: door exd-01
Plans
Not yet archived · Original link
Existing smoke house: elevations
Plans
Not yet archived · Original link
Existing smoke house: lower and first floor plans
Plans
Not yet archived · Original link
Existing smoke house: typical window
Plans
Not yet archived · Original link
Existing smoke house: upper ground floor plan
Plans
Not yet archived · Original link
Existing stable: door - ex d-01
Plans
Not yet archived · Original link
Existing stable: door - ex d-02
Plans
Not yet archived · Original link
Existing stable: door - ex d-03
Plans
Not yet archived · Original link
Existing stable: door - ex d-04
Plans
Not yet archived · Original link
Existing stable: gate 01
Plans
Not yet archived · Original link
Existing stable: panelling g02
Plans
Not yet archived · Original link
Existing stable: window - ex w-01
Plans
Not yet archived · Original link
Existing stable: window - ex w-02
Plans
Not yet archived · Original link
Existing stable: window - ex w-03
Plans
Not yet archived · Original link
Existing stable: window - ex w-04
Plans
Not yet archived · Original link
Existing stables: east (principal) elevation
Plans
Not yet archived · Original link
Existing stables: first floor plan
Plans
Not yet archived · Original link
Existing stables: ground floor plan
Plans
Not yet archived · Original link
Existing stables: north elevation
Plans
Not yet archived · Original link
Existing stables: roof plan
Plans
Not yet archived · Original link
Existing stables: section aa
Plans
Not yet archived · Original link
Existing stables: south elevation
Plans
Not yet archived · Original link
Existing stables: west elevation
Plans
Not yet archived · Original link
Existing: location plan
Plans
Not yet archived · Original link
Existing: topographical & landscaping plan (1 of 2)
Plans
Not yet archived · Original link
Existing: topographical & landscaping plan (2 of 2)
Plans
Not yet archived · Original link
Existing: wider location plan
Plans
Not yet archived · Original link
External eco email
Correspondence
Not yet archived · Original link
External eco email
Correspondence
Not yet archived · Original link
Green infrastructure statement
SupportingDocs
Not yet archived · Original link
Historic landscape appraisal
SupportingDocs
Not yet archived · Original link
Landscape management plan
SupportingDocs
Not yet archived · Original link
Landscape management plan appendices
SupportingDocs
Not yet archived · Original link
Light spill calculations
SupportingDocs
Not yet archived · Original link
Light spill summary diagrams
SupportingDocs
Not yet archived · Original link
Master document index
SupportingDocs
Not yet archived · Original link
Noise and acoustic advice
SupportingDocs
Not yet archived · Original link
Nparch
ConsulteeResponse
Not yet archived · Original link
Nparch
ConsulteeResponse
Not yet archived · Original link
Npbcon
ConsulteeResponse
Not yet archived · Original link
Npeco email
Correspondence
Not yet archived · Original link
Npeco email
Correspondence
Not yet archived · Original link
Npeco email
Correspondence
Not yet archived · Original link
Npeco email
Correspondence
Not yet archived · Original link
Npeco email
Correspondence
Not yet archived · Original link
Npeco email
Correspondence
Not yet archived · Original link
Npeco email
Correspondence
Not yet archived · Original link
Nrw email
Correspondence
Not yet archived · Original link
Nrw email
ConsulteeResponse
Not yet archived · Original link
Nrw email
ConsulteeResponse
Not yet archived · Original link
Nrw email
ConsulteeResponse
Not yet archived · Original link
Nrw email
Correspondence
Not yet archived · Original link
Nrw email
Correspondence
Not yet archived · Original link
Nrw email
Correspondence
Not yet archived · Original link
Nrw email
Correspondence
Not yet archived · Original link
Officer email
Correspondence
Not yet archived · Original link
Officer email
Correspondence
Not yet archived · Original link
Officer email
SupportingDocs
Not yet archived · Original link
Officer email
Correspondence
Not yet archived · Original link
Officer email
Correspondence
Not yet archived · Original link
Officer email
Correspondence
Not yet archived · Original link
Officer email
Correspondence
Not yet archived · Original link
Officer email
Correspondence
Not yet archived · Original link
Officer email
Correspondence
Not yet archived · Original link
Officer email
Correspondence
Not yet archived · Original link
Pccep email
ConsulteeResponse
Not yet archived · Original link
Pccep email
ConsulteeResponse
Not yet archived · Original link
Percolation test record
SupportingDocs
Not yet archived · Original link
Proposed coach house: east elevation (1 of 2)
Plans
Not yet archived · Original link
Proposed coach house: east elevation (2 of 2)
Plans
Not yet archived · Original link
Proposed coach house: first floor plan
Plans
Not yet archived · Original link
Proposed coach house: ground floor lighting plan
Plans
Not yet archived · Original link
Proposed coach house: ground floor lighting plan
Plans
Not yet archived · Original link
Proposed coach house: ground floor plan
Plans
Not yet archived · Original link
Proposed coach house: north elevation
Plans
Not yet archived · Original link
Proposed coach house: roof plan
Plans
Not yet archived · Original link
Proposed coach house: section aa
Plans
Not yet archived · Original link
Proposed coach house: section bb
Plans
Not yet archived · Original link
Proposed coach house: south elevation
Plans
Not yet archived · Original link
Proposed coach house: west elevation (1 of 2)
Plans
Not yet archived · Original link
Proposed coach house: west elevation (2 of 2)
Plans
Not yet archived · Original link
Proposed cottage: east & north elevations
Plans
Not yet archived · Original link
Proposed cottage: first floor plan
Plans
Not yet archived · Original link
Proposed cottage: ground & first floor lighting plans
Plans
Not yet archived · Original link
Proposed cottage: ground & first floor lighting plans
Plans
Not yet archived · Original link
Proposed cottage: ground floor plan
Plans
Not yet archived · Original link
Proposed cottage: roof plan
Plans
Not yet archived · Original link
Proposed cottage: section aa & bb
Plans
Not yet archived · Original link
Proposed cottage: west & south elevations
Plans
Not yet archived · Original link
Proposed external plant compound elevations
Plans
Not yet archived · Original link
Proposed external plant compound plans
Plans
Not yet archived · Original link
Proposed internal lighting plans
Plans
Not yet archived · Original link
Proposed location plan
Plans
Not yet archived · Original link
Plans
Archived · Original link
Proposed smoke house: door exd-01 (refurbished)
Plans
Not yet archived · Original link
Proposed smoke house: elevation and sections
Plans
Not yet archived · Original link
Proposed smoke house: elevations
Plans
Not yet archived · Original link
Proposed smoke house: ground floor plans
Plans
Not yet archived · Original link
Proposed smoke house: lighting plans
Plans
Not yet archived · Original link
Proposed smoke house: lower and first floor plans
Plans
Not yet archived · Original link
Proposed smoke house: typical window (refurbished)
Plans
Not yet archived · Original link
Proposed stables: basement block plan
Plans
Not yet archived · Original link
Proposed stables: east (principal) elevation
Plans
Not yet archived · Original link
Proposed stables: first floor lighting plan
Plans
Not yet archived · Original link
Proposed stables: first floor lighting plan
Plans
Not yet archived · Original link
Proposed stables: first floor plan
Plans
Not yet archived · Original link
Proposed stables: ground floor block plan
Plans
Not yet archived · Original link
Proposed stables: ground floor lighting plan
Plans
Not yet archived · Original link
Proposed stables: ground floor lighting plan
Plans
Not yet archived · Original link
Proposed stables: ground floor plan
Plans
Not yet archived · Original link
Proposed stables: north elevation
Plans
Not yet archived · Original link
Proposed stables: roof plan
Plans
Not yet archived · Original link
Proposed stables: section aa bb
Plans
Not yet archived · Original link
Proposed stables: section cc dd
Plans
Not yet archived · Original link
Proposed stables: south elevation
Plans
Not yet archived · Original link
Proposed stables: west elevation
Plans
Not yet archived · Original link
Proposed topographical & landscaping plan (1 of 2)
Plans
Not yet archived · Original link
Proposed topographical & landscaping plan (2 of 2)
Plans
Not yet archived · Original link
Proposed wider location plan
Plans
Not yet archived · Original link
Public notice
Publicity
Not yet archived · Original link
Public notice
Publicity
Not yet archived · Original link
Repairs coach house: door - ex d-01
Plans
Not yet archived · Original link
Repairs coach house: door - ex d-02
Plans
Not yet archived · Original link
Repairs coach house: door - ex d-03
Plans
Not yet archived · Original link
Repairs coach house: door - ex d-06 (1 of 2)
Plans
Not yet archived · Original link
Repairs coach house: door - ex d-06 (2 of 2)
Plans
Not yet archived · Original link
Repairs coach house: door - ex d-08
Plans
Not yet archived · Original link
Repairs coach house: door - ex d-09
Plans
Not yet archived · Original link
Repairs coach house: door - ex d-10
Plans
Not yet archived · Original link
Repairs coach house: door - ex d-11 (1 of 2)
Plans
Not yet archived · Original link
Repairs coach house: door - ex d-11 (2 of 2)
Plans
Not yet archived · Original link
Repairs coach house: door - ex d-12
Plans
Not yet archived · Original link
Repairs coach house: door - ex d-13
Plans
Not yet archived · Original link
Repairs coach house: door - ex d-14
Plans
Not yet archived · Original link
Repairs coach house: door - ex d-15
Plans
Not yet archived · Original link
Repairs coach house: door - in d-01
Plans
Not yet archived · Original link
Repairs coach house: door - in d-02
Plans
Not yet archived · Original link
Repairs coach house: door - in d-03
Plans
Not yet archived · Original link
Repairs coach house: door - in d-04/05
Plans
Not yet archived · Original link
Repairs coach house: door - in d-06
Plans
Not yet archived · Original link
Repairs coach house: door - in d-07
Plans
Not yet archived · Original link
Repairs coach house: door - in d-08
Plans
Not yet archived · Original link
Repairs coach house: door - in d-09
Plans
Not yet archived · Original link
Repairs coach house: door - in d-10
Plans
Not yet archived · Original link
Repairs coach house: door - in d-11
Plans
Not yet archived · Original link
Repairs coach house: east elevation (1 of 2)
Plans
Not yet archived · Original link
Repairs coach house: east elevation (2 of 2)
Plans
Not yet archived · Original link
Repairs coach house: first floor plan
Plans
Not yet archived · Original link
Repairs coach house: full repairs notes
Plans
Not yet archived · Original link
Repairs coach house: ground floor ceilings
Plans
Not yet archived · Original link
Repairs coach house: ground floor plan (1 of 3)
Plans
Not yet archived · Original link
Repairs coach house: ground floor plan (2 of 3)
Plans
Not yet archived · Original link
Repairs coach house: ground floor plan (3 of 3)
Plans
Not yet archived · Original link
Repairs coach house: north elevation
Plans
Not yet archived · Original link
Repairs coach house: roof plan
Plans
Not yet archived · Original link
Repairs coach house: section aa
Plans
Not yet archived · Original link
Repairs coach house: section bb
Plans
Not yet archived · Original link
Repairs coach house: south elevation
Plans
Not yet archived · Original link
Repairs coach house: west elevation (1 of 2)
Plans
Not yet archived · Original link
Repairs coach house: west elevation (2 of 2)
Plans
Not yet archived · Original link
Repairs coach house: window - ex w-01
Plans
Not yet archived · Original link
Repairs coach house: window - ex w-02
Plans
Not yet archived · Original link
Repairs coach house: window - ex w-08
Plans
Not yet archived · Original link
Repairs coach house: window - ex w-09
Plans
Not yet archived · Original link
Repairs coach house: window - ex w-10
Plans
Not yet archived · Original link
Repairs coach house: window - ex w-11
Plans
Not yet archived · Original link
Repairs coach house: window - ex w-12
Plans
Not yet archived · Original link
Repairs coach house: window - ex w-13
Plans
Not yet archived · Original link
Repairs coach house: window - ex w-17
Plans
Not yet archived · Original link
Repairs coach house: window - ex w-18
Plans
Not yet archived · Original link
Repairs coach house: window - ex w-19
Plans
Not yet archived · Original link
Repairs coach house: window - ex w-20
Plans
Not yet archived · Original link
Repairs coach house: window - ex w-21
Plans
Not yet archived · Original link
Repairs coach house: window - ex w-22
Plans
Not yet archived · Original link
Repairs coach house: window - ex w-23
Plans
Not yet archived · Original link
Repairs coach house: window - ex w-24
Plans
Not yet archived · Original link
Repairs coach house: window - ex w-25
Plans
Not yet archived · Original link
Repairs coach house: window - ex w-26
Plans
Not yet archived · Original link
Repairs coach house: window - ex w-27
Plans
Not yet archived · Original link
Repairs coach house: window - ex w-28
Plans
Not yet archived · Original link
Repairs coach house: window - ex w-29
Plans
Not yet archived · Original link
Repairs coach house: window - ex w-30
Plans
Not yet archived · Original link
Repairs coach house: window - ex w-31
Plans
Not yet archived · Original link
Repairs coach house: window - in w-01
Plans
Not yet archived · Original link
Repairs coach house: window - in w-02
Plans
Not yet archived · Original link
Repairs coach house: window - in w-03
Plans
Not yet archived · Original link
Repairs coach house: window - in w-04
Plans
Not yet archived · Original link
Repairs coach house: window - in w-05
Plans
Not yet archived · Original link
Repairs cottage: ceiling plans
Plans
Not yet archived · Original link
Repairs cottage: east & north elevation
Plans
Not yet archived · Original link
Repairs cottage: first floor & roof plan
Plans
Not yet archived · Original link
Repairs cottage: full demolition notes
Plans
Not yet archived · Original link
Repairs cottage: full repair notes
Plans
Not yet archived · Original link
Repairs cottage: ground floor plan
Plans
Not yet archived · Original link
Repairs cottage: ground floor plan
Plans
Not yet archived · Original link
Repairs cottage: sections aa & bb
Plans
Not yet archived · Original link
Repairs cottage: west & south elevation
Plans
Not yet archived · Original link
Repairs cottage: window - ex w-01
Plans
Not yet archived · Original link
Repairs smoke house: ceiling repairs
Plans
Not yet archived · Original link
Repairs smoke house: elevations (1 of 2)
Plans
Not yet archived · Original link
Repairs smoke house: elevations (2 of 2)
Plans
Not yet archived · Original link
Repairs smoke house: first floor & roof plan
Plans
Not yet archived · Original link
Repairs smoke house: ground floor plans
Plans
Not yet archived · Original link
Repairs smoke house: repairs & demolition notes
Plans
Not yet archived · Original link
Repairs smoke house: section aa
Plans
Not yet archived · Original link
Repairs stable: door - ex d-01
Plans
Not yet archived · Original link
Repairs stable: door - ex d-02
Plans
Not yet archived · Original link
Repairs stable: door - ex d-03
Plans
Not yet archived · Original link
Repairs stable: door - ex d-04
Plans
Not yet archived · Original link
Repairs stable: window - ex w-01
Plans
Not yet archived · Original link
Repairs stable: window - ex w-02
Plans
Not yet archived · Original link
Repairs stable: window - ex w-03
Plans
Not yet archived · Original link
Repairs stable: window - ex w-04
Plans
Not yet archived · Original link
Repairs stables: ceiling plans
Plans
Not yet archived · Original link
Repairs stables: east (principal) elevation
Plans
Not yet archived · Original link
Repairs stables: first floor plan
Plans
Not yet archived · Original link
Repairs stables: full repairs notes
Plans
Not yet archived · Original link
Repairs stables: ground floor plan
Plans
Not yet archived · Original link
Repairs stables: north & south elevation
Plans
Not yet archived · Original link
Repairs stables: roof plan
Plans
Not yet archived · Original link
Repairs stables: west elevation
Plans
Not yet archived · Original link
Site notice in situ
Publicity
Not yet archived · Original link
Structural appraisal
SupportingDocs
Not yet archived · Original link
Toucc email
ConsulteeResponse
Not yet archived · Original link
Treatement plant quotation
SupportingDocs
Not yet archived · Original link
Typical details coach house: glazed arch openings (1 of 2)
Plans
Not yet archived · Original link
Typical details coach house: glazed arch openings (2 of 2)
Plans
Not yet archived · Original link
Typical details cottage: dormer details
Plans
Not yet archived · Original link
Typical details cottage: dormer elevations
Plans
Not yet archived · Original link
Typical details courtyard entrance details
Plans
Not yet archived · Original link
Typical details courtyard wall details
Plans
Not yet archived · Original link
Typical details roof section details 01 eaves/ridge
Plans
Not yet archived · Original link
Typical details roof section details 02 verge / hip / abutments
Plans
Not yet archived · Original link
Typical details roof section details 03 (timber ceilings)
Plans
Not yet archived · Original link
Typical details wall/floor junction - lime plaster
Plans
Not yet archived · Original link
Typical details wall/floor junction - limewash
Plans
Not yet archived · Original link
Typical details wall/floor junction - sound proofing details
Plans
Not yet archived · Original link
Typical details wall/floor junction - tanking details
Plans
Not yet archived · Original link
Typical details wall/floor junction - timber panelling
Plans
Not yet archived · Original link
Typical details window and door protection details
Plans
Not yet archived · Original link
Window and door repair specification
Plans
Not yet archived · Original link

Have your say

Your comment matters. Councils must consider every representation that raises material planning considerations.

Write a comment