← Bannau Brycheiniog / Brecon Beacons National Park Authority
25/23781/FUL
Bannau Brycheiniog / Brecon Beacons National Park Authority
Status
Awaiting decision
New housing
Received
Not recorded
New homes
1
Full proposal
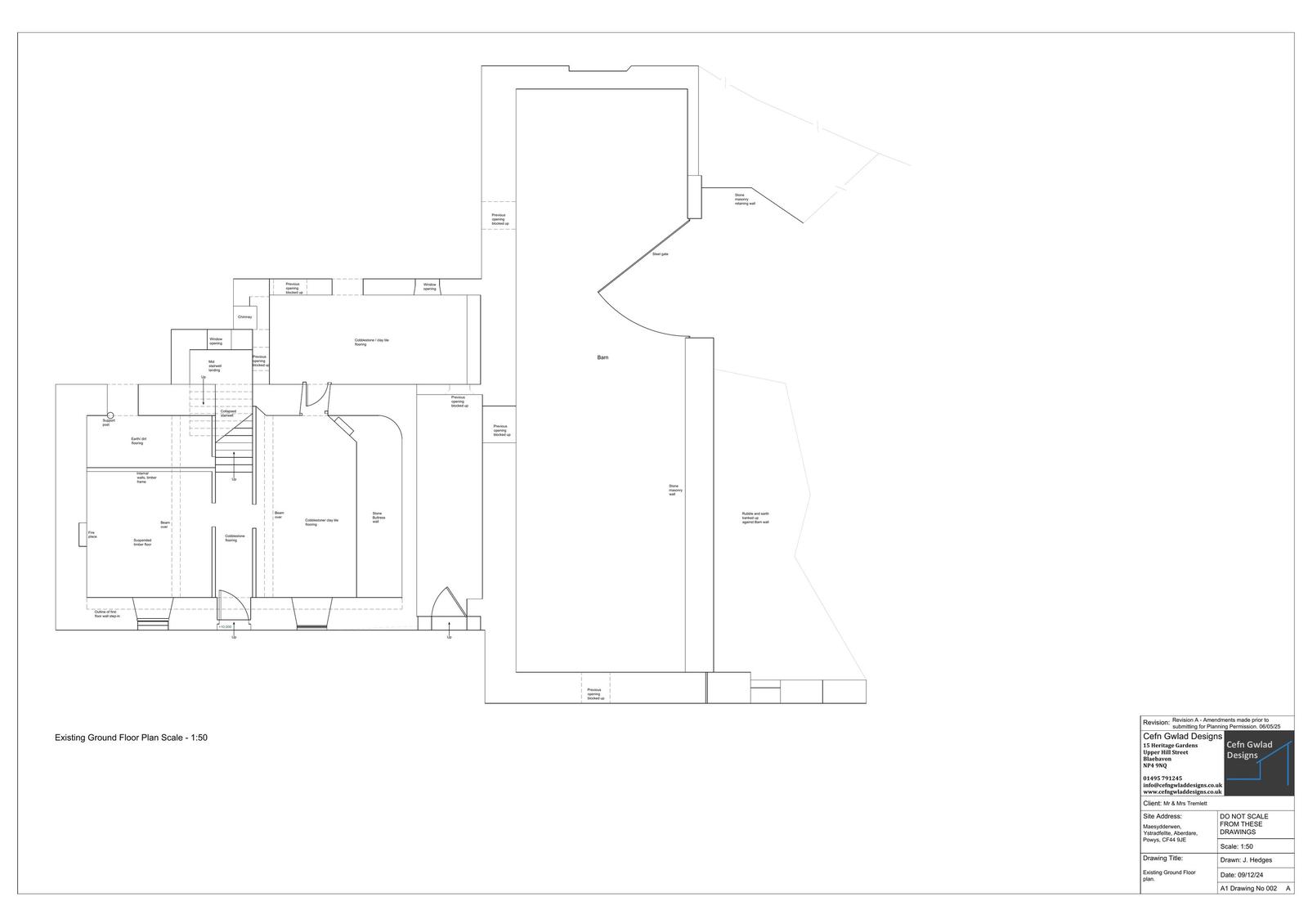
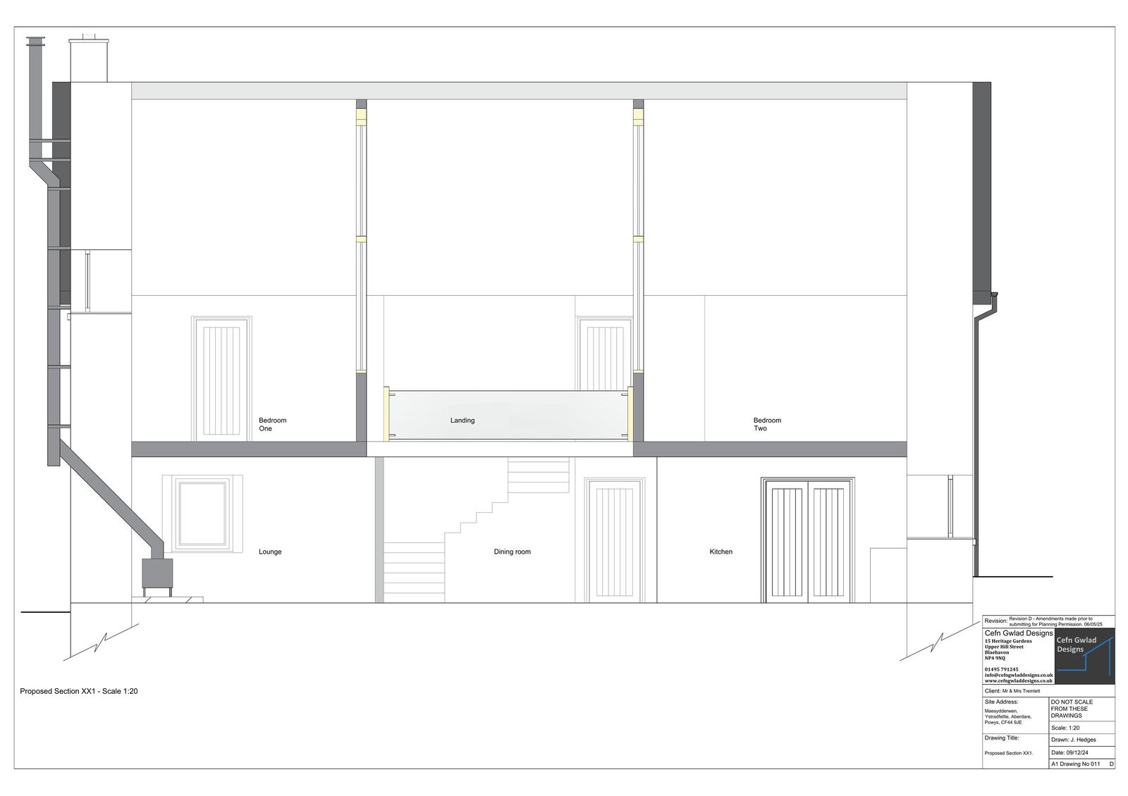
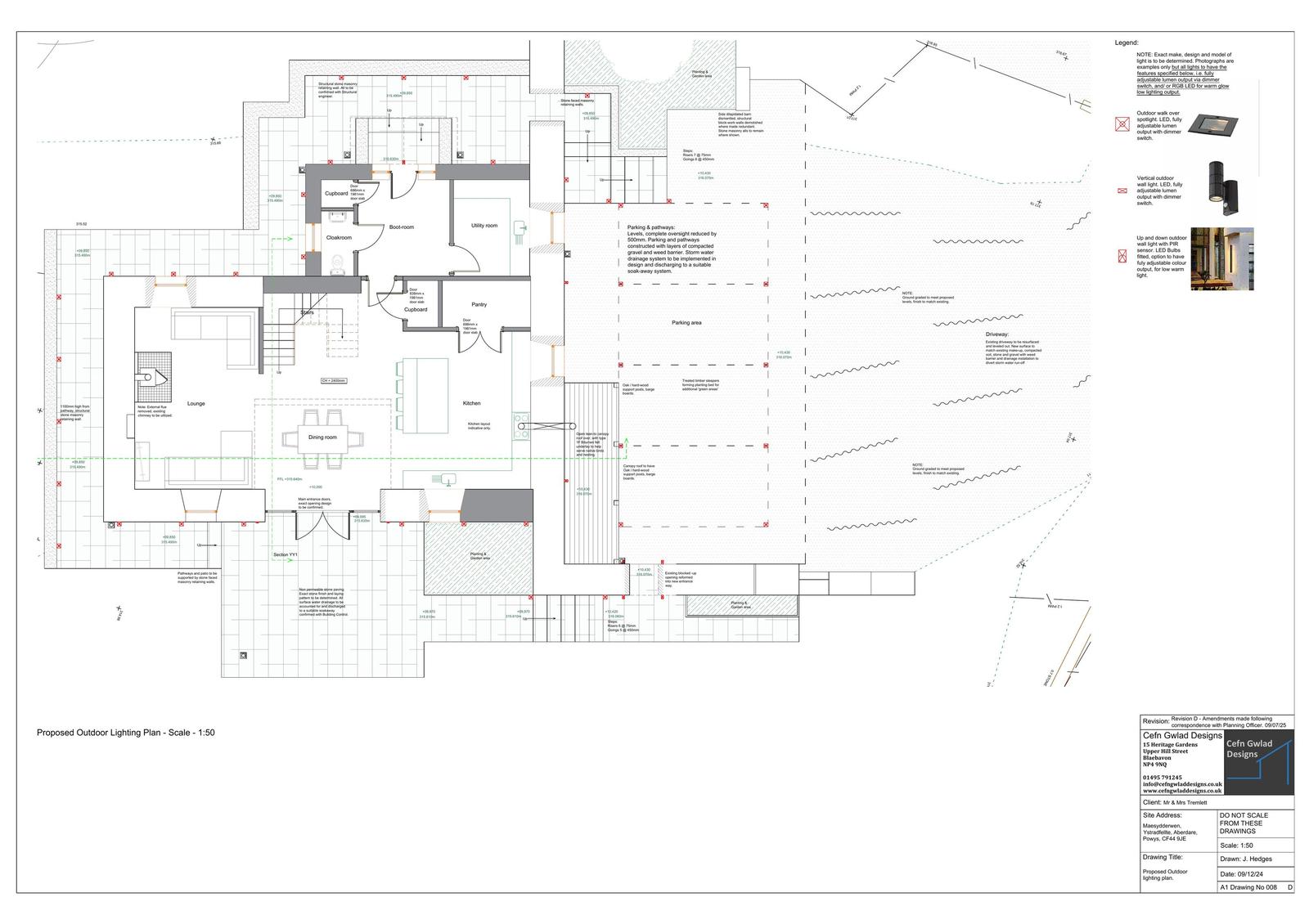
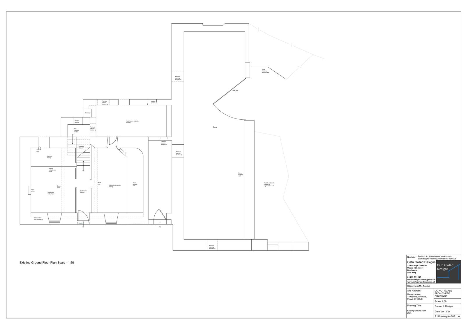
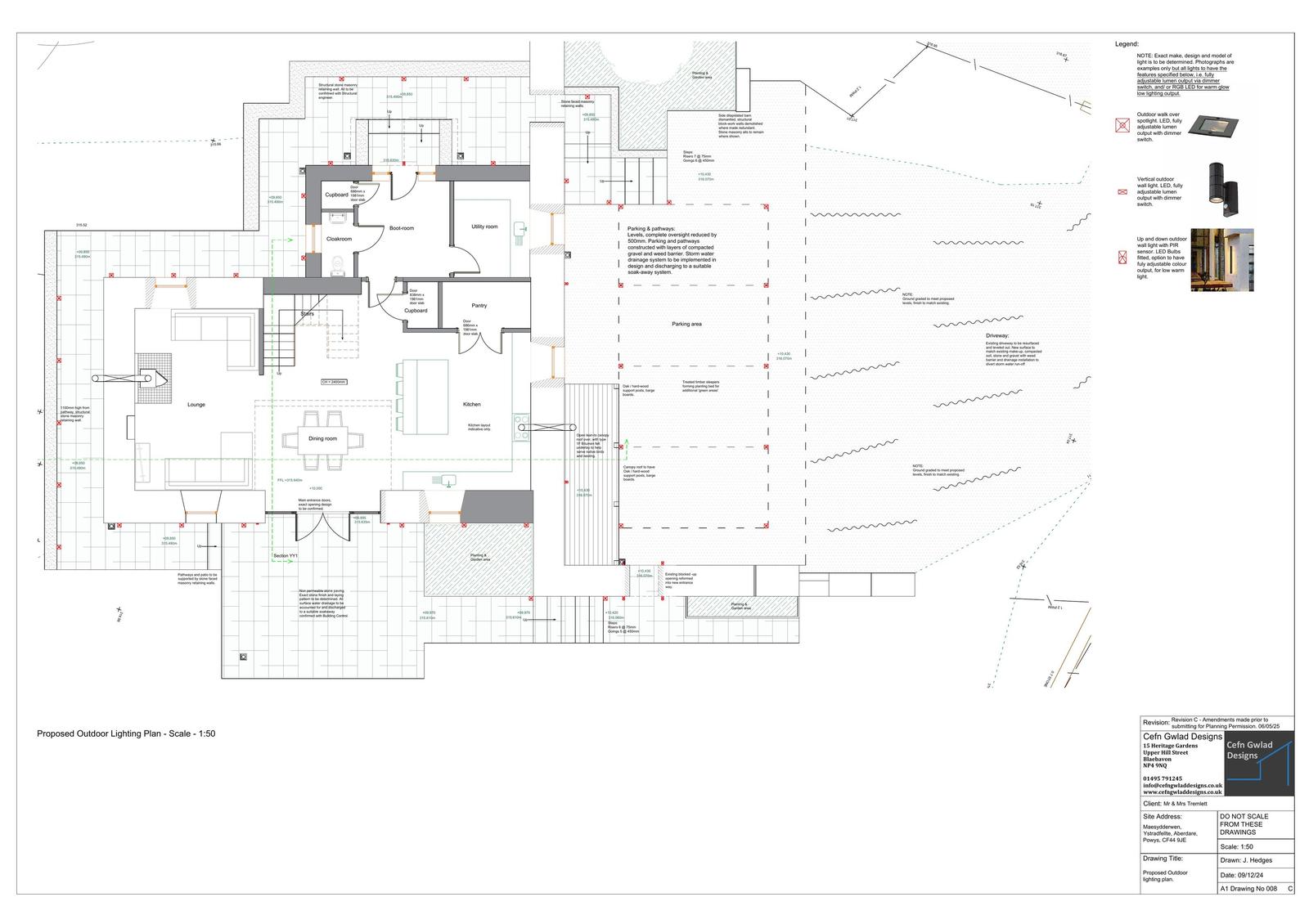
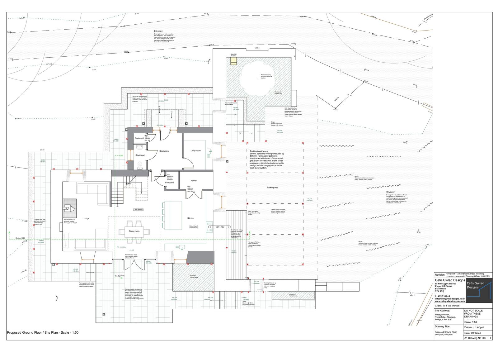
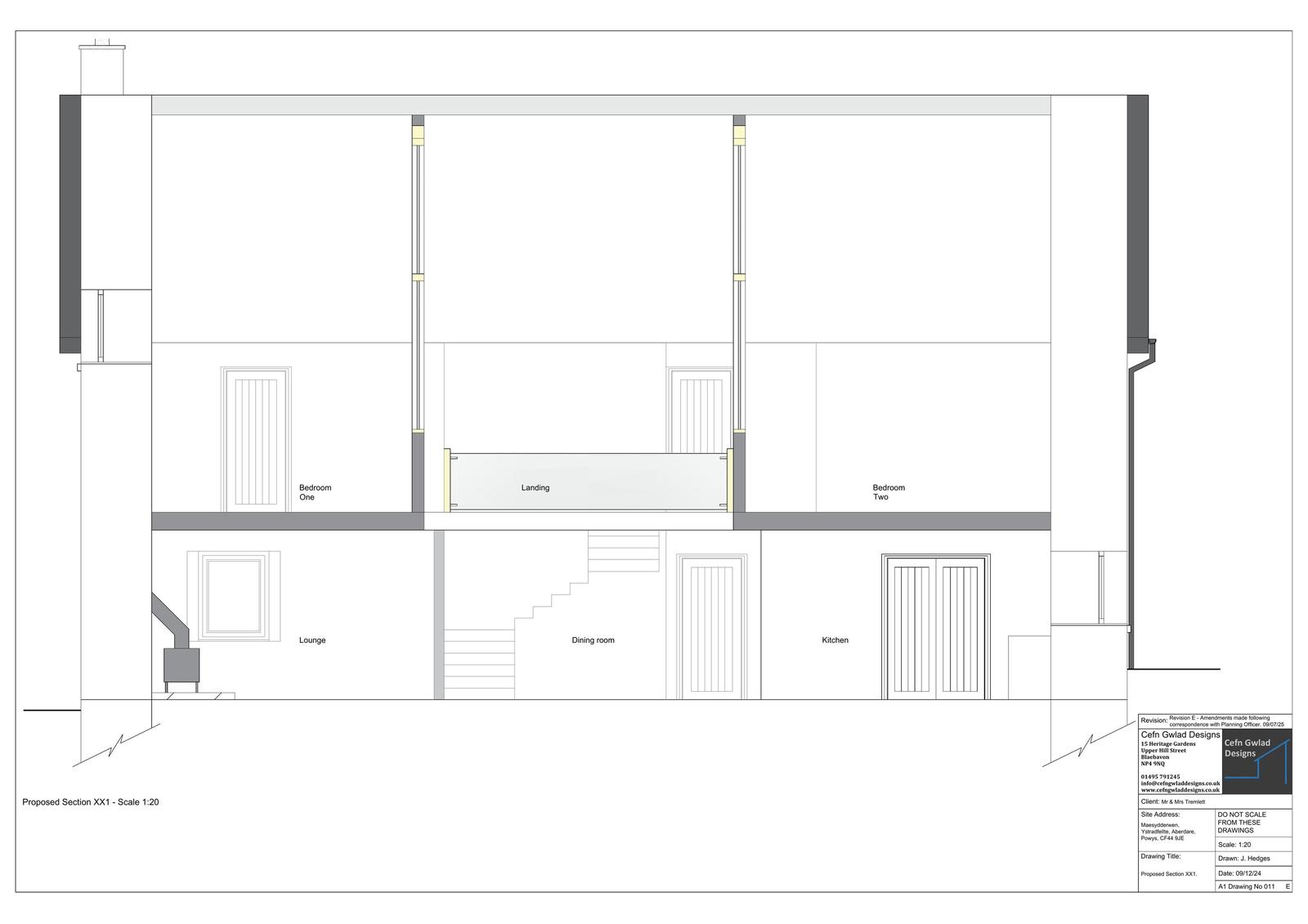
Reinstatement of a former dwelling in the countryside, installation of new foul drainage system, installation of stand alone solar pv panels and associated works.
Documents
Have your say
Your comment matters. Councils must consider every representation that raises material planning considerations.