← Bannau Brycheiniog / Brecon Beacons National Park Authority

Status

Awaiting decision New housing
Received
Not recorded
New homes
2

Full proposal

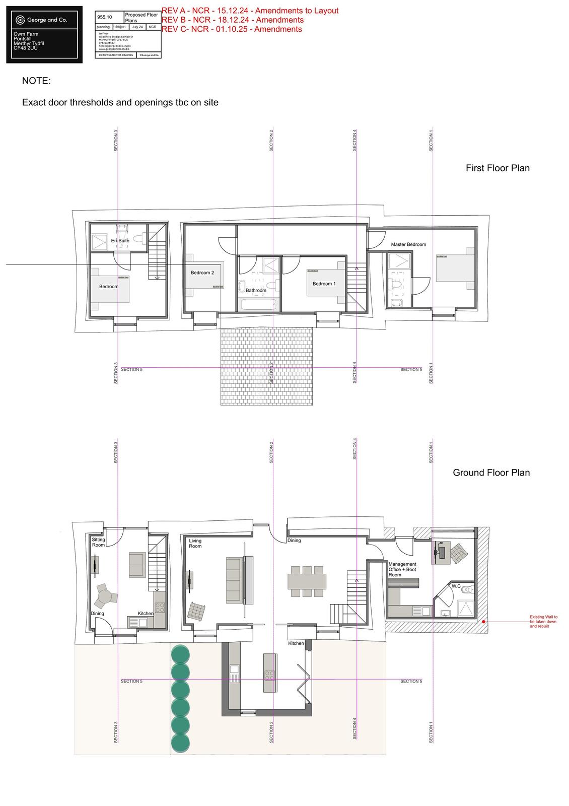
Refurbishment to an existing derelict barn. Proposal to include a new 3no Bedroom enterprise dwelling with an office/management space for a Holiday let and 1no Bedroom Airbnb/Holiday Let Class C6.

Documents

Admin email
Correspondence
Not yet archived · Original link
Agent email
Correspondence
Not yet archived · Original link
Agent email
Correspondence
Not yet archived · Original link
Agent email
Correspondence
Not yet archived · Original link
Agent email
Correspondence
Not yet archived · Original link
Agent email
Correspondence
Not yet archived · Original link
Agent email
Correspondence
Not yet archived · Original link
Agent email
Correspondence
Not yet archived · Original link
Agent email
Correspondence
Not yet archived · Original link
Agent email
Correspondence
Not yet archived · Original link
Agent email
Correspondence
Not yet archived · Original link
Agent email
Correspondence
Not yet archived · Original link
Agent email
Correspondence
Not yet archived · Original link
Agent email
Correspondence
Not yet archived · Original link
Agent email
Correspondence
Not yet archived · Original link
Agent email
Correspondence
Not yet archived · Original link
Agent email
Correspondence
Not yet archived · Original link
All plans combined
Plans
Not yet archived · Original link
All plans combined
Plan Superseded
Not yet archived · Original link
Applicant agent acknowledgement feb23
Correspondence
Not yet archived · Original link
Applicationformredacted
Application Form
Not yet archived · Original link
Bat mitigation method statement
SupportingDocs
Not yet archived · Original link
Bat survey v2.0
SupportingDocs
Not yet archived · Original link
Bbps
ConsulteeResponse
Not yet archived · Original link
Consultee initial
Correspondence
Not yet archived · Original link
Consultee initial
Correspondence
Not yet archived · Original link
Consultee initial
Correspondence
Not yet archived · Original link
Consultee initial
Correspondence
Not yet archived · Original link
Consultee initial
Correspondence
Not yet archived · Original link
Consultee initial
Correspondence
Not yet archived · Original link
Consultee initial
Correspondence
Not yet archived · Original link
Consultee initial
Correspondence
Not yet archived · Original link
Consultee initial
Correspondence
Not yet archived · Original link
Consultee initial
Correspondence
Not yet archived · Original link
Dcww
ConsulteeResponse
Not yet archived · Original link
Dcww
ConsulteeResponse
Not yet archived · Original link
Dcww
ConsulteeResponse
Not yet archived · Original link
Eia screening
EIAScreening
Not yet archived · Original link
Existing elevations
Plan Superseded
Not yet archived · Original link
Existing floor plan
Plans
Not yet archived · Original link
Existing floor plan
Plan Superseded
Not yet archived · Original link
Existing front + rear elevations
Plans
Not yet archived · Original link
Existing front + rear elevations
Plan Superseded
Not yet archived · Original link
Existing plan
Plan Superseded
Not yet archived · Original link
Existing sections
Plans
Not yet archived · Original link
Existing sections
Plan Superseded
Not yet archived · Original link
Existing sections
Plan Superseded
Not yet archived · Original link
Green infrastructure statement
SupportingDocs
Not yet archived · Original link
Mtcbdc email
Correspondence
Not yet archived · Original link
Non-mains foul sewerage strategy
SupportingDocs
Not yet archived · Original link
Nparch
ConsulteeResponse
Not yet archived · Original link
Npbcon
ConsulteeResponse
Not yet archived · Original link
Npeco
ConsulteeResponse
Not yet archived · Original link
Nrw
ConsulteeResponse
Not yet archived · Original link
Nrw
ConsulteeResponse
Not yet archived · Original link
Officer email
Correspondence
Not yet archived · Original link
Officer email
Correspondence
Not yet archived · Original link
Officer email
Correspondence
Not yet archived · Original link
Officer email
Correspondence
Not yet archived · Original link
Officer email
Correspondence
Not yet archived · Original link
Officer email
Correspondence
Not yet archived · Original link
Officer email
Correspondence
Not yet archived · Original link
Officer email
Correspondence
Not yet archived · Original link
Proposed elevations
Plans
Not yet archived · Original link
Proposed elevations
Plan Superseded
Not yet archived · Original link
Proposed elevations
Plans
Not yet archived · Original link
Proposed floor plan
Plans
Not yet archived · Original link
Plan Superseded
Archived · Original link
Proposed sections
Plans
Not yet archived · Original link
Proposed sections
Plan Superseded
Not yet archived · Original link
Proposed sections
Plans
Not yet archived · Original link
Proposed site block plan
Plan Superseded
Not yet archived · Original link
Proposed site block plan
Plan Superseded
Not yet archived · Original link
Proposed site block plan
Plan Superseded
Not yet archived · Original link
Proposed site block plan
Plans
Not yet archived · Original link
Site block plan
Plan Superseded
Not yet archived · Original link
Site block plan
Plan Superseded
Not yet archived · Original link
Site block plan
Plan Superseded
Not yet archived · Original link
Site block plan
Plans
Not yet archived · Original link
Plan Superseded
Archived · Original link
Plan Superseded
Archived · Original link
Plans
Archived · Original link
Plan Superseded
Archived · Original link
Site notice
Publicity
Not yet archived · Original link
Site notice
Publicity
Not yet archived · Original link
Structural condition report
SupportingDocs
Not yet archived · Original link
Supporting information statement
SupportingDocs
Not yet archived · Original link
Supporting information statement
SupportingDocs
Not yet archived · Original link
Topographical plan
Plan Superseded
Not yet archived · Original link
Topographical survey
Plans
Not yet archived · Original link
Topographical survey
Plan Superseded
Not yet archived · Original link
Validation email
Correspondence
Not yet archived · Original link
Vcf (via mt neighbourhood services)
ConsulteeResponse
Not yet archived · Original link

Have your say

Your comment matters. Councils must consider every representation that raises material planning considerations.

Write a comment