← Bannau Brycheiniog / Brecon Beacons National Park Authority

Status

Awaiting decision House extension
Received
Not recorded
New homes
0

Full proposal

Proposed alterations and extension to the existing dwelling at The Old Barn, Castle Road, Llangynidr

Documents

Agent email
Correspondence
Not yet archived · Original link
Applicant agent acknowledgement feb23
Correspondence
Not yet archived · Original link
Applicant email
Correspondence
Not yet archived · Original link
Applicationformredacted
Application Form
Not yet archived · Original link
Bats in building form
SupportingDocs
Not yet archived · Original link
Biodiversity enhancement and green infrastructure form
SupportingDocs
Not yet archived · Original link
Consultee initial
Correspondence
Not yet archived · Original link
Consultee initial
Correspondence
Not yet archived · Original link
Consultee initial
Correspondence
Not yet archived · Original link
Consultee initial
Correspondence
Not yet archived · Original link
Design and access statement
SupportingDocs
Not yet archived · Original link
Eia screening
EIAScreening
Not yet archived · Original link
Existing elevations
Plans
Not yet archived · Original link
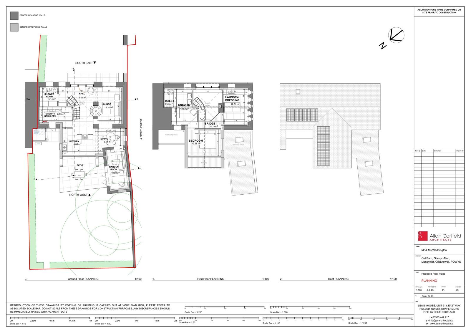
Existing floor plans
Plans
Not yet archived · Original link
Plans
Archived · Original link
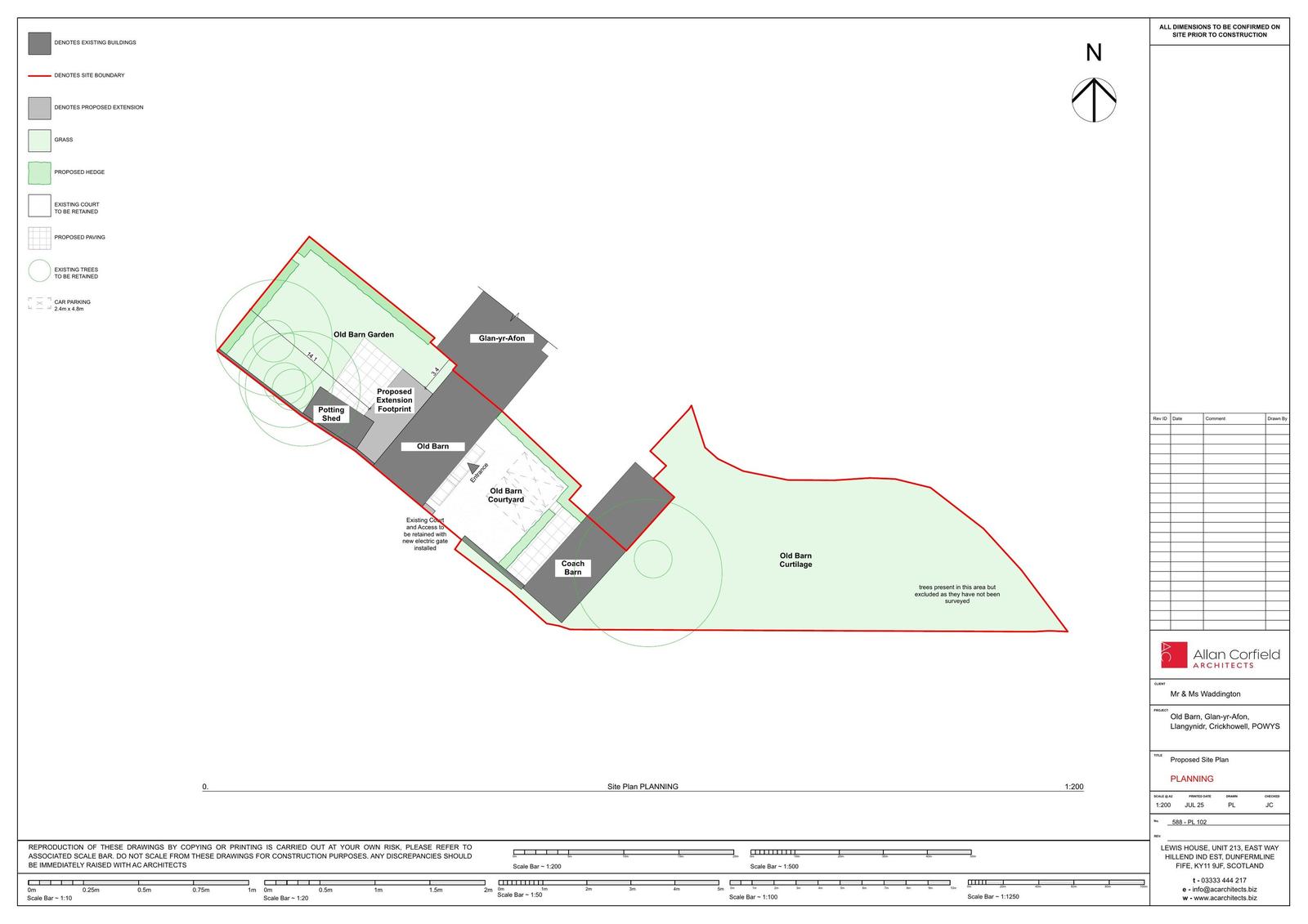
Location plan
Plans
Not yet archived · Original link
Npeco
ConsulteeResponse
Not yet archived · Original link
Officer email
Correspondence
Not yet archived · Original link
Pcchig
ConsulteeResponse
Not yet archived · Original link
Proposed elevations
Plans
Not yet archived · Original link
Proposed render images
Plans
Not yet archived · Original link
Proposed sections
Plans
Not yet archived · Original link
Plans
Archived · Original link
Validation email
Correspondence
Not yet archived · Original link

Have your say

Your comment matters. Councils must consider every representation that raises material planning considerations.

Write a comment