← Bannau Brycheiniog / Brecon Beacons National Park Authority

Status

Awaiting decision New housing
Received
Not recorded
New homes
1

Full proposal

Construction of one dwelling on land adjacent to Tarcoola.

Documents

20251128 site notice
Publicity
Not yet archived · Original link
Agent email
Correspondence
Not yet archived · Original link
Agent email
Correspondence
Not yet archived · Original link
Agent email
Correspondence
Not yet archived · Original link
Agent email
Correspondence
Not yet archived · Original link
Agent email
Correspondence
Not yet archived · Original link
Agent email
Correspondence
Not yet archived · Original link
Agent email
Correspondence
Not yet archived · Original link
Applicant agent acknowledgement feb23
Correspondence
Not yet archived · Original link
Applicationformredacted
Application Form
Not yet archived · Original link
Cemp
SupportingDocs
Not yet archived · Original link
Construction environmental management plan
SupportingDocs
Not yet archived · Original link
Consultee initial
Correspondence
Not yet archived · Original link
Consultee initial
Correspondence
Not yet archived · Original link
Consultee initial
Correspondence
Not yet archived · Original link
Consultee initial
Correspondence
Not yet archived · Original link
Consultee initial
Correspondence
Not yet archived · Original link
Consultee initial
Correspondence
Not yet archived · Original link
Consultee initial
Correspondence
Not yet archived · Original link
Consultee initial
Correspondence
Not yet archived · Original link
Consultee initial
Correspondence
Not yet archived · Original link
Consultee initial
Correspondence
Not yet archived · Original link
Consultee initial
Correspondence
Not yet archived · Original link
Consultee initial
Correspondence
Not yet archived · Original link
Consultee initial
Correspondence
Not yet archived · Original link
Consultee initial
Correspondence
Not yet archived · Original link
Consultee initial
Correspondence
Not yet archived · Original link
Consultee initial
Correspondence
Not yet archived · Original link
Consultee initial
Correspondence
Not yet archived · Original link
Consultee recon 14 days
Correspondence
Not yet archived · Original link
Dcww
ConsulteeResponse
Not yet archived · Original link
Design and access statement
SupportingDocs
Not yet archived · Original link
Drainage statement
SupportingDocs
Not yet archived · Original link
Eia screening
EIAScreening
Not yet archived · Original link
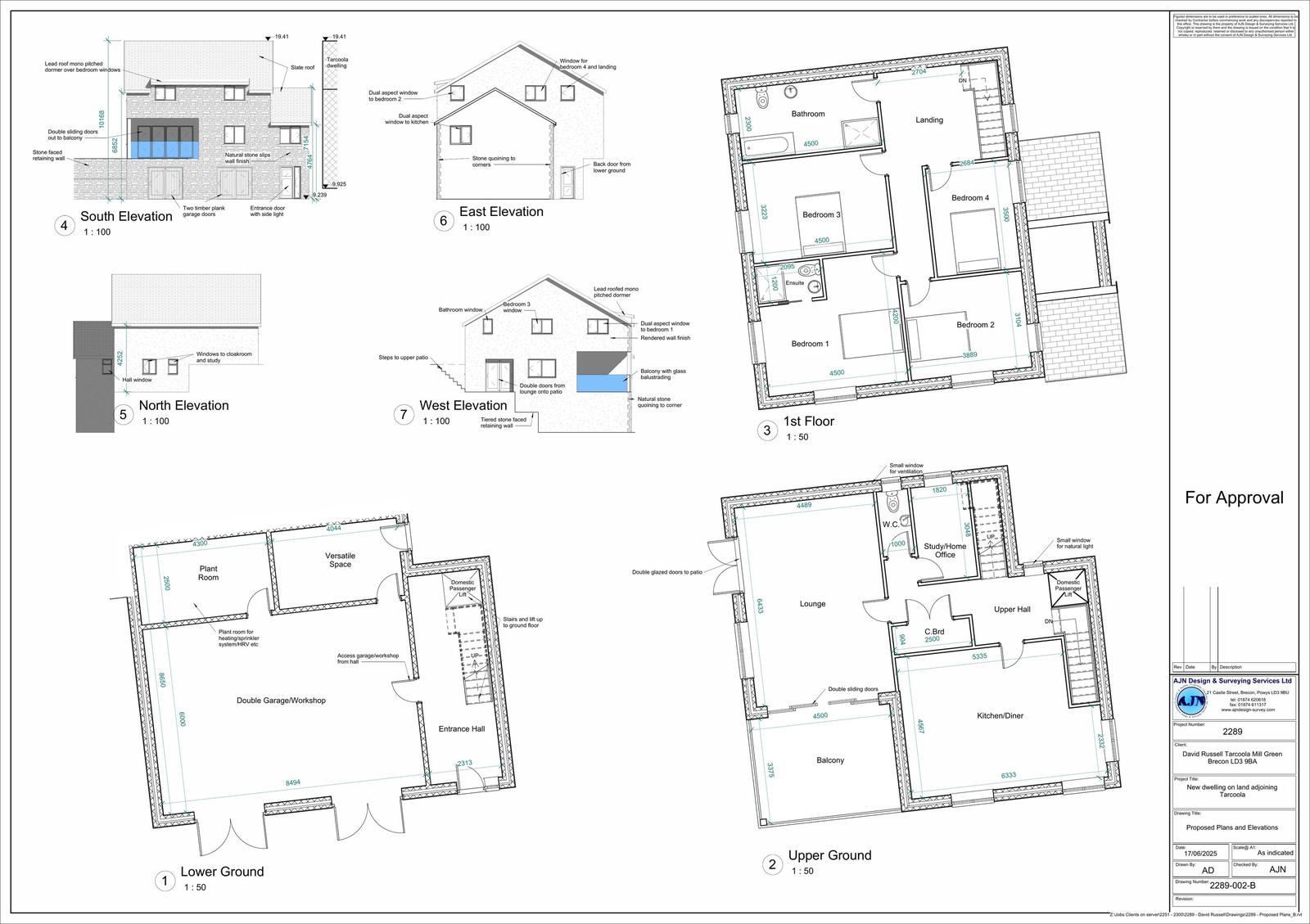
Plans
Archived · Original link
Green infrastructure statement
SupportingDocs
Not yet archived · Original link
Green infrastructure statement
SupportingDocs
Not yet archived · Original link
Historical assessment
SupportingDocs
Not yet archived · Original link
Hse
ConsulteeResponse
Not yet archived · Original link
Mwfs
ConsulteeResponse
Not yet archived · Original link
Nparch
ConsulteeResponse
Not yet archived · Original link
Nparch
ConsulteeResponse
Not yet archived · Original link
Npeco
ConsulteeResponse
Not yet archived · Original link
Nphsp
ConsulteeResponse
Not yet archived · Original link
Nprow email
ConsulteeResponse
Not yet archived · Original link
Nptc3
ConsulteeResponse
Not yet archived · Original link
Nrw
ConsulteeResponse
Not yet archived · Original link
Nrw
ConsulteeResponse
Not yet archived · Original link
Nrw email
ConsulteeResponse
Not yet archived · Original link
Nrw email
ConsulteeResponse
Not yet archived · Original link
Officer email
Correspondence
Not yet archived · Original link
Officer email
Correspondence
Not yet archived · Original link
Officer email
Correspondence
Not yet archived · Original link
Officer email
Correspondence
Not yet archived · Original link
Officer email
Correspondence
Not yet archived · Original link
Officer email
Correspondence
Not yet archived · Original link
Pccdrn email
ConsulteeResponse
Not yet archived · Original link
Pccdrn email
ConsulteeResponse
Not yet archived · Original link
Pccep email
ConsulteeResponse
Not yet archived · Original link
Pcchig
ConsulteeResponse
Not yet archived · Original link
Preliminary ecological appraisal
SupportingDocs
Not yet archived · Original link
Proposed biodiversity enhancement scheme
Plans
Not yet archived · Original link
Plans
Archived · Original link
Plans
Archived · Original link

Have your say

Your comment matters. Councils must consider every representation that raises material planning considerations.

Write a comment