← Bannau Brycheiniog / Brecon Beacons National Park Authority

Status

Awaiting decision New housing
Received
Not recorded
New homes
5

Full proposal

New access arrangements off Brecon Road including partial demolition and re-alignment of boundary wall in association with proposed development of 5 new build residential dwellings

Documents

Access statement
SupportingDocs
Not yet archived · Original link
Agent email
Correspondence
Not yet archived · Original link
Agent email
Correspondence
Not yet archived · Original link
Applicant agent acknowledgement feb23
Correspondence
Not yet archived · Original link
Applicationformredacted
Application Form
Not yet archived · Original link
Arboricultural report
SupportingDocs
Not yet archived · Original link
Cemp
SupportingDocs
Not yet archived · Original link
Consultee initial
Correspondence
Not yet archived · Original link
Consultee initial
Correspondence
Not yet archived · Original link
Consultee initial
Correspondence
Not yet archived · Original link
Crktc
ConsulteeResponse
Not yet archived · Original link
Design and access statement
SupportingDocs
Not yet archived · Original link
Drainage details sheet 1
Plans
Not yet archived · Original link
Drainage details sheet 2
Plans
Not yet archived · Original link
Drainage strategy report
SupportingDocs
Not yet archived · Original link
Existing site layout
Plans
Not yet archived · Original link
Green infrastructure statement
SupportingDocs
Not yet archived · Original link
Heritage impact assessment
SupportingDocs
Not yet archived · Original link
Highway construction details sheet 1
Plans
Not yet archived · Original link
Highway construction details sheet 2
Plans
Not yet archived · Original link
Highway construction details sheet 3
Plans
Not yet archived · Original link
Officer email
Correspondence
Not yet archived · Original link
Officer email
Correspondence
Not yet archived · Original link
Planning statement
SupportingDocs
Not yet archived · Original link
Plot drainage 1
Plans
Not yet archived · Original link
Plot drainage 2
Plans
Not yet archived · Original link
Plot drainage 3
Plans
Not yet archived · Original link
Preliminary ecological appraisal
SupportingDocs
Not yet archived · Original link
Proposed 3d views - house type a
Plans
Not yet archived · Original link
Proposed 3d views - house type b
Plans
Not yet archived · Original link
Proposed bin store
Plans
Not yet archived · Original link
Proposed elevations - house type a
Plans
Not yet archived · Original link
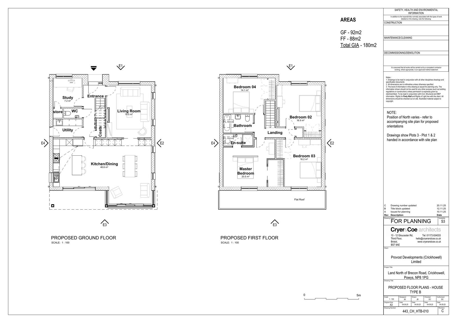
Proposed elevations - house type b
Plans
Not yet archived · Original link
Proposed entrance wall
Plans
Not yet archived · Original link
Proposed garage
Plans
Not yet archived · Original link
Proposed landscaping details
Plans
Not yet archived · Original link
Proposed roof plan - house type a
Plans
Not yet archived · Original link
Proposed roof plans - house type b
Plans
Not yet archived · Original link
Proposed site layout
Plans
Not yet archived · Original link
Proposed site sections and wall details
Plans
Not yet archived · Original link
Site drainage layout
Plans
Not yet archived · Original link
Site investigation summary
SupportingDocs
Not yet archived · Original link
Plans
Archived · Original link
Site notice
Publicity
Not yet archived · Original link
Site notice
Publicity
Not yet archived · Original link
Support planning statement
SupportingDocs
Not yet archived · Original link
Technical notes
SupportingDocs
Not yet archived · Original link
Transport statement
SupportingDocs
Not yet archived · Original link
Viability appraisal
SupportingDocs
Not yet archived · Original link

Have your say

Your comment matters. Councils must consider every representation that raises material planning considerations.

Write a comment