← Bannau Brycheiniog / Brecon Beacons National Park Authority

Status

Awaiting decision House extension
Received
Not recorded
New homes
0

Full proposal

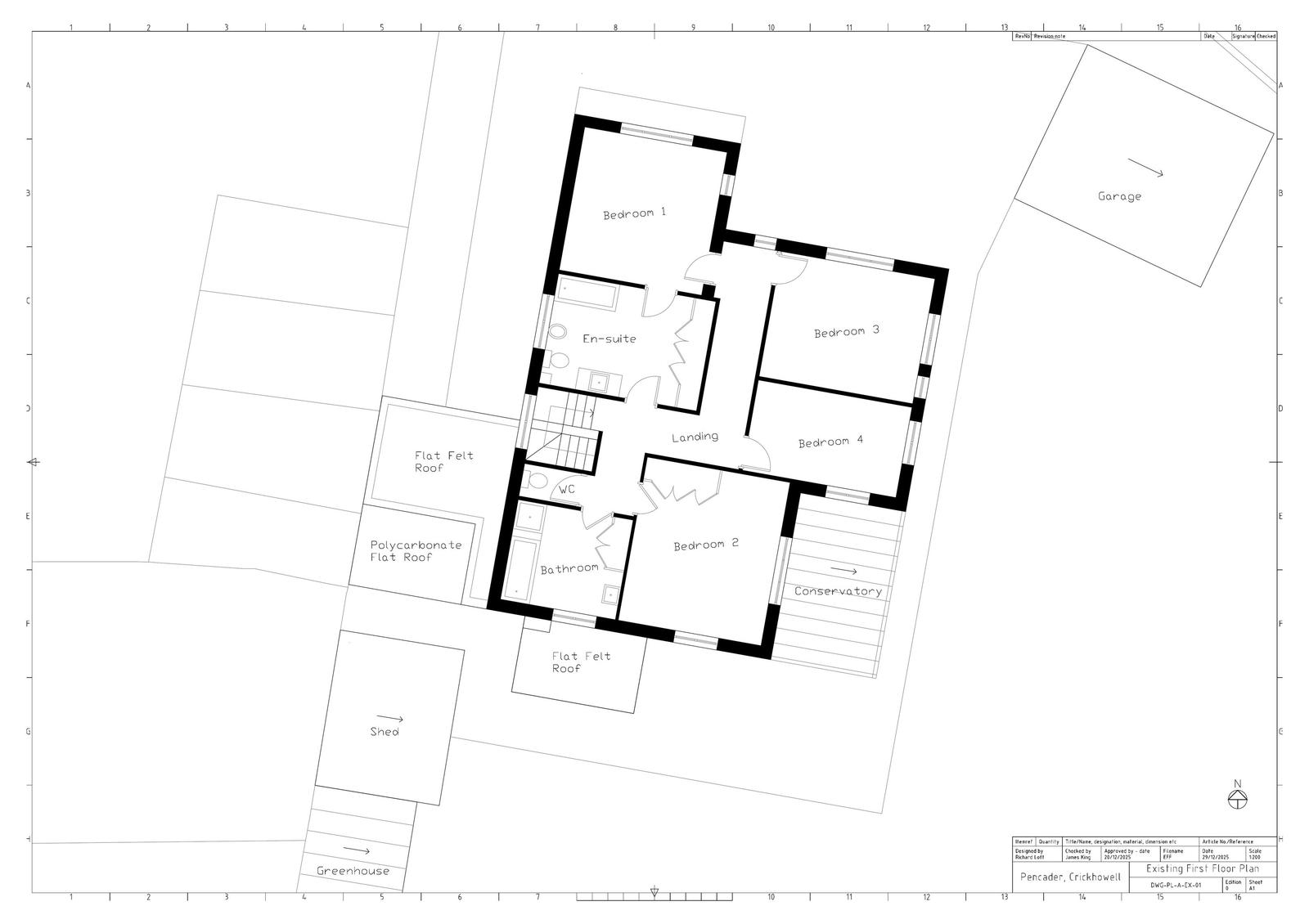
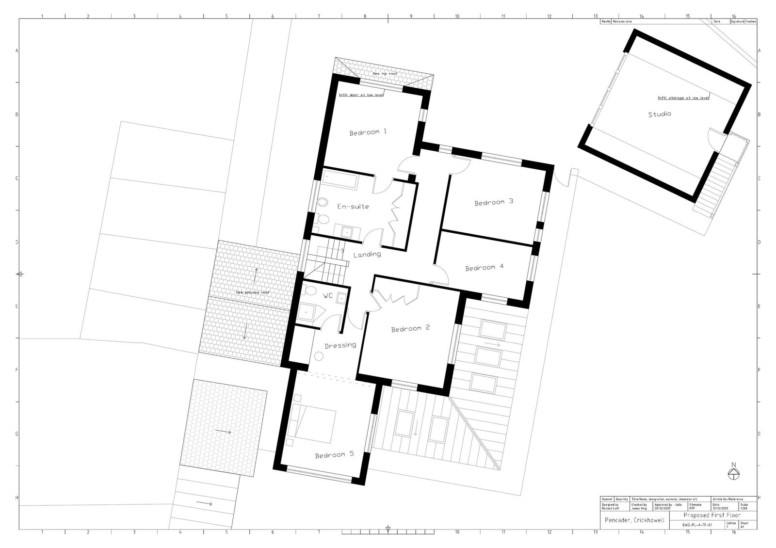
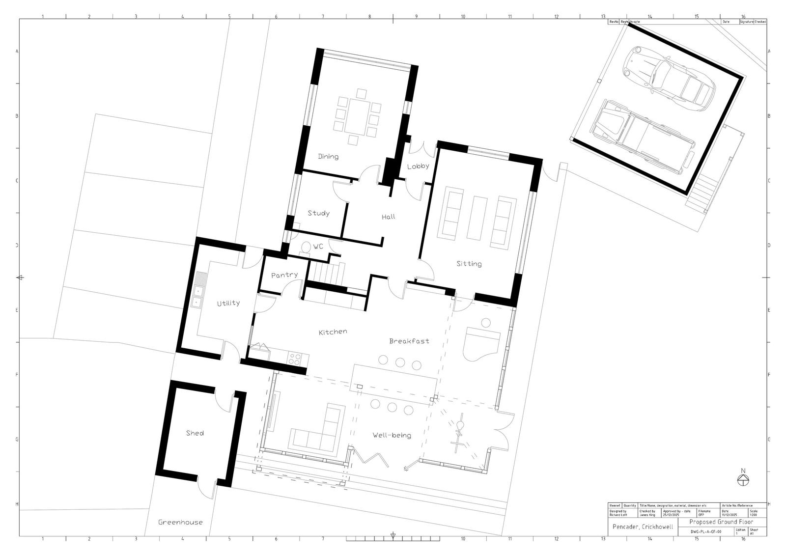
Erection of a double storey rear extension with single storey wrap around to side. Loft conversion comprising of a new dormer window to match new oak frame extension and existing roof. Erection of a double garage with studio above on existing garage plot to side. Replacing the existing balcony to front with a new hip roof to match existing tiles. New pitched roof over existing extension to match existing tiles. Boundary wall realignment with land ownership boundary and new timber post gates. New porch to front included also to match oak frame extension.

Have your say

Your comment matters. Councils must consider every representation that raises material planning considerations.

Write a comment