← Bannau Brycheiniog / Brecon Beacons National Park Authority

Status

Awaiting decision Change of use
Received
Not recorded
New homes
1

Full proposal

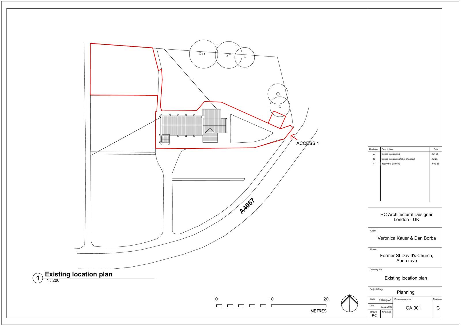
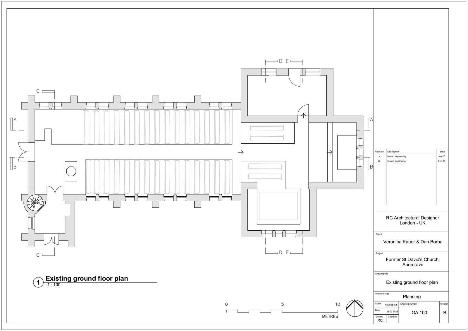
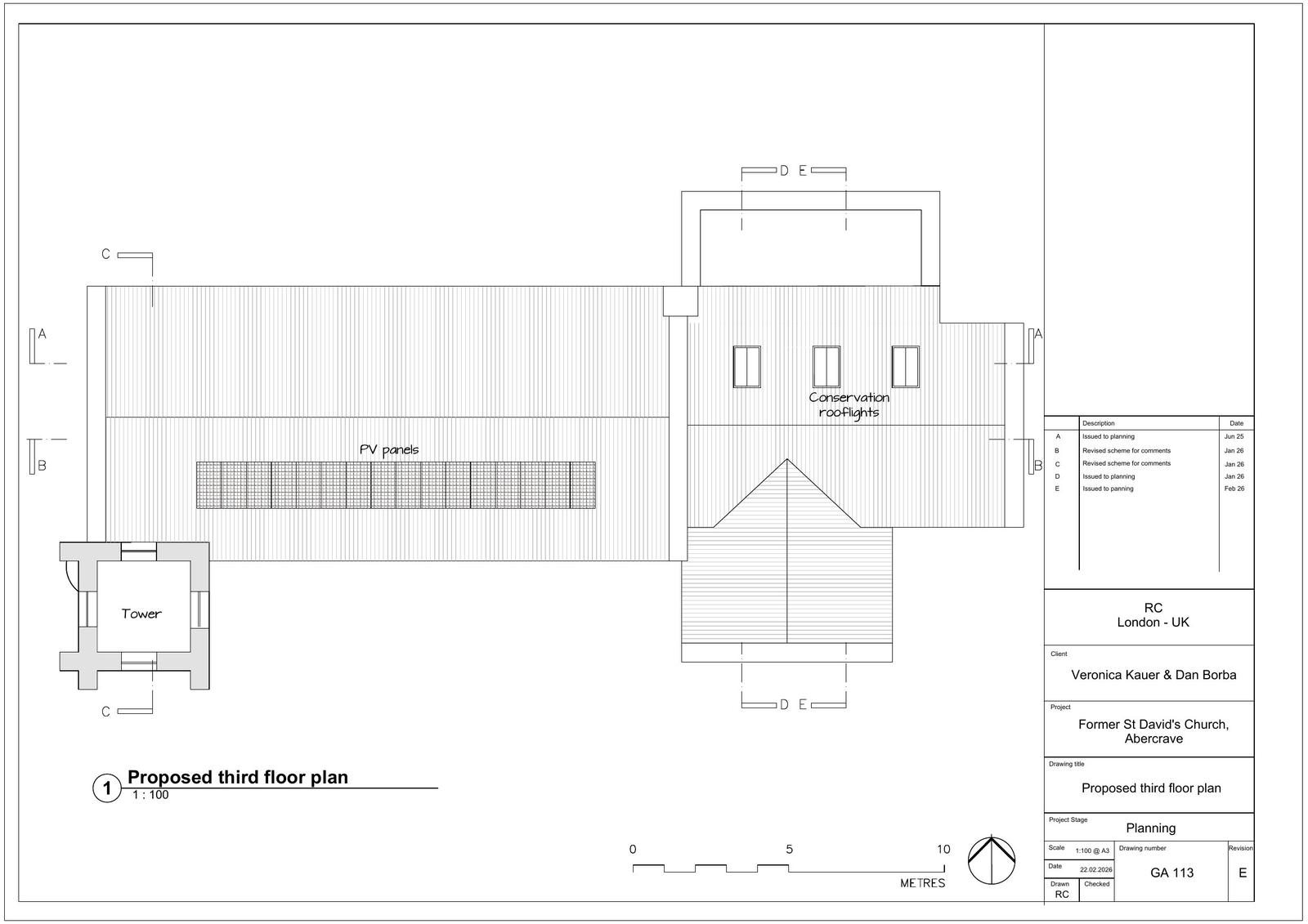
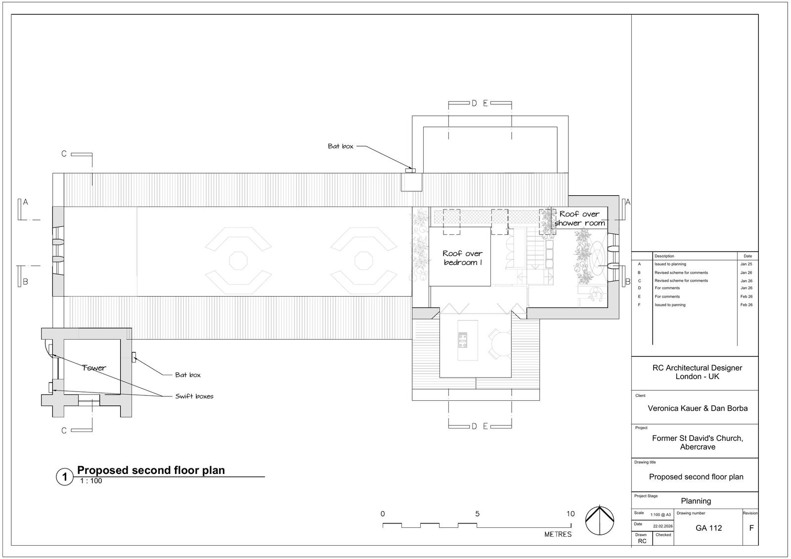
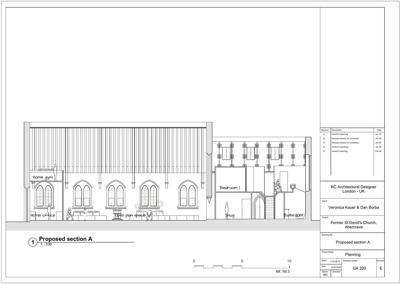
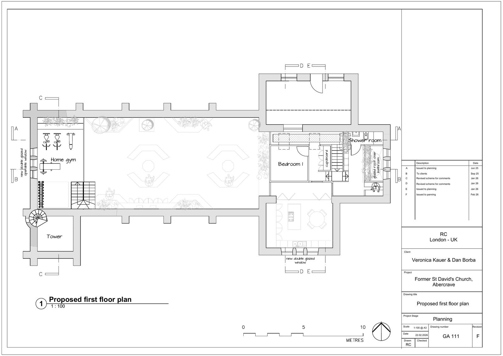
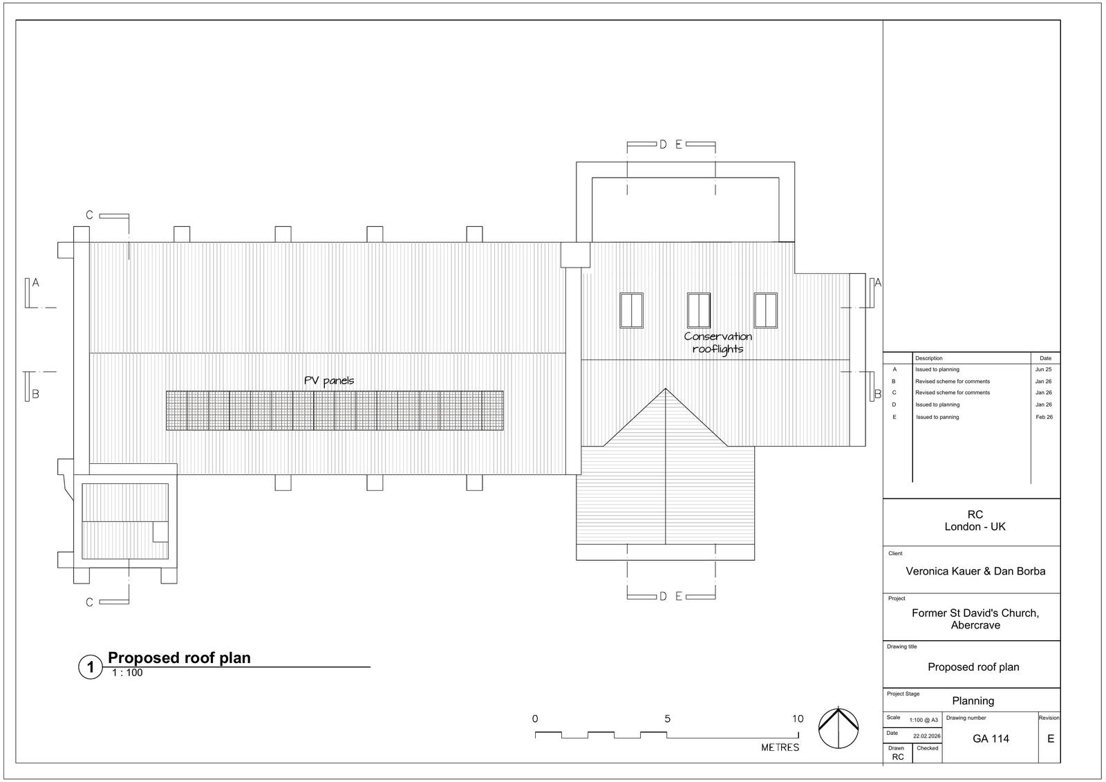
Change of use of former church building (class D1) into a single-family dwelling (class C3) and associated works

Documents

Application Form
Archived · Original link
SupportingDocs
Archived · Original link
Bbps
ConsulteeResponse
Not yet archived · Original link
Correspondence
Archived · Original link
Correspondence
Archived · Original link
Correspondence
Archived · Original link
Correspondence
Archived · Original link
Correspondence
Archived · Original link
Correspondence
Archived · Original link
Correspondence
Archived · Original link
Correspondence
Archived · Original link
Correspondence
Archived · Original link
Correspondence
Archived · Original link
SupportingDocs
Archived · Original link
Plans
Archived · Original link
SupportingDocs
Archived · Original link
Eia screening
EIAScreening
Not yet archived · Original link
Plans
Archived · Original link
Plans
Archived · Original link
Plans
Archived · Original link
Plans
Archived · Original link
Plans
Archived · Original link
Plans
Archived · Original link
SupportingDocs
Archived · Original link
SupportingDocs
Archived · Original link
Correspondence
Archived · Original link
ConsulteeResponse
Archived · Original link
ConsulteeResponse
Archived · Original link
SupportingDocs
Archived · Original link
Plans
Archived · Original link
Plans
Archived · Original link
Plans
Archived · Original link
Plans
Archived · Original link
Plans
Archived · Original link
Plans
Archived · Original link
Plans
Archived · Original link
Plans
Archived · Original link

Have your say

Your comment matters. Councils must consider every representation that raises material planning considerations.

Write a comment