← Brentwood

Status

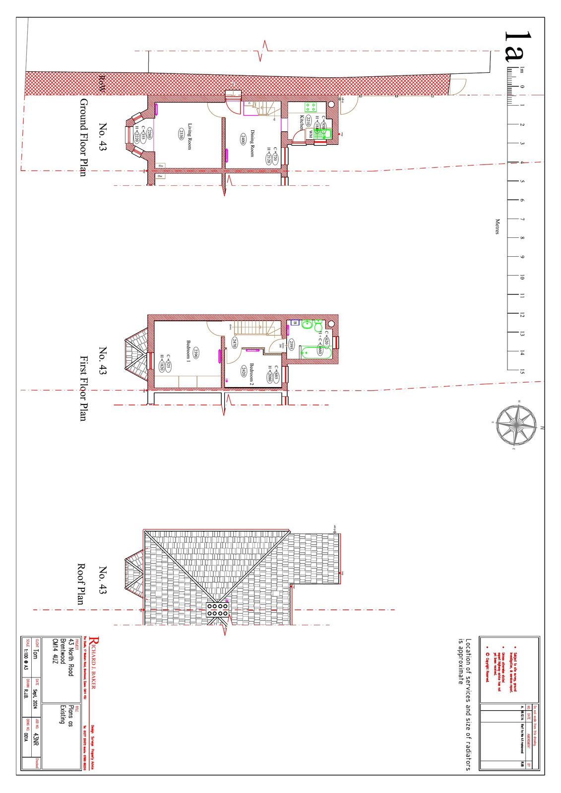
Prior Approval Not Required House extension
Received
Not recorded
New homes
0

Full proposal

Single storey rear extension. The proposed extension would extend 5.7m beyond the rear wall of the original dwelling, the maximum height of the proposed extension and the proposed eaves height would be 3m.

Have your say

Your comment matters. Councils must consider every representation that raises material planning considerations.

Write a comment