← Brentwood

Status

Prior Approval Not Required House extension
Received
Not recorded
New homes
0

Summary

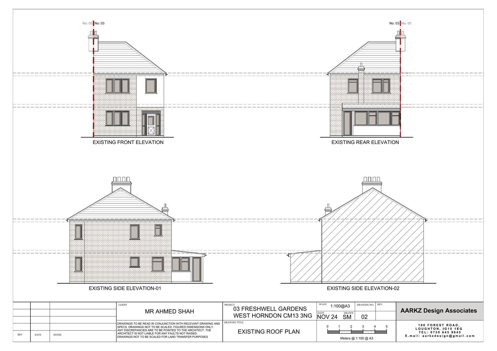
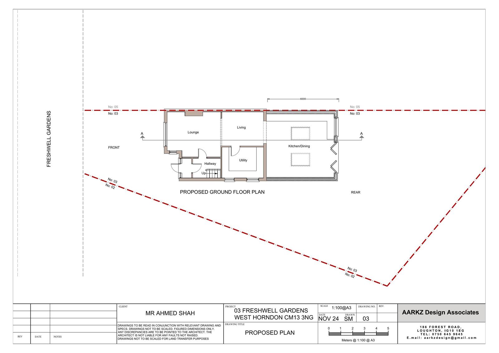
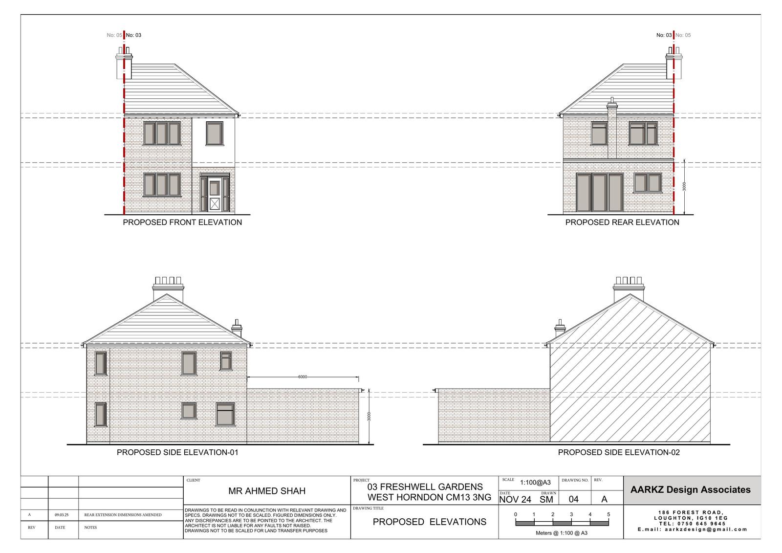
Single-storey rear extension extending 6m from original rear wall.

Full proposal

Demolition of existing single storey rear extension. Proposed single storey rear extension. The proposed extension would extend 6m beyond the rear wall of the original dwelling, the maximum height of the proposed extension would be 3m and the proposed eaves height would be 2.9m.

Have your say

Your comment matters. Councils must consider every representation that raises material planning considerations.

Write a comment