← Brentwood

Status

Prior Approval Not Required House extension
Received
Not recorded
New homes
0

Full proposal

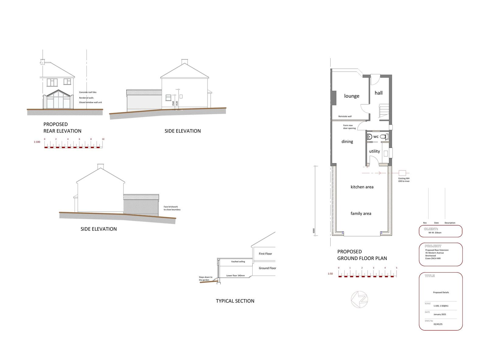
The proposed extension would extend 6m beyond the rear wall of the original dwelling, the maximum height of the proposed extension would be 3.52m and the proposed eaves height would be 2.56m.

Have your say

Your comment matters. Councils must consider every representation that raises material planning considerations.

Write a comment